Eladó üzlethelyiség
Sopron, földszint

+ 12 kép 1/15
69 999 000 Ft69.999 M Ft 624 991 Ft/m2
2 szoba
112 m2
földszint
építés éve:2020

Részletes adatok

Fűtés: Házközponti egyedi méréssel
Energetikai besorolás: Nem adta meg a hirdető

Az OTP Bank lakáshitel ajánlataFizetett hirdetés

+36 70 622
Komádi Csaba
referens

Érdekel az OTP Bank kedvezményes lakáshitel ajánlata? *

* A kérdésre „Igen” válasz bejelölése esetén, az „Üzenet küldése” gombra kattintva kijelentem, hogy az OTP Bank Nyrt. Adatkezelési tájékoztatójának tartalmát megismertem és tudomásul vettem.

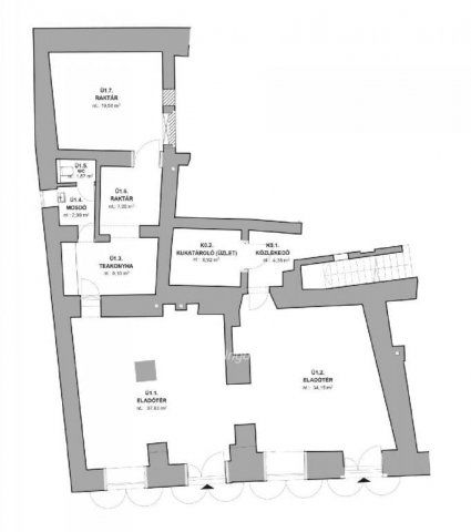
Eladó üzlethelyiség leírása

Sopronban a Várkerület közelében új építésű üzlethelyiség eladó.
Ü4-es üzlet, földszint, 112 nm alapterületen két nagy eladótér 34 és 38 nm, teakonyha, mosdó, WC, két raktár.
Irodának, rendelőnek, kereskedelmi vagy vendéglátási célra is megfelelő.
Már elkészült, birtokba vehető. Házközponti fűtés egyedi méréssel.
Ára 69.999.000 Ft + 27 % ÁFA.
A projekt keretében egy műemléki környezetben található épület átépítésével alakítanak ki 18-tól - 112 négyzetméterig eladó lakásokat, üzlethelyiségeket.
Részletekről irodánkban tájékozódhat. Ingyenes hitelszűrés, tanácsadás, CSOK ügyintézés. Referenciaszám: M170521
Állok rendelkezésre ingatlan eladás-vétel, pénzügyi termékek, hitel, CSOK ügyintézésében. Több százas ingatlanállományból biztos megtalálom az Ön igényeinek megfelelőt! Hívjon bizalommal: Komádi Csaba +36706229209

Referencia szám: M170521-ZE

Hirdetés feltöltve: 2025. 10. 16. Utoljára módosítva: 2025. 10. 16.

üzlethelyiségek ára Sopronban

Ebből az összehasonlításból megtudhatod, hogyan viszonyul a lakás ára a környékbeli üzlethelyiségek átlagos árához. Ez nem azt jelenti, hogy ennyivel olcsóbb vagy drágább, mint amennyit a lakás ér, hanem hogy ennyivel tér el a környékbeli átlagtól.

Ennek a m² ára
Sopron m² ár
625 e Ft
789 e Ft 21%
Ennek az ára
Sopron átlagár
69.999 M Ft m Ft
87.7 m Ft 20%

Az ingatlan elhelyezkedése

Cím: Sopron, földszint

Eladó üzlethelyiségek a környékről

Eladó üzlethelyiség
Eladó üzlethelyiség

Sopron

20 M Ft
19 m2
Eladó üzlethelyiség
Eladó üzlethelyiség

Sopron

34.9 M Ft
35 m2
Eladó üzlethelyiség
Eladó üzlethelyiség

Sopron

14.9 M Ft
29 m2
Eladó üzlethelyiség
Eladó üzlethelyiség

Gönyű

39.99 M Ft
1442 m²
352 m2
Eladó üzlethelyiség
Eladó üzlethelyiség

Sopron

39.9 M Ft
40 m2
Eladó üzlethelyiség
Eladó üzlethelyiség

Nyalka, Kossuth út

21.9 M Ft
112 m2
Eladó üzlethelyiség
Eladó üzlethelyiség

Sopron

73.9 M Ft
102 m2
Eladó üzlethelyiség
Eladó üzlethelyiség

Sopron, Győri külváros, Várkerület

61.2 M Ft
80 m2
Eladó üzlethelyiség
Eladó üzlethelyiség

Sopron

63 M Ft
63 m2
Eladó üzlethelyiség
Eladó üzlethelyiség

Sopron, Fürdő sor

1000.325 M Ft
10 szoba
333 m2
Eladó üzlethelyiség
Eladó üzlethelyiség

Sopron

59.9 M Ft
80 m2
Eladó üzlethelyiség
Eladó üzlethelyiség

Mosonmagyaróvár, Szent István király út

68.184 M Ft
184 m2
Eladó üzlethelyiség
Eladó üzlethelyiség

Sopron

69 M Ft
61 m2
Eladó üzlethelyiség
Eladó üzlethelyiség

Mihályi, Hunyadi János utca

25.99 M Ft
1 szoba
166 m2
Eladó üzlethelyiség
Eladó üzlethelyiség

Sopron

35 M Ft
1 m²
40 m2
Eladó üzlethelyiség
Eladó üzlethelyiség

Sopron, Északnyugati városrész, Somfalvi út

1020 M Ft
2 szoba
1280 m2
Eladó üzlethelyiség
Eladó üzlethelyiség

Sopron

59 M Ft
1 + 2 szoba
75 m2
Eladó üzlethelyiség
Eladó üzlethelyiség

Sopron

68.5 M Ft
132 m2
Eladó üzlethelyiség
Eladó üzlethelyiség

Öttevény, Fő utca

17.71 M Ft
115 m2
Eladó üzlethelyiség
Eladó üzlethelyiség

Mosonmagyaróvár

13.5 M Ft
54 m2
Eladó üzlethelyiség
Eladó üzlethelyiség

Győr

89 M Ft
115 m2
Eladó üzlethelyiség
Eladó üzlethelyiség

Enese

150 M Ft
2 + 1 szoba
740 m2
Eladó üzlethelyiség
Eladó üzlethelyiség

Sopron

10.9 M Ft
26 m2
Eladó üzlethelyiség
Eladó üzlethelyiség

Hegyeshalom

85 M Ft
280 m2

Falusi CSOK ingatlanok

Eladó családi ház
Eladó családi ház

Lengyeltóti

37.9 M Ft
3 szoba
90 m2
Eladó családi ház
Eladó családi ház

Magyarszék

48.5 M Ft
3 + 1 szoba
86 m2
Eladó családi ház
Eladó családi ház

Kács

29.5 M Ft
4 szoba
150 m2
Eladó családi ház
Eladó családi ház

Szalánta, Hunyadi

41.9 M Ft
3 + 1 szoba
120 m2
Eladó családi ház
Eladó családi ház

Makád

140 M Ft
4 szoba
79 m2
Eladó téglalakás
Eladó téglalakás

Balatonakali

110 M Ft
4 szoba
145 m2
Eladó családi ház
Eladó családi ház

Rém

11 M Ft
2 szoba
60 m2
Eladó családi ház
Eladó családi ház

Rém

10.5 M Ft
3 szoba
105 m2