BAM Living

Eladó üzlethelyiség
Hódmezővásárhely, földszint

44 000 000 Ft44 M Ft 213 592 Ft/m2
206 m2
földszint
építés éve:1963

Részletes adatok

Fűtés: Egyéb
Emelet: földszint
Energetikai besorolás: Nem adta meg a hirdető

Az OTP Bank lakáshitel ajánlataFizetett hirdetés

3662770746
Kiss Vivien
referens

Érdekel az OTP Bank kedvezményes lakáshitel ajánlata? *

* A kérdésre „Igen” válasz bejelölése esetén, az „Üzenet küldése” gombra kattintva kijelentem, hogy az OTP Bank Nyrt. Adatkezelési tájékoztatójának tartalmát megismertem és tudomásul vettem.

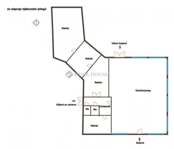
Eladó üzlethelyiség leírása

Eladó üzlethelyiség Hódmezővásárhelyen Közel 200 m², raktárral, mosdóval!

Hódmezővásárhely frekventált részén kínálunk eladásra egy tágas, közel 200m²-es üzlethelyiséget, amely kiváló választás lehet kereskedelmi, szolgáltató vagy akár logisztikai tevékenységre is!

Főbb jellemzők:

200 m² hasznos alapterület

Tágas, jól kialakított üzlettér, amely igény szerint alakítható

Külön raktárhelyiség a praktikus tároláshoz

Saját mosdó és kézmosó a kényelmes működéshez alapfelszereltség

Utcafronti bejárat, jól látható elhelyezkedéssel

Parkolási lehetőség az ingatlan közelében

Az ingatlan jó állapotú, rövid időn belül költözhető és akár többféle célra is használható: üzlet, bemutatóterem, iroda, szerviz vagy szolgáltató központ is könnyedén kialakítható benne.

Kiváló lehetőség helyi vállalkozóknak vagy újonnan induló cégeknek, akiknek fontos a nagy alapterület, a tárolási lehetőség és a városon belüli jó megközelíthetőség.

Kiváló lehetőség befektetésnek is akár, mivel jelenleg ki van adva az üzlethelyiség bérbe. A bérlő, amennyiben lehetősége van, tovább bérelné az ingatlant.

Ne maradjon le róla! Amennyiben érdeklődik, vegye fel velünk a kapcsolatot a részletekért vagy a megtekintés egyeztetéséhez!

Referencia szám: UZ010079

Hirdetés feltöltve: 2025. 11. 10. Utoljára módosítva: 2026. 01. 13.

üzlethelyiségek ára Hódmezővásárhelyen

Ebből az összehasonlításból megtudhatod, hogyan viszonyul a lakás ára a környékbeli üzlethelyiségek átlagos árához. Ez nem azt jelenti, hogy ennyivel olcsóbb vagy drágább, mint amennyit a lakás ér, hanem hogy ennyivel tér el a környékbeli átlagtól.

Ennek a m² ára
Hódmezővásárhely m² ár
214 e Ft
303 e Ft 29%
Ennek az ára
Hódmezővásárhely átlagár
44 M Ft m Ft
51.5 m Ft 15%

Az ingatlan elhelyezkedése

Cím: Hódmezővásárhely, földszint

Eladó üzlethelyiségek a környékről

Eladó üzlethelyiség
Eladó üzlethelyiség

Hódmezővásárhely

44 M Ft
206 m2
Eladó üzlethelyiség
Eladó üzlethelyiség

Szeged

21 M Ft
3 szoba
78 m2
Eladó üzlethelyiség
Eladó üzlethelyiség

Szeged

60 M Ft
1 szoba
178 m2
Eladó üzlethelyiség
Eladó üzlethelyiség

Szeged

39.8 M Ft
2 szoba
53 m2
Eladó üzlethelyiség
Eladó üzlethelyiség

Maroslele, Szabadság tér

29.5 M Ft
770 m²
570 m2
Eladó üzlethelyiség
Eladó üzlethelyiség

Hódmezővásárhely

73.649 M Ft
330 m2
Eladó üzlethelyiség
Eladó üzlethelyiség

Hódmezővásárhely

36.99 M Ft
1 szoba
50 m2
Eladó üzlethelyiség
Eladó üzlethelyiség

Hódmezővásárhely

28 M Ft
107 m2
Eladó üzlethelyiség
Eladó üzlethelyiség

Hódmezővásárhely

180 M Ft
1252 m²
300 m2
Eladó üzlethelyiség
Eladó üzlethelyiség

Pitvaros, Mezőhegyesi út

3.91 M Ft
61 m2
Eladó üzlethelyiség
Eladó üzlethelyiség

Hódmezővásárhely

34 M Ft
164 m2
Eladó üzlethelyiség
Eladó üzlethelyiség

Hódmezővásárhely

73.649 M Ft
330 m2
Eladó üzlethelyiség
Eladó üzlethelyiség

Hódmezővásárhely

13.99 M Ft
6 szoba
380 m2
Eladó üzlethelyiség
Eladó üzlethelyiség

Hódmezővásárhely

14.99 M Ft
1394 m²
80 m2
Eladó üzlethelyiség
Eladó üzlethelyiség

Szeged

65 M Ft
178 m2
Eladó üzlethelyiség
Eladó üzlethelyiség

Hódmezővásárhely

34 M Ft
163 m2
Eladó üzlethelyiség
Eladó üzlethelyiség

Domaszék

420 M Ft
18 szoba
1380 m2
Eladó üzlethelyiség
Eladó üzlethelyiség

Hódmezővásárhely

45 M Ft
150 m2
Eladó üzlethelyiség
Eladó üzlethelyiség

Szeged, Belváros, Dáni János utca

55 M Ft
178 m2
Eladó üzlethelyiség
Eladó üzlethelyiség

Szeged

99 M Ft
124 m2
Eladó üzlethelyiség
Eladó üzlethelyiség

Szeged

265 M Ft
384 m²
268 m2
Eladó üzlethelyiség
Eladó üzlethelyiség

Szeged

320 M Ft
4000 m²
1113 m2
Eladó üzlethelyiség
Eladó üzlethelyiség

Hódmezővásárhely

27.9 M Ft
1 szoba
107 m2
Eladó üzlethelyiség
Eladó üzlethelyiség

Szeged

39.8 M Ft
3 szoba
54 m2

Falusi CSOK ingatlanok

Eladó családi ház
Eladó családi ház

Zengővárkony

28 M Ft
3 szoba
87 m2
Eladó családi ház
Eladó családi ház

Törtel

59.9 M Ft
3 szoba
66 m2
Eladó családi ház
Eladó családi ház

Nagytevel

41.9 M Ft
2 + 1 szoba
75 m2
Eladó családi ház
Eladó családi ház

Újhartyán, Gödör utca

81.99 M Ft
3 szoba
110 m2
Eladó családi ház
Eladó családi ház

Pannonhalma

83.9 M Ft
4 szoba
97 m2
Eladó családi ház
Eladó családi ház

Bakonyjákó

99.5 M Ft
2 + 3 szoba
148 m2
Eladó családi ház
Eladó családi ház

Magyarpolány

25 M Ft
2 szoba
47 m2
Eladó családi ház
Eladó családi ház

Ádánd

69.9 M Ft
6 szoba
251 m2