Astora Art House

Eladó üzlethelyiség
Hódmezővásárhely, földszint

44 000 000 Ft44 M Ft 213 592 Ft/m2
206 m2
földszint
építés éve:1963

Részletes adatok

Fűtés: Egyéb
Emelet: földszint
Energetikai besorolás: Nem adta meg a hirdető

Az OTP Bank lakáshitel ajánlataFizetett hirdetés

3662300720
Árva Zsófia
referens

Érdekel az OTP Bank kedvezményes lakáshitel ajánlata? *

* A kérdésre „Igen” válasz bejelölése esetén, az „Üzenet küldése” gombra kattintva kijelentem, hogy az OTP Bank Nyrt. Adatkezelési tájékoztatójának tartalmát megismertem és tudomásul vettem.

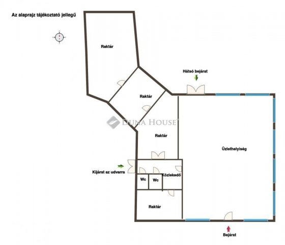
Eladó üzlethelyiség leírása

Eladó üzlethelyiség Hódmezővásárhelyen Közel 200 m², raktárral, mosdóval!

Hódmezővásárhely frekventált részén kínálunk eladásra egy tágas, közel 200m²-es üzlethelyiséget, amely kiváló választás lehet kereskedelmi, szolgáltató vagy akár logisztikai tevékenységre is!

Főbb jellemzők:

200 m² hasznos alapterület

Tágas, jól kialakított üzlettér, amely igény szerint alakítható

Külön raktárhelyiség a praktikus tároláshoz

Saját mosdó és kézmosó a kényelmes működéshez alapfelszereltség

Utcafronti bejárat, jól látható elhelyezkedéssel

Parkolási lehetőség az ingatlan közelében

Az ingatlan jó állapotú, rövid időn belül költözhető és akár többféle célra is használható: üzlet, bemutatóterem, iroda, szerviz vagy szolgáltató központ is könnyedén kialakítható benne.

Kiváló lehetőség helyi vállalkozóknak vagy újonnan induló cégeknek, akiknek fontos a nagy alapterület, a tárolási lehetőség és a városon belüli jó megközelíthetőség.

Kiváló lehetőség befektetésnek is akár, mivel jelenleg ki van adva az üzlethelyiség bérbe. A bérlő, amennyiben lehetősége van, tovább bérelné az ingatlant.

Ne maradjon le róla! Amennyiben érdeklődik, vegye fel velünk a kapcsolatot a részletekért vagy a megtekintés egyeztetéséhez!

Hirdetés feltöltve: 2025. 11. 07. Utoljára módosítva: 2026. 01. 13.

üzlethelyiségek ára Hódmezővásárhelyen

Ebből az összehasonlításból megtudhatod, hogyan viszonyul a lakás ára a környékbeli üzlethelyiségek átlagos árához. Ez nem azt jelenti, hogy ennyivel olcsóbb vagy drágább, mint amennyit a lakás ér, hanem hogy ennyivel tér el a környékbeli átlagtól.

Ennek a m² ára
Hódmezővásárhely m² ár
214 e Ft
303 e Ft 29%
Ennek az ára
Hódmezővásárhely átlagár
44 M Ft m Ft
51.5 m Ft 15%

Az ingatlan elhelyezkedése

Cím: Hódmezővásárhely, földszint

Eladó üzlethelyiségek a környékről

Eladó üzlethelyiség
Eladó üzlethelyiség

Szeged

99 M Ft
124 m2
Eladó üzlethelyiség
Eladó üzlethelyiség

Hódmezővásárhely, Csúcs, Szabadság tér

44 M Ft
206 m2
Eladó üzlethelyiség
Eladó üzlethelyiség

Szeged

31.49 M Ft
36 m2
Eladó üzlethelyiség
Eladó üzlethelyiség

Domaszék

420 M Ft
18 szoba
1380 m2
Eladó üzlethelyiség
Eladó üzlethelyiség

Újszentiván

19.99 M Ft
140 m²
64 m2
Eladó üzlethelyiség
Eladó üzlethelyiség

Csanádpalota, Szent István utca

22 M Ft
6 szoba
200 m2
Eladó üzlethelyiség
Eladó üzlethelyiség

Hódmezővásárhely

180 M Ft
1252 m²
300 m2
Eladó üzlethelyiség
Eladó üzlethelyiség

Maroslele, Szabadság tér

29.5 M Ft
770 m²
570 m2
Eladó üzlethelyiség
Eladó üzlethelyiség

Hódmezővásárhely

73.649 M Ft
330 m2
Eladó üzlethelyiség
Eladó üzlethelyiség

Hódmezővásárhely, Csúcs, Szabadság tér

34 M Ft
163 m2
Eladó üzlethelyiség
Eladó üzlethelyiség

Hódmezővásárhely

73.649 M Ft
330 m2
Eladó üzlethelyiség
Eladó üzlethelyiség

Szeged

4 M Ft
27 m2
Eladó üzlethelyiség
Eladó üzlethelyiség

Hódmezővásárhely

28 M Ft
107 m2
Eladó üzlethelyiség
Eladó üzlethelyiség

Szeged

52.7 M Ft
62 m2
Eladó üzlethelyiség
Eladó üzlethelyiség

Hódmezővásárhely

45 M Ft
150 m2
Eladó üzlethelyiség
Eladó üzlethelyiség

Szeged

65 M Ft
178 m2
Eladó üzlethelyiség
Eladó üzlethelyiség

Hódmezővásárhely

44 M Ft
206 m2
Eladó üzlethelyiség
Eladó üzlethelyiség

Szeged

265 M Ft
384 m²
268 m2
Eladó üzlethelyiség
Eladó üzlethelyiség

Balástya

295 M Ft
13 szoba
854 m2
Eladó üzlethelyiség
Eladó üzlethelyiség

Hódmezővásárhely

73.649 M Ft
330 m2
Eladó üzlethelyiség
Eladó üzlethelyiség

Hódmezővásárhely

44 M Ft
206 m2
Eladó üzlethelyiség
Eladó üzlethelyiség

Szeged

21 M Ft
3 szoba
78 m2
Eladó üzlethelyiség
Eladó üzlethelyiség

Hódmezővásárhely

82.9 M Ft
2 szoba
120 m2
Eladó üzlethelyiség
Eladó üzlethelyiség

Hódmezővásárhely, Belváros, Szegfű

29.9 M Ft
30 m2

Falusi CSOK ingatlanok

Eladó családi ház
Eladó családi ház

Egerág, Pozsonyi utca

26.9 M Ft
3 szoba
96 m2
Eladó családi ház
Eladó családi ház

Nagyváty, Kossuth utca

51.9 M Ft
4 szoba
125 m2
Eladó családi ház
Eladó családi ház

Hegyeshalom

190 M Ft
2 szoba
120 m2
Eladó családi ház
Eladó családi ház

Szászvár, Zártkert

3.4 M Ft
1 szoba
58 m2
Eladó családi ház
Eladó családi ház

Baté

21.8 M Ft
2 szoba
60 m2
Eladó családi ház
Eladó családi ház

Sumony

19 M Ft
4 szoba
120 m2
Eladó családi ház
Eladó családi ház

Jakabszállás

69.99 M Ft
1 + 4 szoba
91 m2
Eladó családi ház
Eladó családi ház

Nagytevel

41.9 M Ft
2 + 1 szoba
75 m2