River Life

Eladó üzlethelyiség
Fehérgyarmat

+ 5 kép 1/8
65 000 000 Ft65 M Ft 650 000 Ft/m2
4 + 2 szoba
100 m2
építés éve:1906

Részletes adatok

Állapot: Átlagos
Fűtés: Gázkonvektor
Energetikai besorolás: Nem adta meg a hirdető

Az OTP Bank lakáshitel ajánlataFizetett hirdetés

+36 30 494
Gyöngyösi Szabolcs
referens

Érdekel az OTP Bank kedvezményes lakáshitel ajánlata? *

* A kérdésre „Igen” válasz bejelölése esetén, az „Üzenet küldése” gombra kattintva kijelentem, hogy az OTP Bank Nyrt. Adatkezelési tájékoztatójának tartalmát megismertem és tudomásul vettem.

Eladó üzlethelyiség leírása

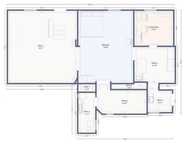
Eladó üzlethelyiség Fehérgyarmat központjában Az ingatlan nettó 140 nm alapterületű jól kihasználható elrendezéssel Két tágas nagy helyiség mellett három kisebb is található amelyek rugalmasan alakíthatók iroda üzlet vagy raktár céljára Az épületben mellékhelyiségek és további kiszolgáló terek is rendelkezésre állnak
Az ingatlan központi fekvése miatt könnyen megközelíthető forgalmas helyen található így kiváló lehetőség üzleti tevékenység indítására Az üzlettel szemben kényelmes parkolási lehetőség biztosított
Az ingatlan akár irodának üzletnek vagy más vállalkozás számára is ideális választás nagy belső tereinek és átlátható elrendezésének köszönhetően OTP Banki hátterünknek köszönhetően finanszírozási igényekben (pl. Otthon Start Hitelprogram , Babaváró, Falusi CSOK, CSOK Plusz, Lakáshitel, Személyi kölcsön stb.), illetve biztosítások tekintetében is díjmentesen, soron kívüli ügyintézéssel segítem ügyfeleim! Referenciaszám:M312515

Hirdetés feltöltve: 2025. 10. 01. Utoljára módosítva: 2025. 11. 02.

Az ingatlan elhelyezkedése

Cím: Fehérgyarmat

Eladó ingatlanok a környékről

Eladó családi ház
Eladó családi ház

Nyíregyháza

120 M Ft
5 szoba
203 m2
Eladó családi ház
Eladó családi ház

Fehérgyarmat

40 M Ft
2 szoba
95 m2
Eladó téglalakás
Eladó téglalakás

Nyíregyháza

48.8 M Ft
3 szoba
68 m2
Eladó családi ház
Eladó családi ház

Nyíregyháza

79 M Ft
5 szoba
126 m2
Eladó családi ház
Eladó családi ház

Nyíregyháza

75.9 M Ft
6 szoba
240 m2
Eladó családi ház
Eladó családi ház

Nyíregyháza

62 M Ft
4 szoba
140 m2
Eladó családi ház
Eladó családi ház

Nyíregyháza

199.9 M Ft
6 szoba
500 m2
Eladó családi ház
Eladó családi ház

Fehérgyarmat

59.5 M Ft
6 szoba
260 m2
Eladó családi ház
Eladó családi ház

Fehérgyarmat

59.5 M Ft
6 szoba
260 m2
Eladó családi ház
Eladó családi ház

Nyíregyháza

79.99 M Ft
4 szoba
110 m2
Eladó családi ház
Eladó családi ház

Nyíregyháza

23 M Ft
2 szoba
51 m2
Eladó ikerház
Eladó ikerház

Nyíregyháza

154.9 M Ft
5 szoba
190 m2
Eladó családi ház
Eladó családi ház

Nyíregyháza

89.9 M Ft
5 szoba
274 m2
Eladó családi ház
Eladó családi ház

Nyíregyháza

60 M Ft
3 szoba
100 m2
Eladó családi ház
Eladó családi ház

Nyíregyháza

34.9 M Ft
2 szoba
65 m2
Eladó családi ház
Eladó családi ház

Tiszarád

13.9 M Ft
3 szoba
95 m2
Eladó családi ház
Eladó családi ház

Nyíregyháza, Oros, Oros

55 M Ft
4 szoba
100 m2
Eladó családi ház
Eladó családi ház

Fehérgyarmat

400 M Ft
1 szoba
500 m2
Eladó családi ház
Eladó családi ház

Nyíregyháza

190 M Ft
4 szoba
230 m2
Eladó családi ház
Eladó családi ház

Fehérgyarmat

68 M Ft
3 + 2 szoba
314 m2
Eladó családi ház
Eladó családi ház

Nyírtelek

68.9 M Ft
12 szoba
440 m2
Eladó téglalakás
Eladó téglalakás

Nyíregyháza

43 M Ft
2 szoba
53 m2
Eladó családi ház
Eladó családi ház

Nyíregyháza

69.999 M Ft
3 szoba
80 m2
Eladó téglalakás
Eladó téglalakás

Nyíregyháza

42.9 M Ft
63 m²
63 m2

Falusi CSOK ingatlanok

Eladó téglalakás
Eladó téglalakás

Kőröshegy

64.9 M Ft
3 szoba
52 m2
Eladó téglalakás
Eladó téglalakás

Balatonszemes

119.9 M Ft
2 szoba
81 m2
Eladó családi ház
Eladó családi ház

Nagykarácsony

34.9 M Ft
3 szoba
112 m2
Eladó családi ház
Eladó családi ház

Röszke, Dózsa György utcánál

22.9 M Ft
3 szoba
79 m2
Eladó sorház
Eladó sorház

Tiszasziget, Sziget lakópark

33.9 M Ft
2 szoba
48 m2
Eladó családi ház
Eladó családi ház

Tarnalelesz

11 M Ft
4 szoba
186 m2
Eladó családi ház
Eladó családi ház

Orci

59.9 M Ft
3 szoba
101 m2
Eladó családi ház
Eladó családi ház

Bükkábrány

46.9 M Ft
4 szoba
120 m2