Astora Art House

Eladó telek
Siófok

+ 1 kép 1/4
129 000 000 Ft129 M Ft 123 919 Ft/m2
1 041 m2

Részletes adatok

Telekméret: 1041 m2
Fűtés: Egyéb
Közmű: Víz, Gáz, Villany, Csatorna
Övezet: Lakóövezet
Energetikai besorolás: Nem adta meg a hirdető

Az OTP Bank lakáshitel ajánlataFizetett hirdetés

+36 70 610
Göcsei Gergő
referens

Érdekel az OTP Bank kedvezményes lakáshitel ajánlata? *

* A kérdésre „Igen” válasz bejelölése esetén, az „Üzenet küldése” gombra kattintva kijelentem, hogy az OTP Bank Nyrt. Adatkezelési tájékoztatójának tartalmát megismertem és tudomásul vettem.

Eladó telek leírása

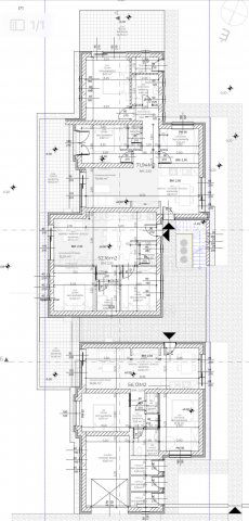
Siófokon, a Foki-hegy és az Ezüstpart határán, a Balatontól mindössze 500 méterre eladó egy 1041 m² területű ingatlan, „Lk” övezeti besorolással. Az ingatlanhoz 6 lakás építésére szóló érvényes építési engedély és teljes tervdokumentáció tartozik. Tervezett lakások adatai: 1. lakás – Földszint Nettó alapterület: 56,13 m² Terasz: 14,46 m² 2. lakás – Földszint Nettó alapterület: 52,16 m² 3. lakás – Földszint Nettó alapterület: 52,16 m² Terasz: 37,17 m² 4. lakás – Emelet Nettó alapterület: 67,21 m² Terasz: 10,77 m² Loggia: 4,62 m² 5. lakás – Emelet Nettó alapterület: 52,16 m² 6. lakás – Emelet Nettó alapterület: 67,92 m² Terasz: 11,56 m² Loggia: 4,34 m² A környéken új építésű lakások esetében az átlagos piaci ár 1,4 millió Ft/m². A projekt kiváló lehetőség befektetők és fejlesztők számára, mivel az engedélyezett, teljes körű tervdokumentáció azonnali építkezést tesz lehetővé. Lido Home - Ingatlanok egy életen át!

Hirdetés feltöltve: 2025. 11. 03. Utoljára módosítva: 2025. 11. 16.

Telkek ára Siófokon

Ebből az összehasonlításból megtudhatod, hogyan viszonyul a lakás ára a környékbeli telkek átlagos árához. Ez nem azt jelenti, hogy ennyivel olcsóbb vagy drágább, mint amennyit a lakás ér, hanem hogy ennyivel tér el a környékbeli átlagtól.

Ennek a m² ára
Siófok m² ár
124 e Ft
92 e Ft -35%
Ennek az ára
Siófok átlagár
129 M Ft m Ft
66.1 m Ft -95%

Az ingatlan elhelyezkedése

Cím: Siófok

Eladó telkek a környékről

Eladó telek
Eladó telek

Nagyberény

7.49 M Ft
2007 m²
Eladó telek
Eladó telek

Kereki

36.999 M Ft
12277 m²
Eladó telek
Eladó telek

Siófok

143.46 M Ft
6521 m²
6521 m2
Eladó telek
Eladó telek

Balatonszárszó

69 M Ft
989 m²
Eladó telek
Eladó telek

Siófok

25.64 M Ft
641 m²
641 m2
Eladó telek
Eladó telek

Karád, Központ

6 M Ft
586 m²
Eladó telek
Eladó telek

Siófok

177.118 M Ft
6128 m²
6128 m2
Eladó telek
Eladó telek

Kára, Kossuth Lajos

4.9 M Ft
1779 m²
1779 m2
Eladó telek
Eladó telek

Buzsák

14.5 M Ft
1800 m²
1800 m2
Eladó telek
Eladó telek

Gyékényes, Horgásztanya

14.3 M Ft
400 m²
Eladó telek
Eladó telek

Igal

65 M Ft
12973 m²
Eladó telek
Eladó telek

Siófok

130 M Ft
1678 m²
1678 m2
Eladó telek
Eladó telek

Ádánd

9 M Ft
816 m²
Eladó telek
Eladó telek

Balatonszemes

29.99 M Ft
861 m²
Eladó telek
Eladó telek

Siófok

60 M Ft
2862 m²
2862 m2
Eladó telek
Eladó telek

Gyugy

36 M Ft
6920 m²
6920 m2
Eladó telek
Eladó telek

Siófok

39.5 M Ft
805 m²
805 m2
Eladó telek
Eladó telek

Zamárdi

159 M Ft
981 m²
981 m2
Eladó telek
Eladó telek

Siófok

26.64 M Ft
666 m²
666 m2
Eladó telek
Eladó telek

Balatonszemes

7 M Ft
3386 m²
Eladó telek
Eladó telek

Siófok, Somlay Artúr utca

45 M Ft
1679 m²
1679 m2
Eladó telek
Eladó telek

Siófok

14.9 M Ft
1628 m²
1628 m2
Eladó telek
Eladó telek

Siófok

11.5 M Ft
638 m²
638 m2
Eladó telek
Eladó telek

Hollád

6 M Ft
2356 m²

Falusi CSOK ingatlanok

Eladó családi ház
Eladó családi ház

Dunaalmás

52.5 M Ft
3 + 1 szoba
140 m2
Eladó téglalakás
Eladó téglalakás

Anarcs

29 M Ft
3 szoba
75 m2
Eladó családi ház
Eladó családi ház

Nyékládháza

45 M Ft
3 szoba
90 m2
Eladó téglalakás
Eladó téglalakás

Újlengyel

72.99 M Ft
2 szoba
68 m2
Eladó családi ház
Eladó családi ház

Nyirád

21.9 M Ft
4 szoba
86 m2
Eladó családi ház
Eladó családi ház

Mezőfalva

39 M Ft
3 szoba
77 m2
Eladó családi ház
Eladó családi ház

Besnyő

105.999 M Ft
6 szoba
189 m2
Eladó családi ház
Eladó családi ház

Somogygeszti

10.9 M Ft
2 szoba
115 m2