NapForrás 20 - Buda

Eladó telek
Pilisszentiván

+ 5 kép 1/8
70 000 000 Ft70 M Ft 74 468 Ft/m2
940 m2

Részletes adatok

Telekméret: 940 m2
Fűtés: Egyéb
Energetikai besorolás: Nem adta meg a hirdető

Az OTP Bank lakáshitel ajánlataFizetett hirdetés

+36 70 328
Szőnyi Home 2020 Bt.
Szőnyi Home 2020 Bt.

Érdekel az OTP Bank kedvezményes lakáshitel ajánlata? *

* A kérdésre „Igen” válasz bejelölése esetén, az „Üzenet küldése” gombra kattintva kijelentem, hogy az OTP Bank Nyrt. Adatkezelési tájékoztatójának tartalmát megismertem és tudomásul vettem.

Eladó telek leírása

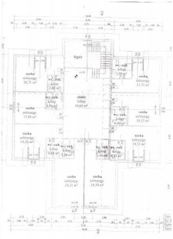
Vállalkozók, befektetők figyelem!
Pilisszentivánon eladó egy 940 nm-es, összközműves telek, amin van egy megkezdett építkezés. Ennek bruttó alapterülete: 296 nm. Az épület tervezett funkciója vállalkozáshoz bemutatóterem, üzlethelyiség, plusz az emeleti szinten kiadó helyiségek. a tervdokumentáció rendelkezésre áll. Az üzlethelyiség tervezése során olyan kialakítást kapott, mely esetlegesen tevékenységi kör változása esetén is több lehetőséget biztosít! Üzlettérből női, férfi vizesblokkok, személyzeti hátsó bejárat, személyzeti wc, öltöző, főzősarok, iroda, tárgyaló stb. Az emeleten külön szobák kialakítása van tervezve. Az épület alápincézésre kerül, ami már el is van kezdve. Itt egy széles lejárón lehet majd lemenni az utca felől, ahol tárolás, raktározás lehetséges. Ha lát benne fantáziát, hívjon mielőbb! ! ! Sokfajta célra hasznosítható az ingatlan (kereskedelmi, oktatási, kulturális, sport, de akár lakhatásra is).

Hirdetés feltöltve: 2026. 01. 05. Utoljára módosítva: 2026. 01. 06.

Telkek ára Pilisszentivánon

Ebből az összehasonlításból megtudhatod, hogyan viszonyul a lakás ára a környékbeli telkek átlagos árához. Ez nem azt jelenti, hogy ennyivel olcsóbb vagy drágább, mint amennyit a lakás ér, hanem hogy ennyivel tér el a környékbeli átlagtól.

Ennek a m² ára
Pilisszentiván m² ár
74 e Ft
12 e Ft -526%
Ennek az ára
Pilisszentiván átlagár
70 M Ft m Ft
12.2 m Ft -476%

Az ingatlan elhelyezkedése

Cím: Pilisszentiván

Eladó ingatlanok a környékről

Eladó családi ház
Eladó családi ház

Kóka

61.39 M Ft
4 szoba
80 m2
Eladó telek
Eladó telek

Budaörs, Szabadság utca

280 M Ft
10000 m²
Eladó telek
Eladó telek

Gödöllő, Központhoz közeli csendes utca

350.5 M Ft
9825 m²
Eladó családi ház
Eladó családi ház

Mogyoród

63.25 M Ft
4 szoba
110 m2
Eladó családi ház
Eladó családi ház

Törökbálint

169.9 M Ft
5 szoba
140 m2
Eladó telek
Eladó telek

Pilisszentiván

59 M Ft
870 m²
Eladó telek
Eladó telek

Tápiószele

1.8 M Ft
600 m²
Eladó telek
Eladó telek

Pilisszentiván

59 M Ft
839 m²
Eladó mezogazdasagi ingatlan
Eladó mezogazdasagi ingatlan

Pusztavacs

260 M Ft
4 szoba
275 m2
Eladó telek
Eladó telek

Sóskút

32.17 M Ft
6434 m²
Eladó telek
Eladó telek

Dabas

16.99 M Ft
850 m²
850 m2
Eladó telek
Eladó telek

Vecsés, Vecsés

999.9 M Ft
21400 m²
Eladó családi ház
Eladó családi ház

Ráckeve

55 M Ft
3 szoba
76 m2
Eladó téglalakás
Eladó téglalakás

Monor

56.9 M Ft
2 szoba
51 m2
Eladó családi ház
Eladó családi ház

Hernád

49 M Ft
3 szoba
75 m2
Eladó családi ház
Eladó családi ház

Ócsa

94.9 M Ft
4 szoba
99 m2
Eladó telek
Eladó telek

Solymár, Solymár külterület

25.9 M Ft
2 szoba
40 m2
Eladó telek
Eladó telek

Csömör, Híd utca

75 M Ft
3052 m²
Eladó családi ház
Eladó családi ház

Budaörs

109 M Ft
2 szoba
70 m2
Eladó családi ház
Eladó családi ház

Örkény

42.6 M Ft
3 szoba
73 m2
Eladó telek
Eladó telek

Remeteszőlős, Patak sétányhoz közeli utca

78.4 M Ft
737 m²
Eladó családi ház
Eladó családi ház

Dabas

79.9 M Ft
5 szoba
200 m2
Eladó telek
Eladó telek

Fót

37.5 M Ft
999 m²
Eladó telek
Eladó telek

Csömör, Csömör - szántó terület

70 M Ft
9000 m²

Falusi CSOK ingatlanok

Eladó családi ház
Eladó családi ház

Tihany

149 M Ft
5 szoba
270 m2
Eladó családi ház
Eladó családi ház

Badacsonytomaj, Kodály Zoltán utca

185 M Ft
6 + 1 szoba
210 m2
Eladó családi ház
Eladó családi ház

Elek, Tavasz utca 7

12.355 M Ft
1 + 1 szoba
207 m2
Eladó családi ház
Eladó családi ház

Devecser

62.49 M Ft
5 szoba
180 m2
Eladó családi ház
Eladó családi ház

Nyárlőrinc

18.9 M Ft
1 szoba
440 m2
Eladó családi ház
Eladó családi ház

Nyáregyháza

47 M Ft
4 szoba
127 m2
Eladó családi ház
Eladó családi ház

Szederkény

107.9 M Ft
6 szoba
224 m2
Eladó családi ház
Eladó családi ház

Elek

20.9 M Ft
4 szoba
126 m2