Metrodom

Eladó telek
Ócsa

+ 5 kép 1/8
60 000 000 Ft60 M Ft 97 561 Ft/m2
615 m2

Részletes adatok

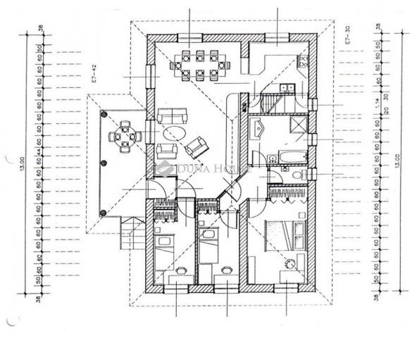
Telekméret: 615 m2
Fűtés: Egyéb
Közmű: Víz, Gáz, Villany, Csatorna
Övezet: Lakóövezet
Energetikai besorolás: Nem adta meg a hirdető

Az OTP Bank lakáshitel ajánlataFizetett hirdetés

3624769702
Balassa Anita
referens

Érdekel az OTP Bank kedvezményes lakáshitel ajánlata? *

* A kérdésre „Igen” válasz bejelölése esetén, az „Üzenet küldése” gombra kattintva kijelentem, hogy az OTP Bank Nyrt. Adatkezelési tájékoztatójának tartalmát megismertem és tudomásul vettem.

Eladó telek leírása

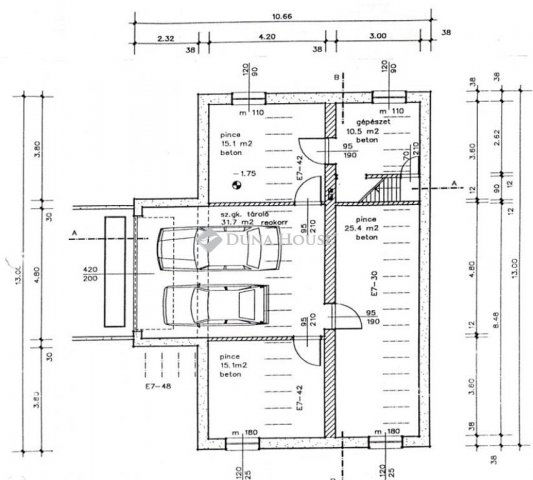
Kivételes lehetőség, közel szerkezetkész ház összközműves telken! Ne hagyja ki, valósítsa meg álmait!Eladásra kínálok Ócsán egy 615 m2-es, Lf-2/B besorolású lakóövezeti telken egy félig kész új építésű családi házat építési engedéllyel, amit az új tulajdonosa a saját igényeire testreszabva fejezhet be.A telek összközműves - víz, csatorna, villany (3x20A), gáz, fúrt kút megtalálható. Az épülőfélben lévő lakóház kivitelezése színvonalas mesteremberek munkája, masszív tetőszerkezettel, beton cseréppel épített, amit a tulajdonos saját részre tervezett.Az épülő ház a teljes alapterületében alápincézett, ahol több lehetséges funkcióval bíró félszuterén tér került kialakításra 2 gépkocsi beállási lehetőséggel. A 94 négyzetméteres lakószinten található a teraszkapcsolatos, napfényes nappali, konyha, három lakószoba, tágas fürdőszoba és külön WC.Ócsa Pest vármegyében, Budapesttől kb. 25 km-re délre, az M5-ös autópálya és az 5-ös főút közelében található, a főváros agglomerációjának része. Tömegközlekedését a BudapestLajosmizse vasútvonal, valamint a fővárosba és a környező településekre közlekedő buszjáratok biztosítják.Az ingatlan előzetes időpont egyeztetést követően bármikor megtekinthető, keressen bizalommal!
Érd: Balassa Anita tel:+3630 3930234 email:balassa.anita@dh.hu

Referencia szám: TK098515

Hirdetés feltöltve: 2025. 10. 23. Utoljára módosítva: 2025. 11. 02.

Telkek ára Ócsán

Ebből az összehasonlításból megtudhatod, hogyan viszonyul a lakás ára a környékbeli telkek átlagos árához. Ez nem azt jelenti, hogy ennyivel olcsóbb vagy drágább, mint amennyit a lakás ér, hanem hogy ennyivel tér el a környékbeli átlagtól.

Ennek a m² ára
Ócsa m² ár
98 e Ft
32 e Ft -201%
Ennek az ára
Ócsa átlagár
60 M Ft m Ft
10.8 m Ft -453%

Az ingatlan elhelyezkedése

Cím: Ócsa

Eladó ingatlanok a környékről

Eladó telek
Eladó telek

Szentendre

32 M Ft
2926 m²
Eladó telek
Eladó telek

Solymár, Solymár külterület

25.9 M Ft
2 szoba
40 m2
Eladó telek
Eladó telek

Gödöllő, Központhoz közeli csendes utca

350.5 M Ft
9825 m²
Eladó családi ház
Eladó családi ház

Gyömrő

149 M Ft
6 szoba
110 m2
Eladó családi ház
Eladó családi ház

Erdőkertes

84 M Ft
3 szoba
91 m2
Eladó telek
Eladó telek

Ócsa

264 M Ft
15975 m²
Eladó mezogazdasagi ingatlan
Eladó mezogazdasagi ingatlan

Páty

21.5 M Ft
48972 m²
Eladó családi ház
Eladó családi ház

Pilis

22.9 M Ft
1 szoba
19 m2
Eladó telek
Eladó telek

Vecsés

120 M Ft
3017 m2
Eladó telek
Eladó telek

Ócsa

60 M Ft
615 m²
Eladó családi ház
Eladó családi ház

Dunaharaszti

150 M Ft
7 szoba
225 m2
Eladó telek
Eladó telek

Szentlőrinckáta

5.5 M Ft
1594 m²
1594 m2
Eladó családi ház
Eladó családi ház

Kerepes

179 M Ft
4 szoba
178 m2
Eladó telek
Eladó telek

Csömör, Híd utca

75 M Ft
3052 m²
Eladó téglalakás
Eladó téglalakás

Herceghalom

73 M Ft
3 + 1 szoba
83 m2
Eladó telek
Eladó telek

Ócsa

60 M Ft
615 m²
615 m2
Eladó családi ház
Eladó családi ház

Herceghalom

188.9 M Ft
4 szoba
139 m2
Eladó téglalakás
Eladó téglalakás

Pusztazámor

39.5 M Ft
3 szoba
60 m2
Eladó téglalakás
Eladó téglalakás

Kistarcsa

62 M Ft
3 szoba
58 m2
Eladó családi ház
Eladó családi ház

Felsőpakony

114.9 M Ft
9 szoba
210 m2
Eladó családi ház
Eladó családi ház

Kistarcsa

125 M Ft
5 szoba
155 m2
Eladó családi ház
Eladó családi ház

Csömör

123.9 M Ft
3 szoba
164 m2
Eladó telek
Eladó telek

Érd

42 M Ft
2200 m²
2200 m2
Eladó telek
Eladó telek

Budakeszi, Budakeszi külterület

39.9 M Ft
2800 m²

Falusi CSOK ingatlanok

Eladó téglalakás
Eladó téglalakás

Kőröshegy

64.9 M Ft
3 szoba
52 m2
Eladó családi ház
Eladó családi ház

Segesd

14.3 M Ft
3 szoba
100 m2
Eladó családi ház
Eladó családi ház

Szalánta

149.9 M Ft
10 szoba
301 m2
Eladó családi ház
Eladó családi ház

Marcaltő

26 M Ft
3 szoba
103 m2
Eladó családi ház
Eladó családi ház

Nagyhegyes

47.9 M Ft
2 szoba
72 m2
Eladó családi ház
Eladó családi ház

Villány, Baross Gábor

130 M Ft
6 szoba
370 m2
Eladó családi ház
Eladó családi ház

Adásztevel

8.9 M Ft
2 szoba
63 m2
Eladó sorház
Eladó sorház

Tiszasziget, Sziget lakópark

33.9 M Ft
2 szoba
48 m2