Avico

Eladó telek
Ócsa

+ 5 kép 1/8
60 000 000 Ft60 M Ft 97 561 Ft/m2
615 m2

Részletes adatok

Telekméret: 615 m2
Fűtés: Egyéb
Közmű: Víz, Gáz, Villany, Csatorna
Övezet: Lakóövezet
Energetikai besorolás: Nem adta meg a hirdető

Az OTP Bank lakáshitel ajánlataFizetett hirdetés

3629769723
Majzikné Tóth Krisztina
referens

Érdekel az OTP Bank kedvezményes lakáshitel ajánlata? *

* A kérdésre „Igen” válasz bejelölése esetén, az „Üzenet küldése” gombra kattintva kijelentem, hogy az OTP Bank Nyrt. Adatkezelési tájékoztatójának tartalmát megismertem és tudomásul vettem.

Eladó telek leírása

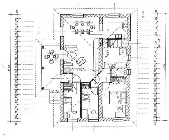
Kivételes lehetőség, közel szerkezetkész ház összközműves telken! Ne hagyja ki, valósítsa meg álmait!

Eladásra kínálok Ócsán egy 615 m2-es, Lf-2/B besorolású lakóövezeti telken egy félig kész új építésű családi házat építési engedéllyel, amit az új tulajdonosa a saját igényeire testreszabva fejezhet be.

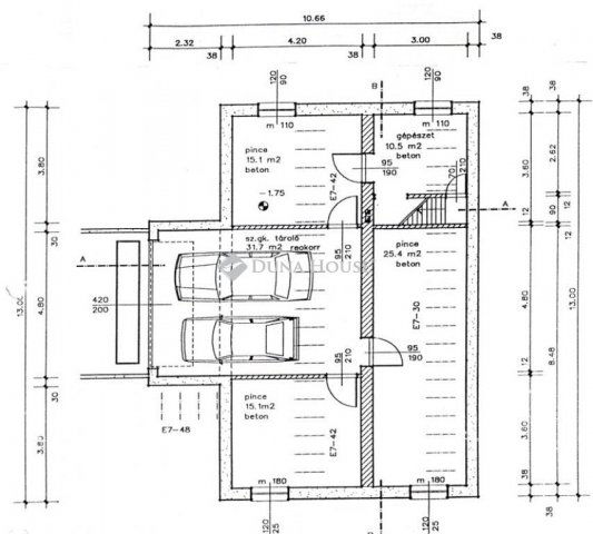
A telek összközműves - víz, csatorna, villany (3x20A), gáz, fúrt kút megtalálható. Az épülőfélben lévő lakóház kivitelezése színvonalas mesteremberek munkája, masszív tetőszerkezettel, beton cseréppel épített, amit a tulajdonos saját részre tervezett.

Az épülő ház a teljes alapterületében alápincézett, ahol több lehetséges funkcióval bíró félszuterén tér került kialakításra 2 gépkocsi beállási lehetőséggel. A 94 négyzetméteres lakószinten található a teraszkapcsolatos, napfényes nappali, konyha, három lakószoba, tágas fürdőszoba és külön WC.

Ócsa Pest vármegyében, Budapesttől kb. 25 km-re délre, az M5-ös autópálya és az 5-ös főút közelében található, a főváros agglomerációjának része. Tömegközlekedését a BudapestLajosmizse vasútvonal, valamint a fővárosba és a környező településekre közlekedő buszjáratok biztosítják.

Az ingatlan előzetes időpont egyeztetést követően bármikor megtekinthető, keressen bizalommal!
Érd.: Majzikné Tóth Krisztina, tel.: +36/20 927 3299, e-mail: majzikne.krisztina@dh.hu

Referencia szám: TK098515

Hirdetés feltöltve: 2025. 10. 02. Utoljára módosítva: 2025. 11. 02.

Telkek ára Ócsán

Ebből az összehasonlításból megtudhatod, hogyan viszonyul a lakás ára a környékbeli telkek átlagos árához. Ez nem azt jelenti, hogy ennyivel olcsóbb vagy drágább, mint amennyit a lakás ér, hanem hogy ennyivel tér el a környékbeli átlagtól.

Ennek a m² ára
Ócsa m² ár
98 e Ft
32 e Ft -201%
Ennek az ára
Ócsa átlagár
60 M Ft m Ft
10.8 m Ft -453%

Az ingatlan elhelyezkedése

Cím: Ócsa

Eladó ingatlanok a környékről

Eladó családi ház
Eladó családi ház

Sóskút

58 M Ft
3 szoba
106 m2
Eladó telek
Eladó telek

Sóskút

32.17 M Ft
6434 m²
Eladó telek
Eladó telek

Ócsa

60 M Ft
615 m²
615 m2
Eladó telek
Eladó telek

Ócsa

60 M Ft
615 m²
Eladó telek
Eladó telek

Ócsa

60 M Ft
615 m²
Eladó családi ház
Eladó családi ház

Ráckeve

57.5 M Ft
4 szoba
120 m2
Eladó telek
Eladó telek

Ócsa

60 M Ft
615 m²
Eladó telek
Eladó telek

Ócsa, Ócsa - szántó

9 M Ft
10370000 m²
Eladó téglalakás
Eladó téglalakás

Albertirsa

60.8 M Ft
2 szoba
94 m2
Eladó telek
Eladó telek

Budaörs, Szabadság utca

280 M Ft
10000 m²
Eladó családi ház
Eladó családi ház

Solymár

249 M Ft
6 szoba
290 m2
Eladó családi ház
Eladó családi ház

Tápiószőlős

9.9 M Ft
2 szoba
57 m2
Eladó telek
Eladó telek

Gödöllő, Központhoz közeli csendes utca

350.5 M Ft
9825 m²
Eladó telek
Eladó telek

Páty, Páty kertváros - központhoz közel

69.9 M Ft
1500 m²
Eladó telek
Eladó telek

Sóskút

38.475 M Ft
8550 m²
Eladó családi ház
Eladó családi ház

Nagykovácsi

85 M Ft
1 szoba
55 m2
Eladó telek
Eladó telek

Kerepes, Kerepes 4483 utca

11.1 M Ft
556 m²
Eladó téglalakás
Eladó téglalakás

Gödöllő

80 M Ft
3 szoba
78 m2
Eladó családi ház
Eladó családi ház

Törökbálint

89.69 M Ft
3 + 1 szoba
80 m2
Eladó ikerház
Eladó ikerház

Mogyoród

158.5 M Ft
5 szoba
121 m2
Eladó ikerház
Eladó ikerház

Mogyoród

178.4 M Ft
5 szoba
136 m2
Eladó telek
Eladó telek

Tápiószentmárton

3.9 M Ft
4453 m²
Eladó családi ház
Eladó családi ház

Dány

47.45 M Ft
3 szoba
83 m2
Eladó családi ház
Eladó családi ház

Üllő

129.9 M Ft
5 szoba
150 m2

Falusi CSOK ingatlanok

Eladó családi ház
Eladó családi ház

Nagyberki, Újváros u

20.9 M Ft
3 szoba
88 m2
Eladó családi ház
Eladó családi ház

Tápióság

12.9 M Ft
1 szoba
50 m2
Eladó családi ház
Eladó családi ház

Gyékényes

35.9 M Ft
5 szoba
205 m2
Eladó családi ház
Eladó családi ház

Csengőd, Tompa Mihály utca

34 M Ft
2 szoba
81 m2
Eladó családi ház
Eladó családi ház

Kaszaper

14.5 M Ft
3 szoba
63 m2
Eladó családi ház
Eladó családi ház

Somogymeggyes

14 M Ft
3 szoba
86 m2
Eladó családi ház
Eladó családi ház

Csemő

79.8 M Ft
2 szoba
88 m2
Eladó családi ház
Eladó családi ház

Badacsonytomaj

199.8 M Ft
3 szoba
166 m2