Astora Márvány8

Eladó telek
Nadap

1/2
399 000 000 Ft399 M Ft 6 650 Ft/m2
60 001 m2

Részletes adatok

Telekméret: 60001 m2
Fűtés: Egyéb
Övezet: Lakóövezet
Energetikai besorolás: Nem adta meg a hirdető

Az OTP Bank lakáshitel ajánlataFizetett hirdetés

+36 1 690
Henke Norbert
referens

Érdekel az OTP Bank kedvezményes lakáshitel ajánlata? *

* A kérdésre „Igen” válasz bejelölése esetén, az „Üzenet küldése” gombra kattintva kijelentem, hogy az OTP Bank Nyrt. Adatkezelési tájékoztatójának tartalmát megismertem és tudomásul vettem.

Eladó telek leírása

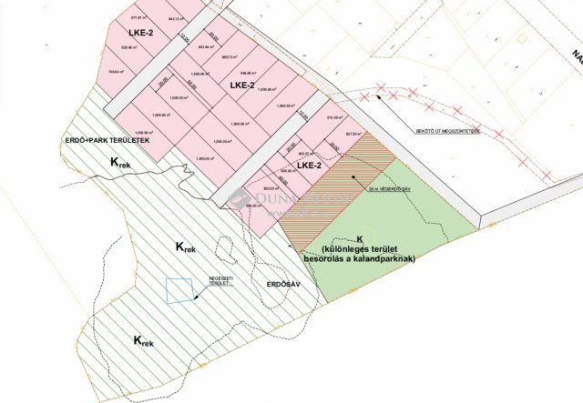
Ez az ingatlan nagy lehetőséget kínál fejlesztőknek és befektetőknek Nadap és Velence határán. A terület 60.001 m2 fekszik, amely korábban a bányászat révén jelentősen átalakult. A jelenlegi településszerkezeti terv és szabályozások módosítása folyamatban vannak ahhoz, hogy a fejlesztési célok megvalósulhassanak.A fejlesztési terület délről, északnyugatról és északkeletről részben EV–1 védelmi erdőterületek, Üh_1 területek, Kspl Lovassport területek határolják. A területre vonatkozó tervezett övezetek a következőképpen alakulnak:1. 14-17 db LKE–4 Kertvárosi lakóterületo Beépítési mód: Szabadon állóo Min. telekterület: 1200 m²o Max. beépíthetőség: 15%o Max. épületmagasság: 5 mo Min. zöldterület: 60%2. KB-rek: 5 Különleges rekreációs területo Beépítési mód: Szabadon állóo Min. telekterület: 7500 m²o Max. beépíthetőség: 10%o Max. épületmagasság: 6,5 mo Min. zöldterület: 60%3. Ek-1 Közjóléti erdőo Beépítési mód: Szabadon állóo Max. beépíthetőség: 0,5%o terepszint alatt max beépíthetőség: 0%o Max. épületmagasság: 4,5 mo Min. zöldterület: 95%A fejlesztési terület a módosított HÉSZ (helyi építési szabályzat) szerint kerül majd szabályozásra, és a területen kialakított telkek mindegyike egyedi helyrajzi számmal fog rendelkezni.Az ingatlan céges üzletrésszel együtt eladó . A mellékelt terveken jól látszik a várható telkek területek kialakítása. Mindegyik telek külön helyrajzi számmal fog rendelkezni a Hész módosítás után. Ha bárminemű kérdése van, nyugodtan kereshet, szívesen segítek!

Hirdetés feltöltve: 2025. 11. 07. Utoljára módosítva: 2025. 12. 09.

Telkek ára Nadapon

Ebből az összehasonlításból megtudhatod, hogyan viszonyul a lakás ára a környékbeli telkek átlagos árához. Ez nem azt jelenti, hogy ennyivel olcsóbb vagy drágább, mint amennyit a lakás ér, hanem hogy ennyivel tér el a környékbeli átlagtól.

Ennek a m² ára
Nadap m² ár
7 e Ft
26 e Ft 75%
Ennek az ára
Nadap átlagár
399 M Ft m Ft
88.3 m Ft -352%

Az ingatlan elhelyezkedése

Cím: Nadap

Eladó ingatlanok a környékről

Eladó telek
Eladó telek

Székesfehérvár, Lőcsei utca

60 M Ft
1280 m²
Eladó téglalakás
Eladó téglalakás

Dunaújváros

32.5 M Ft
2 szoba
51 m2
Eladó telek
Eladó telek

Fehérvárcsurgó

3564 M Ft
890170 m²
Eladó családi ház
Eladó családi ház

Mezőszilas

16.9 M Ft
0 + 3 szoba
70 m2
Eladó családi ház
Eladó családi ház

Baracska

36 M Ft
3 szoba
38 m2
Eladó telek
Eladó telek

Óbarok

89.9 M Ft
15000 m²
Eladó telek
Eladó telek

Székesfehérvár, Budai utca

198.616 M Ft
4514 m²
Eladó téglalakás
Eladó téglalakás

Gárdony

74.9 M Ft
2 szoba
45 m2
Eladó telek
Eladó telek

Martonvásár, M7 autópálya / Martonvásár

217.05 M Ft
8682 m²
Eladó telek
Eladó telek

Kajászó, Kossuth u. telek-763

22.4 M Ft
1050 m²
Eladó családi ház
Eladó családi ház

Székesfehérvár

62.9 M Ft
2 szoba
80 m2
Eladó telek
Eladó telek

Nadap

399 M Ft
60001 m²
Eladó telek
Eladó telek

Kajászó, Kossuth u. telek-758

53 M Ft
3430 m²
Eladó telek
Eladó telek

Csór

6.5 M Ft
1235 m²
1235 m2
Eladó ipari ingatlan
Eladó ipari ingatlan

Székesfehérvár

199 M Ft
2816 m²
850 m2
Eladó ikerház
Eladó ikerház

Székesfehérvár

75.9 M Ft
3 szoba
86 m2
Eladó téglalakás
Eladó téglalakás

Dunaújváros

32.5 M Ft
2 szoba
51 m2
Eladó telek
Eladó telek

Alap

1.9 M Ft
1474 m²
1474 m2
Eladó telek
Eladó telek

Pákozd, Szegfű utca

12 M Ft
1432 m²
Eladó telek
Eladó telek

Ráckeresztúr

29.9 M Ft
1718 m²
Eladó telek
Eladó telek

Sárszentmihály

42.5 M Ft
2016 m²
Eladó családi ház
Eladó családi ház

Ercsi

84.9 M Ft
3 szoba
105 m2
Eladó családi ház
Eladó családi ház

Besnyő

39.9 M Ft
1 + 1 szoba
71 m2
Eladó panellakás
Eladó panellakás

Székesfehérvár

36.99 M Ft
1 + 1 szoba
36 m2

Falusi CSOK ingatlanok

Eladó családi ház
Eladó családi ház

Halimba

59.9 M Ft
6 szoba
182 m2
Eladó családi ház
Eladó családi ház

Mezőfalva

39 M Ft
3 szoba
77 m2
Eladó családi ház
Eladó családi ház

Helesfa

17.999 M Ft
2 szoba
74 m2
Eladó téglalakás
Eladó téglalakás

Hegyeshalom

41.18 M Ft
2 szoba
38 m2
Eladó családi ház
Eladó családi ház

Hunya

10.99 M Ft
3 szoba
80 m2
Eladó családi ház
Eladó családi ház

Magyarszék

48.5 M Ft
3 + 1 szoba
86 m2
Eladó családi ház
Eladó családi ház

Lesenceistvánd

75 M Ft
2 szoba
90 m2
Eladó családi ház
Eladó családi ház

Somlóvásárhely

39.8 M Ft
1 szoba
78 m2