BAM Living

Eladó téglalakás
Zalaegerszeg, 1. emelet

+ 9 kép 1/12
114 000 000 Ft114 M Ft 1 000 000 Ft/m2
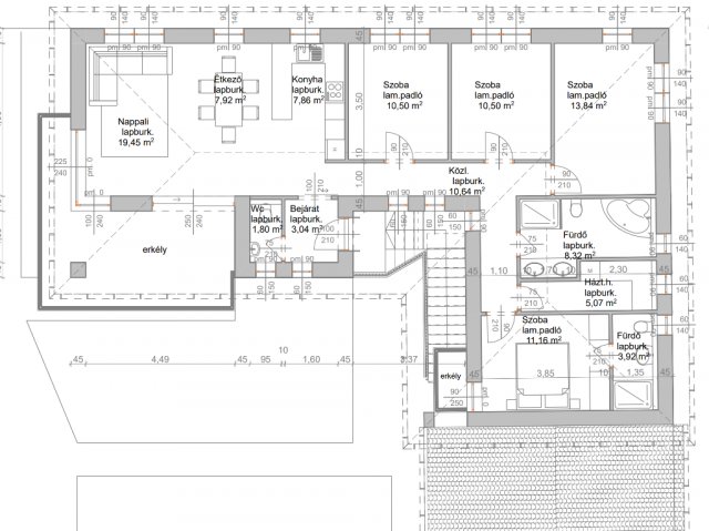
3 + 2 szoba
114 m²
1. emelet
építés éve:2026

Részletes adatok

Telekméret: 431 m2
Fűtés: Egyéb
Emelet: 1. emelet
Energetikai besorolás: Nem adta meg a hirdető

Az OTP Bank lakáshitel ajánlataFizetett hirdetés

+36 70 668
Vulpe Péterné Tóth Adrienn
referens

Érdekel az OTP Bank kedvezményes lakáshitel ajánlata? *

* A kérdésre „Igen” válasz bejelölése esetén, az „Üzenet küldése” gombra kattintva kijelentem, hogy az OTP Bank Nyrt. Adatkezelési tájékoztatójának tartalmát megismertem és tudomásul vettem.

Eladó téglalakás leírása

Eladásra kínálok Zalaegerszegen, a Vizslapark szomszédságában 431 nm-es telken, két újonnan épülő, 114 nm-es, nagy teraszos, 4 szoba plusz amerikai konyhás nappalis társasházi lakást, melyhez tartozik egy 257 nm-es gyönyörű zöld udvar, 1 autóbeálló és opcionálisan + 1 garázs is megvásárolható. A két lakás külön albetéttel rendelkezik.

Már akár az idei Karácsonyt is új otthonában töltheti!

A falazat Porotherm téglából készül, a főfalak 30 cm vastagságúak, melyekre 10 cm-es EPS hőszigetelés kerül kívülről.
A falak 10 cm, a vizes helyiségekben 12,5 cm vastagságú szerelt válaszfalakból készülnek.
Ezzel a szerkezeti megoldással AA+ energetikai besorolással bír majd az épület.

A tető választható színben, 10 cm-es szigeteléssel készül, 30 fokos nyeregtető szerkezettel. Az udvari kapu elektromosan nyíló.

A vételár tartalmazza:
- bejárati ajtó 150.000 Ft értékhatárig
- redőnyök és rovarhálók
- beltéri ajtók
- 3 rétegű műanyag nyílászárók
- fehér falfestés
- hidegburkolatok br 6.000-8000 Ft/m²-ig
- melegburkolat br 5.000-7000 Ft/m²-ig

Műszaki tartalom:
Az épületben víztárolós kondenzációs gázkazán biztosítja a melegvíz ellátást, valamint a padlófűtést is. Alternatív fűtésre és hűtésre is alkalmas klíma, és a fürdőszobába egy elektromos törölközőszárítós radiátor kerül felszerelésre.
A nyílászárók műanyag szerkezetűek, hőszigetelő, 3 rétegű, víztiszta üvegezéssel ellátott, fokozott hő- és hangszigetelő tulajdonsággal rendelkeznek.

Opcionálisan megrendelhető:
- motoros redőny
- napelem

Ajánlom:
Ez a lakás ideális választás mindazoknak, akik belvárosias környezetben keresik álmaik otthonát, mert ez tényleg olyan lehet, mint amilyennek megálmodta.
A változtatás lehetséges, amennyiben befektetésnek venné, az alsó szinten kényelmesen kialakítható egy iroda/bemutatóterem, a sok ablakfelületnek köszönhetően rendkívül világos.

Hirdetés feltöltve: 2026. 04. 01. Utoljára módosítva: 2026. 05. 13.

5 szobás téglalakások ára Zalaegerszegen

Ebből az összehasonlításból megtudhatod, hogyan viszonyul a lakás ára a környékbeli téglalakások átlagos árához. Ez nem azt jelenti, hogy ennyivel olcsóbb vagy drágább, mint amennyit a lakás ér, hanem hogy ennyivel tér el a környékbeli átlagtól.

Ennek a m² ára
Zalaegerszeg m² ár
1000 e Ft
498 e Ft -101%
Ennek az ára
Zalaegerszeg átlagár
114 M Ft m Ft
79.5 m Ft -43%

Az ingatlan elhelyezkedése

Cím: Zalaegerszeg, 1. emelet

Eladó téglalakások a környékről

Keszthely, Entz Géza sétány 11-13
Eladó téglalakás

Keszthely

97.5 M Ft
2 szoba
60 m²
Zalaegerszeg
Eladó téglalakás

Zalaegerszeg

95.6 M Ft
3 szoba
82 m²
Keszthely, Entz Géza sétány 11-13
Eladó téglalakás

Keszthely

99.9 M Ft
3 szoba
75 m²
Keszthely, Entz Géza sétány 11-13
Eladó téglalakás

Keszthely

360 M Ft
4 szoba
224 m²
Keszthely, Entz Géza sétány 11-13
Eladó téglalakás

Keszthely

99.9 M Ft
2 szoba
60 m²
Zalaegerszeg
Eladó téglalakás

Zalaegerszeg

45 M Ft
1 szoba
90 m²
Zalaegerszeg
Eladó téglalakás

Zalaegerszeg

88.2 M Ft
5 szoba
0 m²
Keszthely, Entz Géza sétány 11-13
Eladó téglalakás

Keszthely

370 M Ft
4 szoba
150 m²
Zalaegerszeg
Eladó téglalakás

Zalaegerszeg

45 M Ft
4 szoba
108 m²
Hévíz
Eladó téglalakás

Hévíz

149.9 M Ft
10 szoba
328 m²
Zalaegerszeg
Eladó téglalakás

Zalaegerszeg

33.9 M Ft
2 szoba
60 m²
Zalaegerszeg, Kerámia utca
Eladó téglalakás

Zalaegerszeg

99.762 M Ft
4 szoba
90 m²
Keszthely, Entz Géza sétány 11-13
Eladó téglalakás

Keszthely

184.8 M Ft
4 szoba
121 m²
Keszthely, Entz Géza sétány 11-13
Eladó téglalakás

Keszthely

216.93 M Ft
4 szoba
121 m²
Zalaegerszeg
Eladó téglalakás

Zalaegerszeg

45 M Ft
1 szoba
90 m²
Zalaegerszeg
Eladó téglalakás

Zalaegerszeg

45 M Ft
4 szoba
108 m²
Zalaegerszeg
Eladó téglalakás

Zalaegerszeg

94.5 M Ft
3 szoba
82 m²
Keszthely, Entz Géza sétány 11-13
Eladó téglalakás

Keszthely

78.645 M Ft
2 szoba
60 m²
Keszthely, Entz Géza sétány 11-13
Eladó téglalakás

Keszthely

99.5 M Ft
2 szoba
60 m²
Keszthely, Entz Géza sétány 11-13
Eladó téglalakás

Keszthely

99.5 M Ft
2 szoba
60 m²
Keszthely, Entz Géza sétány 11-13
Eladó téglalakás

Keszthely

370 M Ft
4 szoba
228 m²
Zalaegerszeg
Eladó téglalakás

Zalaegerszeg

92.5 M Ft
3 szoba
72 m²
Zalaegerszeg
Eladó téglalakás

Zalaegerszeg

92.5 M Ft
3 szoba
86 m²
Zalaegerszeg
Eladó téglalakás

Zalaegerszeg

84.497 M Ft
2 + 1 szoba
85 m²

Falusi CSOK ingatlanok

Zsámbok
Eladó családi ház

Zsámbok

30 M Ft
2 szoba
58 m²
Zagyvarékas, Erdő utca 16
Eladó családi ház

Zagyvarékas

0.1 M Ft
2 szoba
113 m²
Kunadacs
Eladó családi ház

Kunadacs

80 M Ft
4 szoba
148 m²
Márianosztra
Eladó családi ház

Márianosztra

38 M Ft
4 szoba
75 m²
Verseg
Eladó családi ház

Verseg

41.5 M Ft
2 szoba
55 m²
Bakonyszentkirály
Eladó családi ház

Bakonyszentkirály

99.99 M Ft
5 szoba
126 m²
Németkér
Eladó családi ház

Németkér

149.9 M Ft
2 szoba
540 m²
Fertőd
Eladó családi ház

Fertőd

140.91 M Ft
4 + 2 szoba
190 m²