City Pearl

Eladó téglalakás
Veszprém, földszint

+ 6 kép 1/9
46 990 000 Ft46.99 M Ft 1 174 750 Ft/m2
1 + 1 szoba
40 m2
földszint

Részletes adatok

Telekméret: 40 m2
Fűtés: Egyéb
Közmű: Víz, Villany, Csatorna
Extrák: Lift
Energetikai besorolás: Nem adta meg a hirdető

Az OTP Bank lakáshitel ajánlataFizetett hirdetés

+36 70 886
Neizer Éva
Trendi Ingatlan

Érdekel az OTP Bank kedvezményes lakáshitel ajánlata? *

* A kérdésre „Igen” válasz bejelölése esetén, az „Üzenet küldése” gombra kattintva kijelentem, hogy az OTP Bank Nyrt. Adatkezelési tájékoztatójának tartalmát megismertem és tudomásul vettem.

Eladó téglalakás leírása

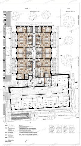
Veszprém frekventált részén, a Dózsa városban épülő 43 lakásos, liftes társasházban különböző alapterületű lakások eladók!

A meghirdetett földszinten található 39,82 nm-es lakásban amerikai konyhás nappali, hálófülke, fürdőszoba, előtér található. A nappaliból 8,76 nm-es terasz és 44,60 nm-es kertkapcsolat nyílik.

A lakás fűtéskész ára: 46.990.000 Ft
Kulcsrakész befejezés kérhető. Kulcsrakész ár: 52.990.000 Ft
Parkoló ára: 2.800.000 Ft
Garázs ára: 7.800.000 Ft - 8.500.000 Ft. A lakásokhoz 1 db parkolót vagy 1 db garázs vásárolni kell.
Lehetőség van tároló vásárlására is, ára: 1.800.000 Ft – 2.200.000 Ft/db

A minőségi anyagokból épülő tárasház 30 cm-es falazóelemből, 20 cm-es homlokzati hőszigeteléssel épül. A 3 rétegű, 6 kamrás műanyag, hőszigetelt nyílászárók kívül antracit színűek. Az ár tartalmazza a beépített, rejtett redőny tokokat lefutókkal. Felár ellenében elektromos kivitel is kérhető. A társasház fűtését hőszivattyú biztosítja, lakásonként egyedi hőmennyiségmérővel és termosztáttal.

A modern, 3 emeletes, liftes társasházban a földszinti lakások terasszal és kertrésszel, az emeleti lakások erkéllyel rendelkeznek. A társasház udvarán térkövezett gépkocsibeállók kerülnek kialakításra. Lehetőség van garázs vásárlására is.

Várható fűtéskész átadás: 2027. IV. negyedév

Ha szeretné megtekinteni a helyszínt, vagy bővebb tájékoztatást szeretne kérni, várom hívását akár hétvégén is!

Díjmentes, bankfüggetlen hitelügyintézéssel állunk rendelkezésére.

A hirdetésben feltüntetett képek illusztrációk.

Hirdetés feltöltve: 2025. 11. 25. Utoljára módosítva: 2026. 01. 25.

2 szobás téglalakások ára Veszprémben

Ebből az összehasonlításból megtudhatod, hogyan viszonyul a lakás ára a környékbeli téglalakások átlagos árához. Ez nem azt jelenti, hogy ennyivel olcsóbb vagy drágább, mint amennyit a lakás ér, hanem hogy ennyivel tér el a környékbeli átlagtól.

Ennek a m² ára
Veszprém m² ár
1175 e Ft
1105 e Ft -6%
Ennek az ára
Veszprém átlagár
46.99 M Ft m Ft
65.1 m Ft 28%

Az ingatlan elhelyezkedése

Cím: Veszprém, földszint

Eladó téglalakások a környékről

Eladó téglalakás
Eladó téglalakás

Balatonakarattya

213.055 M Ft
3 szoba
81 m2
Eladó téglalakás
Eladó téglalakás

Balatonakarattya

159.487 M Ft
2 szoba
60 m2
Eladó téglalakás
Eladó téglalakás

Balatonfüred

195 M Ft
4 szoba
121 m2
Eladó téglalakás
Eladó téglalakás

Balatonakarattya

160.147 M Ft
2 szoba
61 m2
Eladó téglalakás
Eladó téglalakás

Veszprém

168 M Ft
2 szoba
112 m2
Eladó téglalakás
Eladó téglalakás

Balatonfüred

183 M Ft
4 szoba
119 m2
Eladó téglalakás
Eladó téglalakás

Veszprém

170 M Ft
4 szoba
131 m2
Eladó téglalakás
Eladó téglalakás

Veszprém

228 M Ft
4 szoba
152 m2
Eladó téglalakás
Eladó téglalakás

Balatonakarattya

186.639 M Ft
3 szoba
71 m2
Eladó téglalakás
Eladó téglalakás

Veszprém

75 M Ft
3 szoba
67 m2
Eladó téglalakás
Eladó téglalakás

Veszprém

60 M Ft
2 szoba
40 m2
Eladó téglalakás
Eladó téglalakás

Balatonalmádi

103 M Ft
2 szoba
47 m2
Eladó téglalakás
Eladó téglalakás

Veszprém, Wartha Vince utca

99.9 M Ft
4 + 2 szoba
120 m2
Eladó téglalakás
Eladó téglalakás

Balatonakarattya

163.576 M Ft
2 szoba
62 m2
Eladó téglalakás
Eladó téglalakás

Balatonakarattya

211.785 M Ft
3 szoba
81 m2
Eladó téglalakás
Eladó téglalakás

Veszprém

189.9 M Ft
4 + 1 szoba
135 m2
Eladó téglalakás
Eladó téglalakás

Veszprém

149.9 M Ft
4 szoba
118 m2
Eladó téglalakás
Eladó téglalakás

Veszprém

99.9 M Ft
3 + 2 szoba
116 m2
Eladó téglalakás
Eladó téglalakás

Balatonakarattya

176.581 M Ft
2 szoba
67 m2
Eladó téglalakás
Eladó téglalakás

Balatonakarattya

208.331 M Ft
3 szoba
80 m2
Eladó téglalakás
Eladó téglalakás

Balatonakarattya

184.95 M Ft
2 szoba
70 m2
Eladó téglalakás
Eladó téglalakás

Balatonakarattya

170.637 M Ft
2 szoba
65 m2
Eladó téglalakás
Eladó téglalakás

Veszprém

64.9 M Ft
3 szoba
60 m2
Eladó téglalakás
Eladó téglalakás

Veszprém

170 M Ft
4 szoba
131 m2

Falusi CSOK ingatlanok

Eladó családi ház
Eladó családi ház

Háromfa, Kossuth

22.4 M Ft
139 m2
Eladó családi ház
Eladó családi ház

Badacsonytördemic

180.95 M Ft
4 szoba
160 m2
Eladó családi ház
Eladó családi ház

Bozsok

290 M Ft
6 szoba
370 m2
Eladó családi ház
Eladó családi ház

Nádasdladány

45.9 M Ft
1 + 1 szoba
50 m2
Eladó családi ház
Eladó családi ház

Egyed

24.9 M Ft
2 + 1 szoba
56 m2
Eladó családi ház
Eladó családi ház

Balatonszárszó

178 M Ft
6 szoba
260 m2
Eladó családi ház
Eladó családi ház

Szentbékkálla, Szentbékkálla

63.9 M Ft
2 szoba
143 m2
Eladó családi ház
Eladó családi ház

Magyarszék

48.5 M Ft
3 + 1 szoba
86 m2