River Life

Eladó téglalakás
Veszprém, földszint

+ 5 kép 1/8
50 990 000 Ft50.99 M Ft 1 214 048 Ft/m2
2 szoba
42 m2
földszint

Részletes adatok

Telekméret: 42 m2
Fűtés: Egyéb
Közmű: Víz, Villany, Csatorna
Extrák: Lift
Energetikai besorolás: Nem adta meg a hirdető

Az OTP Bank lakáshitel ajánlataFizetett hirdetés

+36 70 886
Neizer Éva
Trendi Ingatlan

Érdekel az OTP Bank kedvezményes lakáshitel ajánlata? *

* A kérdésre „Igen” válasz bejelölése esetén, az „Üzenet küldése” gombra kattintva kijelentem, hogy az OTP Bank Nyrt. Adatkezelési tájékoztatójának tartalmát megismertem és tudomásul vettem.

Eladó téglalakás leírása

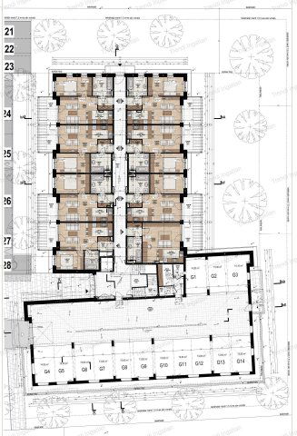
Veszprém frekventált részén, a Dózsa városban épülő 43 lakásos, liftes társasházban különböző alapterületű lakások eladók!

A meghirdetett földszinten található 42,40 nm-es lakásban amerikai konyhás nappali, szoba, fürdőszoba, előtér található. A nappaliból 8,76 nm-es terasz nyílik. A földszinti lakásokhoz kertrész tartozik.

A lakás fűtéskész ára: 50.990.000 Ft
Kulcsrakész befejezés kérhető. Kulcsrakész ár: 57.990.000 Ft
Parkoló ára: 2.800.000 Ft
Garázs ára: 7.800.000 Ft - 8.500.000 Ft. A lakásokhoz 1 db parkolót vagy 1 db garázs vásárolni kell.
Lehetőség van tároló vásárlására is, ára: 1.800.000 Ft – 2.200.000 Ft/db

A minőségi anyagokból épülő tárasház 30 cm-es falazóelemből, 20 cm-es homlokzati hőszigeteléssel épül. A 3 rétegű, 6 kamrás műanyag, hőszigetelt nyílászárók kívül antracit színűek. Az ár tartalmazza a beépített, rejtett redőny tokokat lefutókkal. Felár ellenében elektromos kivitel is kérhető. A társasház fűtését hőszivattyú biztosítja, lakásonként egyedi hőmennyiségmérővel és termosztáttal.

A modern, 3 emeletes, liftes társasházban a földszinti lakások terasszal és kertrésszel, az emeleti lakások erkéllyel rendelkeznek. A társasház udvarán térkövezett gépkocsibeállók kerülnek kialakításra. Lehetőség van garázs vásárlására is.

Várható fűtéskész átadás: 2027. IV. negyedév

Elérhető lakások:
garzonlakások 36.990.000 Ft-tól
nappali + 1 szobás lakások 48.490.00 Ft-tól
nappali + 2 szobás lakások 78.690.000 Ft-tól

Ha szeretné megtekinteni a helyszínt, vagy bővebb tájékoztatást szeretne kérni, várom hívását akár hétvégén is!

Díjmentes, bankfüggetlen hitelügyintézéssel állunk rendelkezésére.

A hirdetésben feltüntetett képek illusztrációk.

Hirdetés feltöltve: 2025. 09. 17. Utoljára módosítva: 2025. 10. 29.

2 szobás téglalakások ára Veszprémben

Ebből az összehasonlításból megtudhatod, hogyan viszonyul a lakás ára a környékbeli téglalakások átlagos árához. Ez nem azt jelenti, hogy ennyivel olcsóbb vagy drágább, mint amennyit a lakás ér, hanem hogy ennyivel tér el a környékbeli átlagtól.

Ennek a m² ára
Veszprém m² ár
1214 e Ft
1002 e Ft -21%
Ennek az ára
Veszprém átlagár
50.99 M Ft m Ft
60.9 m Ft 16%

Az ingatlan elhelyezkedése

Cím: Veszprém, földszint

Eladó téglalakások a környékről

Eladó téglalakás
Eladó téglalakás

Veszprém

75 M Ft
3 szoba
67 m2
Eladó téglalakás
Eladó téglalakás

Veszprém

99.9 M Ft
3 + 2 szoba
116 m2
Eladó téglalakás
Eladó téglalakás

Veszprém

60 M Ft
2 szoba
40 m2
Eladó téglalakás
Eladó téglalakás

Balatonakarattya

213.055 M Ft
3 szoba
81 m2
Eladó téglalakás
Eladó téglalakás

Balatonakarattya

186.639 M Ft
3 szoba
71 m2
Eladó téglalakás
Eladó téglalakás

Veszprém

57.9 M Ft
3 szoba
74 m2
Eladó téglalakás
Eladó téglalakás

Balatonakarattya

211.785 M Ft
3 szoba
81 m2
Eladó téglalakás
Eladó téglalakás

Balatonakarattya

184.95 M Ft
2 szoba
70 m2
Eladó téglalakás
Eladó téglalakás

Veszprém

79 M Ft
3 szoba
89 m2
Eladó téglalakás
Eladó téglalakás

Veszprém, Wartha Vince utca

99.9 M Ft
4 + 2 szoba
120 m2
Eladó téglalakás
Eladó téglalakás

Ajka, Új élet utca

41 M Ft
3 szoba
66 m2
Eladó téglalakás
Eladó téglalakás

Balatonakarattya

208.331 M Ft
3 szoba
80 m2
Eladó téglalakás
Eladó téglalakás

Balatonakarattya

239.192 M Ft
3 szoba
92 m2
Eladó téglalakás
Eladó téglalakás

Veszprém

144.067 M Ft
5 szoba
101 m2
Eladó téglalakás
Eladó téglalakás

Veszprém

60 M Ft
2 szoba
40 m2
Eladó téglalakás
Eladó téglalakás

Veszprém

144.067 M Ft
5 szoba
101 m2
Eladó téglalakás
Eladó téglalakás

Veszprém

228 M Ft
4 szoba
152 m2
Eladó téglalakás
Eladó téglalakás

Pápa

37.445 M Ft
1 + 1 szoba
41 m2
Eladó téglalakás
Eladó téglalakás

Balatonakarattya

205.384 M Ft
3 szoba
78 m2
Eladó téglalakás
Eladó téglalakás

Veszprém

204.9 M Ft
6 szoba
175 m2
Eladó téglalakás
Eladó téglalakás

Veszprém

79 M Ft
3 szoba
89 m2
Eladó téglalakás
Eladó téglalakás

Veszprém

119.9 M Ft
4 szoba
94 m2
Eladó téglalakás
Eladó téglalakás

Veszprém

79 M Ft
3 szoba
89 m2
Eladó téglalakás
Eladó téglalakás

Veszprém

55 M Ft
4 szoba
103 m2

Falusi CSOK ingatlanok

Eladó családi ház
Eladó családi ház

Tápiógyörgye

14.9 M Ft
2 szoba
60 m2
Eladó családi ház
Eladó családi ház

Kaszaper

14.5 M Ft
3 szoba
63 m2
Eladó családi ház
Eladó családi ház

Bábolna

90.3 M Ft
5 szoba
100 m2
Eladó családi ház
Eladó családi ház

Szigliget

125 M Ft
2 + 2 szoba
137 m2
Eladó családi ház
Eladó családi ház

Törtel

32 M Ft
2 szoba
67 m2
Eladó családi ház
Eladó családi ház

Tiszaroff

12.9 M Ft
3 szoba
87 m2
Eladó családi ház
Eladó családi ház

Kétpó

14.9 M Ft
1 + 2 szoba
86 m2
Eladó családi ház
Eladó családi ház

Bezenye

84.9 M Ft
4 + 1 szoba
145 m2