Avico Greentop

Eladó téglalakás
Veresegyház, 2. emelet

52 878 250 Ft52.878 M Ft 1 652 445 Ft/m2
1 szoba
32 m²
2. emelet
építés éve:2026

Részletes adatok

Fűtés: Egyéb
Emelet: 2. emelet
Közmű: Víz, Villany, Csatorna, Szélessáv, KábelTV
Extrák: Lift
Energetikai besorolás: A+

Az OTP Bank lakáshitel ajánlataFizetett hirdetés

+36 30 948
Harai és Társai Kereskedelmi és Szolgáltató Betéti Társaság
Harai Ingatlaniroda

Érdekel az OTP Bank kedvezményes lakáshitel ajánlata? *

* A kérdésre „Igen” válasz bejelölése esetén, az „Üzenet küldése” gombra kattintva kijelentem, hogy az OTP Bank Nyrt. Adatkezelési tájékoztatójának tartalmát megismertem és tudomásul vettem.

Eladó téglalakás leírása

Természetre váltana? Veresegyházon most megteheti.
Festői környezetben Veresegyház egyik csendes, természetközi és panorámás részén, kínálunk megvételre a legkorszerűbb technológiával épülő társasházi lakásokat irodánk Kiemelt Partnerének beruházásában, Exkluzív kivitelezésében.

Ez nem csak egy új építésű projekt – ez egy jövőtálló otthon!

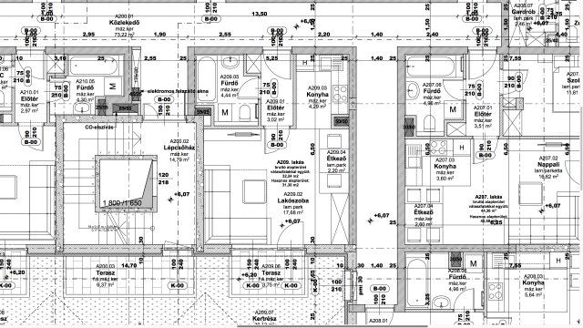
A hirdetésben az A épület 2. emeletén található 9-es számú lakást kínáljuk. Liftes társasház!

A projekt két ütemben valósul meg:
Zöld környezetben, szép kilátással épülő, modern szemléletű lakások közül választhat:
•Kertkapcsolatos
•Erkélyes
•Teraszos kivitelek

Mindegyik lakásra jellemző a letisztult design, átgondolt alaprajz és nagy üvegfelületek, hogy a természet valóban beköltözhessen az otthonába.

Helyiségek és méretek: (praktikusan átgondolt elrendezés)
hasznos alapterület: 32.24 m2

•Nappali: 17,68 m²
•Konyha: 4.29 m²
•Étkező: 2,2 m²
•Előtér: 3,02 m²
•Fürdőszoba: 4,44 m²
•Panorámás terasz: 3,75 m²

Műszaki tartalom, ami a jövőt képviseli:
•Korszerű, energiatakarékos hőszivattyús fűtési rendszer
•Modern mennyezeti hűtés–fűtés
•Kiemelkedő hőszigetelés
•21. századi gépészeti megoldások

Alacsony fenntartási költség, magas komfortérzet – kompromisszumok nélkül, panorámás erkéllyel!

Extra lehetőségek:
•Vásárolható zárt parkoló 7.5 mft
•Külön tárolóhelyiség 3.12-3.40 mft

Lokáció, ami élhető.
Csendes, biztonságos környék, mégis közel a tömegközlekedéshez és a város infrastruktúrájához.
Ideális választás családoknak, pároknak és befektetőknek egyaránt.

Ha modern otthont keres zöld környezetben, ahol a technológia a kényelmet szolgálja, ezt a projektet érdemes megnéznie.
További információért és időpont egyeztetésért keressen bizalommal!
Mollináry Ádám

Hirdetés feltöltve: 2026. 02. 13. Utoljára módosítva: 2026. 04. 02.

1 szobás téglalakások ára Veresegyházon

Ebből az összehasonlításból megtudhatod, hogyan viszonyul a lakás ára a környékbeli téglalakások átlagos árához. Ez nem azt jelenti, hogy ennyivel olcsóbb vagy drágább, mint amennyit a lakás ér, hanem hogy ennyivel tér el a környékbeli átlagtól.

Ennek a m² ára
Veresegyház m² ár
1652 e Ft
671 e Ft -146%
Ennek az ára
Veresegyház átlagár
52.878 M Ft m Ft
18.3 m Ft -189%

Az ingatlan elhelyezkedése

Cím: Veresegyház, 2. emelet

Eladó téglalakások a környékről

Göd
Eladó téglalakás

Göd

27.9 M Ft
2 szoba
44 m²
Göd
Eladó téglalakás

Göd

27.9 M Ft
2 szoba
43 m²
Veresegyház
Eladó téglalakás

Veresegyház

125 M Ft
4 szoba
109 m²
Veresegyház
Eladó téglalakás

Veresegyház

121.3 M Ft
3 szoba
84 m²
Göd
Eladó téglalakás

Göd

32.5 M Ft
2 szoba
44 m²
Göd
Eladó téglalakás

Göd

28.9 M Ft
2 szoba
46 m²
Göd
Eladó téglalakás

Göd

27.9 M Ft
2 szoba
43 m²
Veresegyház
Eladó téglalakás

Veresegyház

77.584 M Ft
2 szoba
49 m²
Göd
Eladó téglalakás

Göd

27.9 M Ft
2 szoba
43 m²
Veresegyház
Eladó téglalakás

Veresegyház

123.4 M Ft
3 szoba
85 m²
Veresegyház
Eladó téglalakás

Veresegyház

76.9 M Ft
2 szoba
60 m²
Veresegyház
Eladó téglalakás

Veresegyház

68.716 M Ft
2 szoba
46 m²
Veresegyház
Eladó téglalakás

Veresegyház

110.787 M Ft
3 szoba
69 m²
Göd
Eladó téglalakás

Göd

29.5 M Ft
2 szoba
44 m²
Göd
Eladó téglalakás

Göd

46.5 M Ft
4 szoba
72 m²
Göd, Oázis utca
Eladó téglalakás

Göd

27.9 M Ft
2 szoba
44 m²
Veresegyház
Eladó téglalakás

Veresegyház

84.281 M Ft
2 szoba
52 m²
Veresegyház
Eladó téglalakás

Veresegyház

116 M Ft
3 szoba
82 m²
Veresegyház
Eladó téglalakás

Veresegyház

99.761 M Ft
2 szoba
52 m²
Göd
Eladó téglalakás

Göd

32.9 M Ft
2 szoba
44 m²
Veresegyház
Eladó téglalakás

Veresegyház

81.9 M Ft
2 szoba
81 m²
Veresegyház
Eladó téglalakás

Veresegyház

129.2 M Ft
5 szoba
114 m²
Göd
Eladó téglalakás

Göd

28.9 M Ft
2 szoba
46 m²
Göd
Eladó téglalakás

Göd

44.5 M Ft
3 szoba
73 m²

Falusi CSOK ingatlanok

Kánya
Eladó családi ház

Kánya

5.5 M Ft
3 szoba
70 m²
Balatonudvari
Eladó családi ház

Balatonudvari

230 M Ft
9 szoba
260 m²
Zagyvarékas, Erdő utca 16
Eladó családi ház

Zagyvarékas

0.1 M Ft
2 szoba
113 m²
Balatonkeresztúr, Kanizsai utca
Eladó ikerház

Balatonkeresztúr

32.9 M Ft
3 szoba
30 m²
Bag
Eladó családi ház

Bag

16.9 M Ft
6 szoba
160 m²
Fonyód, Rózsa utca
Eladó ikerház

Fonyód

105 M Ft
5 szoba
134 m²
Balatonőszöd
Eladó családi ház

Balatonőszöd

72 M Ft
4 szoba
92 m²
Jánosháza
Eladó családi ház

Jánosháza

23.5 M Ft
3 szoba
90 m²