Avico Greentop

Eladó téglalakás
Tiszavasvári, 3. emelet

+ 12 kép 1/15
18 000 000 Ft18 M Ft 264 706 Ft/m2
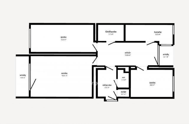
2 + 1 szoba
68 m²
3. emelet
építés éve:1980

Részletes adatok

Állapot: Átlagos
Fűtés: Távfűtés
Energetikai besorolás: Nem adta meg a hirdető

Az OTP Bank lakáshitel ajánlataFizetett hirdetés

+36 20 390
Tóth Zoltán
OTPIP Nyíregyháza Hunyadi u.

Érdekel az OTP Bank kedvezményes lakáshitel ajánlata? *

* A kérdésre „Igen” válasz bejelölése esetén, az „Üzenet küldése” gombra kattintva kijelentem, hogy az OTP Bank Nyrt. Adatkezelési tájékoztatójának tartalmát megismertem és tudomásul vettem.

Eladó téglalakás leírása

Eladó tágas, 72 nm-es, 3. emeleti téglalakás Tiszavasváriban!

Tiszavasvári központjától néhány percre, egy négyemeletes téglaépület 3. emeletén kínálunk eladásra egy karbantartott, világos, 72 nm-es lakást.
Az ingatlan beton alapon épült, tégla falazatú, és központi, radiátoros fűtéssel rendelkezik, amely rendkívül kedvező rezsivel üzemel ? a téli hónapokban is tízezer forint alatt marad a fűtés költsége.
A keleti fekvésű lakás nyáron is kellemesen hűvös, köszönhetően a ház előtt álló nagy, árnyékot adó fáknak.
A környék csendes, rendezett, a városközpont, üzletek, óvoda és iskola mind pár perc sétára találhatók, így ideális választás családok számára is.
OTP Banki hátterünknek köszönhetően finanszírozási igényekben (pl. Otthon Start Hitelprogram, Babaváró, Falusi CSOK, CSOK Plusz, Lakáshitel, Személyi kölcsön stb.), illetve biztosítások tekintetében is díjmentesen, soron kívüli ügyintézéssel segítem ügyfeleim!
Referenciaszám : M315013

Hirdetés feltöltve: 2025. 11. 26. Utoljára módosítva: 2026. 04. 09.

3 szobás téglalakások ára Tiszavasváriban

Ebből az összehasonlításból megtudhatod, hogyan viszonyul a lakás ára a környékbeli téglalakások átlagos árához. Ez nem azt jelenti, hogy ennyivel olcsóbb vagy drágább, mint amennyit a lakás ér, hanem hogy ennyivel tér el a környékbeli átlagtól.

Ennek a m² ára
Tiszavasvári m² ár
265 e Ft
325 e Ft 19%
Ennek az ára
Tiszavasvári átlagár
18 M Ft m Ft
21.1 m Ft 15%

Az ingatlan elhelyezkedése

Cím: Tiszavasvári, 3. emelet

Eladó téglalakások a környékről

Tiszavasvári
Eladó téglalakás

Tiszavasvári

18 M Ft
2 + 1 szoba
68 m²
Tiszavasvári
Eladó téglalakás

Tiszavasvári

31.5 M Ft
3 + 1 szoba
115 m²
Nyíregyháza
Eladó téglalakás

Nyíregyháza

64.9 M Ft
4 szoba
120 m²
Nyíregyháza, Örökösföld, Törzs utca 2
Eladó téglalakás

Nyíregyháza

74.9 M Ft
3 szoba
75 m²
Tiszavasvári
Eladó téglalakás

Tiszavasvári

6.99 M Ft
2 szoba
63 m²
Tiszavasvári
Eladó téglalakás

Tiszavasvári

31.5 M Ft
3 + 1 szoba
115 m²
Tiszavasvári, Kossuth Lajos utca
Eladó téglalakás

Tiszavasvári

18 M Ft
3 szoba
61 m²
Tiszavasvári
Eladó téglalakás

Tiszavasvári

25.5 M Ft
1 + 2 szoba
59 m²
Nyíregyháza
Eladó téglalakás

Nyíregyháza

36 M Ft
2 szoba
58 m²
Tiszavasvári
Eladó téglalakás

Tiszavasvári

19.5 M Ft
3 szoba
61 m²
Tiszavasvári
Eladó téglalakás

Tiszavasvári

6.99 M Ft
2 szoba
63 m²
Nyíregyháza
Eladó téglalakás

Nyíregyháza

55.5 M Ft
2 szoba
78 m²
Tiszavasvári
Eladó téglalakás

Tiszavasvári

25.5 M Ft
2 szoba
64 m²
Tiszavasvári
Eladó téglalakás

Tiszavasvári

18 M Ft
2 + 1 szoba
68 m²
Nyíregyháza, Örökösföld, Törzs utca 2
Eladó téglalakás

Nyíregyháza

67.9 M Ft
3 szoba
71 m²
Tiszavasvári
Eladó téglalakás

Tiszavasvári

25.5 M Ft
1 + 2 szoba
59 m²
Nyíregyháza
Eladó téglalakás

Nyíregyháza

73 M Ft
4 szoba
67 m²
Nyíregyháza
Eladó téglalakás

Nyíregyháza

55.9 M Ft
2 szoba
74 m²
Nyíregyháza
Eladó téglalakás

Nyíregyháza

36 M Ft
2 szoba
58 m²
Nyíregyháza
Eladó téglalakás

Nyíregyháza

73 M Ft
2 + 1 szoba
67 m²
Nyíregyháza
Eladó téglalakás

Nyíregyháza

64.9 M Ft
4 szoba
120 m²
Nyíregyháza
Eladó téglalakás

Nyíregyháza

53.7 M Ft
3 szoba
83 m²
Tiszavasvári
Eladó téglalakás

Tiszavasvári

25.5 M Ft
1 + 2 szoba
59 m²
Tiszavasvári
Eladó téglalakás

Tiszavasvári

25.5 M Ft
2 szoba
64 m²

Falusi CSOK ingatlanok

Szegvár
Eladó családi ház

Szegvár

14.3 M Ft
3 + 1 szoba
130 m²
Somlójenő
Eladó családi ház

Somlójenő

64.9 M Ft
4 szoba
221 m²
Mártély
Eladó családi ház

Mártély

75 M Ft
1107 m²
0 m²
Bag
Eladó családi ház

Bag

16.9 M Ft
6 szoba
160 m²
Balatonszemes
Eladó téglalakás

Balatonszemes

125.2 M Ft
2 szoba
50 m²
Vatta
Eladó családi ház

Vatta

28.3 M Ft
2 szoba
56 m²
Nagyhegyes
Eladó családi ház

Nagyhegyes

54.99 M Ft
2 szoba
79 m²
Ásványráró
Eladó családi ház

Ásványráró

42.5 M Ft
703 m²
69 m²