Seven Pearl

Eladó téglalakás
Tatabánya, Petőfi Sándor utca, 1. emelet

1/1
46 713 961 Ft46.714 M Ft 1 015 521 Ft/m2
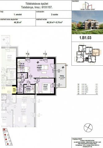
2 szoba
46 m2
1. emelet
építés éve:2027

Részletes adatok

Fűtés: Egyéb
Energetikai besorolás: Nem adta meg a hirdető

Az OTP Bank lakáshitel ajánlataFizetett hirdetés

+36 20 553
Tócsán Krisztina

Érdekel az OTP Bank kedvezményes lakáshitel ajánlata? *

* A kérdésre „Igen” válasz bejelölése esetén, az „Üzenet küldése” gombra kattintva kijelentem, hogy az OTP Bank Nyrt. Adatkezelési tájékoztatójának tartalmát megismertem és tudomásul vettem.

Eladó téglalakás leírása

ÚJ TÁRSASHÁZI PROJEKT TATABÁNYÁN
Otthonok a kertváros szívében

A GGE Invest Kft. hamarosan megkezdi legújabb, eddigi legnagyobb volumenű, városrészt formáló beruházását Tatabánya egyik legkedveltebb városrészében, Kertvárosban. A modern stílusú társasház nyugodt, zöldövezeti környezetben, kiváló közlekedési kapcsolatok és fejlett városi infrastruktúra közelében épül. A tervezés során kiemelt figyelmet fordítottunk a praktikusságra, élhetőségre és energiahatékonyságra – így garantálva az időtálló értéket és a kényelmes mindennapokat.

Előértékesítésben – Modern lakások Tatabánya Kertvárosában
Megbízható fejlesztőtől kínálunk új építésű, korszerű társasházi lakásokat Tatabánya egyik legszebb, kertvárosi részén. A projekt lakásai fűtéskész vagy kulcsrakész állapotban leköthetők, a várható átadás 2027. április hónapban történik.
Az ingatlan a csendes, mégis központi fekvésű Petőfi Sándor utcából nyíló mellékutcában valósul meg. A környék lakóövezetként jól kiépült, családi házak és kisebb társasházak jellemzik. A városközpont, az ipari park, valamint az 1-es főút és az M1-es autópálya könnyen elérhető, a tömegközlekedés pedig gyors és kényelmes kapcsolatot biztosít Tatabánya minden részével.

LAKÁSOK
A lakások legfontosabb jellemzői:
•Lakásméretek: 28–90 m²-es, jól átgondolt elrendezésű otthonok
•Energiahatékony megoldások:
•Központi hőszivattyús fűtés padlófűtéssel
•Fan-coil hűtés előkészítés, rendelhető egységekkel
•Műanyag, 3 rétegű üvegezésű nyílászárók árnyékolással
•15 cm vastag homlokzati hőszigetelés
•A - A+ energetikai besorolás
•Alacsony fenntartási költségek: lakásonkénti almérőkkel ellátott közműrendszer
•Igény szerint elérhető: okos otthon funkciók
•Parkolás: felszíni és mélygarázsos parkolóhelyek, akár elektromos autótöltési lehetőséggel
•Tárolók: külön megvásárolhatók

Ideális választás befektetőknek és otthont keresőknek is:
•Kiváló elhelyezkedés, jó közlekedési kapcsolatokkal
•Modern építészeti és műszaki kialakítás
•Jogosult a támogatási programokra, beleértve az Otthon Start Programot is
•Átlátható, biztonságos ügyintézés: saját ügyvédi háttér és előkészített társasházi alapító okirat
•Szakértői támogatás pénzügyi és hitelmegoldásokban

Akár első otthonát keresi, akár jövedelmező befektetésben gondolkodik, projektünkben biztosan megtalálja a megfelelő lakást. Lépjen kapcsolatba velünk, és válassza ki az Ön számára tökéletes otthont még az építkezés korai szakaszában!

Bővebb tájékoztatásért forduljon hozzánk bizalommal elérhetőségeinken.

Hirdetés feltöltve: 2025. 11. 25.

2 szobás téglalakások ára Tatabányán

Ebből az összehasonlításból megtudhatod, hogyan viszonyul a lakás ára a környékbeli téglalakások átlagos árához. Ez nem azt jelenti, hogy ennyivel olcsóbb vagy drágább, mint amennyit a lakás ér, hanem hogy ennyivel tér el a környékbeli átlagtól.

Ennek a m² ára
Tatabánya m² ár
1016 e Ft
812 e Ft -25%
Ennek az ára
Tatabánya átlagár
46.714 M Ft m Ft
39.4 m Ft -19%

Az ingatlan elhelyezkedése

Cím: Tatabánya, Petőfi Sándor utca, 1. emelet

Eladó téglalakások a környékről

Eladó téglalakás
Eladó téglalakás

Tatabánya

92.25 M Ft
4 szoba
118 m2
Eladó téglalakás
Eladó téglalakás

Komárom, Városi

38.9 M Ft
1 szoba
43 m2
Eladó téglalakás
Eladó téglalakás

Tatabánya, Kertváros, Kamilla utca

75 M Ft
4 szoba
114 m2
Eladó téglalakás
Eladó téglalakás

Komárom, Városi

86.06 M Ft
2 szoba
73 m2
Eladó téglalakás
Eladó téglalakás

Komárom, Mártírok útja

41.903 M Ft
2 szoba
55 m2
Eladó téglalakás
Eladó téglalakás

Komárom, Mártírok útja

34.02 M Ft
2 szoba
48 m2
Eladó téglalakás
Eladó téglalakás

Komárom, Mártírok útja

36.225 M Ft
47 m2
Eladó téglalakás
Eladó téglalakás

Esztergom, Bajcsy-Zsilinszky Endre út

178 M Ft
2 szoba
178 m2
Eladó téglalakás
Eladó téglalakás

Tatabánya

44.9 M Ft
1 szoba
42 m2
Eladó téglalakás
Eladó téglalakás

Tatabánya

44.9 M Ft
3 szoba
51 m2
Eladó téglalakás
Eladó téglalakás

Esztergom, Vaskapui út

99.9 M Ft
4 szoba
140 m2
Eladó téglalakás
Eladó téglalakás

Tatabánya

42 M Ft
2 szoba
44 m2
Eladó téglalakás
Eladó téglalakás

Oroszlány

28.499 M Ft
3 szoba
51 m2
Eladó téglalakás
Eladó téglalakás

Dorog

89 M Ft
2 szoba
150 m2
Eladó téglalakás
Eladó téglalakás

Komárom, Mártírok útja

38.255 M Ft
2 szoba
50 m2
Eladó téglalakás
Eladó téglalakás

Tatabánya, 6-os telep, Hentes utca 33/2

2.13 M Ft
1 + 1 szoba
63 m2
Eladó téglalakás
Eladó téglalakás

Komárom

30.8 M Ft
1 szoba
44 m2
Eladó téglalakás
Eladó téglalakás

Tatabánya

46 M Ft
3 szoba
56 m2
Eladó téglalakás
Eladó téglalakás

Esztergom, Vaskapui út

99.9 M Ft
4 szoba
140 m2
Eladó téglalakás
Eladó téglalakás

Tatabánya

53 M Ft
2 szoba
45 m2
Eladó téglalakás
Eladó téglalakás

Tatabánya

69.25 M Ft
3 szoba
69 m2
Eladó téglalakás
Eladó téglalakás

Komárom

39.75 M Ft
2 szoba
53 m2
Eladó téglalakás
Eladó téglalakás

Komárom, Mártírok útja

46.8 M Ft
2 szoba
65 m2
Eladó téglalakás
Eladó téglalakás

Komárom, Mártírok útja

35.361 M Ft
2 szoba
45 m2

Falusi CSOK ingatlanok

Eladó családi ház
Eladó családi ház

Tiszajenő

25.9 M Ft
3 + 1 szoba
120 m2
Eladó családi ház
Eladó családi ház

Ceglédbercel, Iskola utca

109 M Ft
5 szoba
133 m2
Eladó családi ház
Eladó családi ház

Ceglédbercel

67 M Ft
5 szoba
174 m2
Eladó családi ház
Eladó családi ház

Jakabszállás

320 M Ft
15 szoba
665 m2
Eladó családi ház
Eladó családi ház

Besnyő

149 M Ft
6 szoba
285 m2
Eladó családi ház
Eladó családi ház

Törtel, Kőrösi út 101

22.21 M Ft
2 szoba
117 m2
Eladó családi ház
Eladó családi ház

Egyed

24.9 M Ft
2 + 1 szoba
56 m2
Eladó ikerház
Eladó ikerház

Balatonakali

165 M Ft
4 szoba
138 m2