NapForrás 20 - Buda

Eladó téglalakás
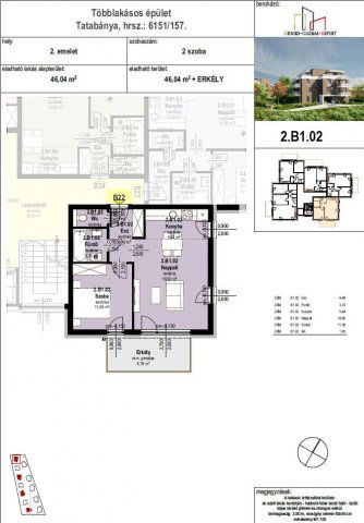
Tatabánya, Kertváros, B épület Alkotmány utca 1/A, 2. emelet

1/1
47 833 604 Ft47.834 M Ft 1 039 861 Ft/m2
2 szoba
46 m2
2. emelet

Részletes adatok

Fűtés: Egyéb
Energetikai besorolás: Nem adta meg a hirdető

Az OTP Bank lakáshitel ajánlataFizetett hirdetés

+36 20 553
Tócsán Krisztina

Érdekel az OTP Bank kedvezményes lakáshitel ajánlata? *

* A kérdésre „Igen” válasz bejelölése esetén, az „Üzenet küldése” gombra kattintva kijelentem, hogy az OTP Bank Nyrt. Adatkezelési tájékoztatójának tartalmát megismertem és tudomásul vettem.

Eladó téglalakás leírása

ÚJ TÁRSASHÁZI PROJEKT TATABÁNYÁN
Otthonok a kertváros szívében

A GGE Invest Kft. hamarosan megkezdi legújabb, eddigi legnagyobb volumenű, városrészt formáló beruházását Tatabánya egyik legkedveltebb városrészében, Kertvárosban. A modern stílusú társasház nyugodt, zöldövezeti környezetben, kiváló közlekedési kapcsolatok és fejlett városi infrastruktúra közelében épül. A tervezés során kiemelt figyelmet fordítottunk a praktikusságra, élhetőségre és energiahatékonyságra – így garantálva az időtálló értéket és a kényelmes mindennapokat.

Előértékesítésben – Modern lakások Tatabánya Kertvárosában
Megbízható fejlesztőtől kínálunk új építésű, korszerű társasházi lakásokat Tatabánya egyik legszebb, kertvárosi részén. A projekt lakásai fűtéskész vagy kulcsrakész állapotban leköthetők, a várható átadás 2027. április hónapban történik.
Az ingatlan a csendes, mégis központi fekvésű Petőfi Sándor utcából nyíló mellékutcában valósul meg. A környék lakóövezetként jól kiépült, családi házak és kisebb társasházak jellemzik. A városközpont, az ipari park, valamint az 1-es főút és az M1-es autópálya könnyen elérhető, a tömegközlekedés pedig gyors és kényelmes kapcsolatot biztosít Tatabánya minden részével.

LAKÁSOK
A lakások legfontosabb jellemzői:
•Lakásméretek: 28–90 m²-es, jól átgondolt elrendezésű otthonok
•Energiahatékony megoldások:
•Központi hőszivattyús fűtés padlófűtéssel
•Fan-coil hűtés előkészítés, rendelhető egységekkel
•Műanyag, 3 rétegű üvegezésű nyílászárók árnyékolással
•15 cm vastag homlokzati hőszigetelés
•A - A+ energetikai besorolás
•Alacsony fenntartási költségek: lakásonkénti almérőkkel ellátott közműrendszer
•Igény szerint elérhető: okos otthon funkciók
•Parkolás: felszíni és mélygarázsos parkolóhelyek, akár elektromos autótöltési lehetőséggel
•Tárolók: külön megvásárolhatók

Ideális választás befektetőknek és otthont keresőknek is:
•Kiváló elhelyezkedés, jó közlekedési kapcsolatokkal
•Modern építészeti és műszaki kialakítás
•Jogosult a támogatási programokra, beleértve az Otthon Start Programot is
•Átlátható, biztonságos ügyintézés: saját ügyvédi háttér és előkészített társasházi alapító okirat
•Szakértői támogatás pénzügyi és hitelmegoldásokban


Akár első otthonát keresi, akár jövedelmező befektetésben gondolkodik, projektünkben biztosan megtalálja a megfelelő lakást. Lépjen kapcsolatba velünk, és válassza ki az Ön számára tökéletes otthont még az építkezés korai szakaszában!

Bővebb tájékoztatásért forduljon hozzánk bizalommal elérhetőségeinken.

Hirdetés feltöltve: 2025. 09. 12. Utoljára módosítva: 2025. 12. 16.

2 szobás téglalakások ára Tatabányán

Ebből az összehasonlításból megtudhatod, hogyan viszonyul a lakás ára a környékbeli téglalakások átlagos árához. Ez nem azt jelenti, hogy ennyivel olcsóbb vagy drágább, mint amennyit a lakás ér, hanem hogy ennyivel tér el a környékbeli átlagtól.

Ennek a m² ára
Kertváros m² ár
Tatabánya m² ár
1040 e Ft
629 e Ft -65%
855 e Ft -22%
Ennek az ára
Kertváros átlagár
Tatabánya átlagár
47.834 M Ft m Ft
38.6 m Ft -24%
52.7 m Ft 9%

Az ingatlan elhelyezkedése

Cím: Tatabánya, Kertváros, B épület Alkotmány utca 1/A, 2. emelet

Eladó téglalakások a környékről

Eladó téglalakás
Eladó téglalakás

Komárom, Városi

86.06 M Ft
2 szoba
73 m2
Eladó téglalakás
Eladó téglalakás

Tatabánya

48.6 M Ft
3 szoba
56 m2
Eladó téglalakás
Eladó téglalakás

Komárom, Mártírok útja

41.903 M Ft
2 szoba
55 m2
Eladó téglalakás
Eladó téglalakás

Tatabánya

115 M Ft
4 szoba
70 m2
Eladó téglalakás
Eladó téglalakás

Komárom, Mártírok útja

35.361 M Ft
2 szoba
45 m2
Eladó téglalakás
Eladó téglalakás

Tatabánya

44.9 M Ft
1 szoba
42 m2
Eladó téglalakás
Eladó téglalakás

Tatabánya

41.49 M Ft
3 szoba
60 m2
Eladó téglalakás
Eladó téglalakás

Tatabánya, Kertváros, Kamilla utca

75 M Ft
4 szoba
114 m2
Eladó téglalakás
Eladó téglalakás

Komárom, Mártírok útja

36.225 M Ft
47 m2
Eladó téglalakás
Eladó téglalakás

Nyergesújfalu

47.158 M Ft
2 szoba
49 m2
Eladó téglalakás
Eladó téglalakás

Komárom

39.75 M Ft
2 szoba
53 m2
Eladó téglalakás
Eladó téglalakás

Tatabánya

63.9 M Ft
3 szoba
69 m2
Eladó téglalakás
Eladó téglalakás

Esztergom, Vaskapui út

99.9 M Ft
4 szoba
140 m2
Eladó téglalakás
Eladó téglalakás

Komárom

35 M Ft
1 szoba
50 m2
Eladó téglalakás
Eladó téglalakás

Dorog

89 M Ft
2 szoba
150 m2
Eladó téglalakás
Eladó téglalakás

Tatabánya

115 M Ft
4 szoba
118 m2
Eladó téglalakás
Eladó téglalakás

Komárom, Mártírok útja

33.946 M Ft
2 szoba
43 m2
Eladó téglalakás
Eladó téglalakás

Oroszlány

28.499 M Ft
3 szoba
51 m2
Eladó téglalakás
Eladó téglalakás

Komárom, Mártírok útja

34.02 M Ft
2 szoba
48 m2
Eladó téglalakás
Eladó téglalakás

Esztergom, Vaskapui út

99.9 M Ft
4 szoba
140 m2
Eladó téglalakás
Eladó téglalakás

Tatabánya

130 M Ft
3 szoba
141 m2
Eladó téglalakás
Eladó téglalakás

Tatabánya

69.9 M Ft
3 szoba
63 m2
Eladó téglalakás
Eladó téglalakás

Komárom, Mártírok útja

46.8 M Ft
2 szoba
65 m2
Eladó téglalakás
Eladó téglalakás

Esztergom, Bajcsy-Zsilinszky Endre út

178 M Ft
2 szoba
178 m2

Falusi CSOK ingatlanok

Eladó téglalakás
Eladó téglalakás

Balatonszemes

202 M Ft
3 szoba
154 m2
Eladó családi ház
Eladó családi ház

Jászalsószentgyörgy

39.9 M Ft
2 szoba
74 m2
Eladó téglalakás
Eladó téglalakás

Balatonszemes

125.2 M Ft
2 szoba
50 m2
Eladó panellakás
Eladó panellakás

Pétfürdő

49.9 M Ft
3 szoba
71 m2
Eladó családi ház
Eladó családi ház

Nyírtura

99 M Ft
4 szoba
280 m2
Eladó családi ház
Eladó családi ház

Mikebuda

68.5 M Ft
2 szoba
90 m2
Eladó ikerház
Eladó ikerház

Balatonakali

129 M Ft
4 szoba
145 m2
Eladó családi ház
Eladó családi ház

Nemesszentandrás

75 M Ft
4 szoba
164 m2