Metrodom

Eladó téglalakás
Szombathely, félemelet

+ 10 kép 1/13
35 900 000 Ft35.9 M Ft 854 762 Ft/m2
2 szoba
42 m²
félemelet
építés éve:1962

Részletes adatok

Állapot: Felújított
Fűtés: Gázkonvektor
Emelet: félemelet
Energetikai besorolás: Nem adta meg a hirdető

Az OTP Bank lakáshitel ajánlataFizetett hirdetés

+36 70 575
Berkéné Szűcs Judit
referens

Érdekel az OTP Bank kedvezményes lakáshitel ajánlata? *

* A kérdésre „Igen” válasz bejelölése esetén, az „Üzenet küldése” gombra kattintva kijelentem, hogy az OTP Bank Nyrt. Adatkezelési tájékoztatójának tartalmát megismertem és tudomásul vettem.

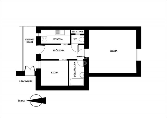
Eladó téglalakás leírása

Szombathelyen a Szent László király utcában 42 m2-es magasföldszinti lakás eladó. Az ingatlant 2016-ban felújították. A külső nyílászárók fokozottan hang-és hőszigeteltek, redőnyökkel felszereltek. A fa kivitelű ablakok és a bejárati ajtó cseresznye színű pácot kapott. A lakás fűtéséről gázkonvektorok gondoskodnak. A melegvizet villanybojler szolgáltatja. A felújítás során a villanyhálózatot 32 A -re bővítették. Fürdőszoba teljes felújításon esett át. Nappalijában jó állapotú eredeti fa parketta található. Az előszoba, hálószoba új laminált padlóval burkolt.
A lakás nyitott gangról közelíthető meg. A társasházi ingatlan közös kertje körbekerített. Az ingatlanhoz saját nagy pincetároló tartozik. Igény szerint teljes bútorzattal kerül az új lakó tulajdonába. Lokáció tekintetében remek választás. A közelben minden megtalálható ami a kényelmes lakhatást szolgálja. Előnye, hogy szinte azonnal költözhető. Befektetésnek is kiváló, két felsőoktatási intézmény található a szomszédságában. Az ELTE Savaria Campus és a Soproni Egyetem Savaria Egyetemi központja . Az intézményeknek köszönhetően folyamatos bérbeadási lehetőséget biztosít. ...TOVÁBBI, TÖBBEZRES INGATLAN KÍNÁLAT: www.gdn-ingatlan.hu - GDN azonosító: 394181

Hirdetés feltöltve: 2026. 04. 01.

2 szobás téglalakások ára Szombathelyen

Ebből az összehasonlításból megtudhatod, hogyan viszonyul a lakás ára a környékbeli téglalakások átlagos árához. Ez nem azt jelenti, hogy ennyivel olcsóbb vagy drágább, mint amennyit a lakás ér, hanem hogy ennyivel tér el a környékbeli átlagtól.

Ennek a m² ára
Szombathely m² ár
855 e Ft
896 e Ft 5%
Ennek az ára
Szombathely átlagár
35.9 M Ft m Ft
43.5 m Ft 17%

Az ingatlan elhelyezkedése

Cím: Szombathely, félemelet

Eladó téglalakások a környékről

Szombathely
Eladó téglalakás

Szombathely

77.9 M Ft
4 + 1 szoba
112 m²
Szombathely
Eladó téglalakás

Szombathely

74.99 M Ft
3 szoba
71 m²
Celldömölk
Eladó téglalakás

Celldömölk

27.99 M Ft
4 szoba
155 m²
Szombathely
Eladó téglalakás

Szombathely

24.99 M Ft
3 szoba
80 m²
Szombathely
Eladó téglalakás

Szombathely

69.9 M Ft
2 + 1 szoba
60 m²
Szombathely, Belváros, Petőfi Sándor utca
Eladó téglalakás

Szombathely

41.9 M Ft
3 szoba
88 m²
Szombathely
Eladó téglalakás

Szombathely

87.75 M Ft
4 szoba
111 m²
Szombathely
Eladó téglalakás

Szombathely

83.847 M Ft
4 szoba
81 m²
Szombathely
Eladó téglalakás

Szombathely

49 M Ft
3 szoba
89 m²
Szombathely
Eladó téglalakás

Szombathely

83.847 M Ft
4 szoba
81 m²
Répcelak, Petőfi Sándor utca
Eladó téglalakás

Répcelak

35.99 M Ft
3 szoba
66 m²
Szombathely
Eladó téglalakás

Szombathely

69 M Ft
4 szoba
136 m²
Szombathely
Eladó téglalakás

Szombathely

72 M Ft
4 szoba
129 m²
Körmend
Eladó téglalakás

Körmend

64.8 M Ft
3 szoba
107 m²
Szombathely
Eladó téglalakás

Szombathely

72 M Ft
4 szoba
129 m²
Szombathely, Belváros, Fő tér
Eladó téglalakás

Szombathely

72 M Ft
4 szoba
129 m²
Kőszeg
Eladó téglalakás

Kőszeg

69.9 M Ft
3 szoba
90 m²
Szombathely
Eladó téglalakás

Szombathely

75.136 M Ft
3 szoba
74 m²
Szombathely
Eladó téglalakás

Szombathely

86.73 M Ft
4 szoba
86 m²
Vasvár, Március 15. tér
Eladó téglalakás

Vasvár

18 M Ft
1 + 1 szoba
56 m²
Szombathely
Eladó téglalakás

Szombathely

72.295 M Ft
3 szoba
69 m²
Szombathely
Eladó téglalakás

Szombathely

49.49 M Ft
3 + 1 szoba
77 m²
Szombathely
Eladó téglalakás

Szombathely

69 M Ft
4 szoba
112 m²
Szombathely
Eladó téglalakás

Szombathely

77.9 M Ft
4 + 1 szoba
112 m²

Falusi CSOK ingatlanok

Cserépfalu
Eladó családi ház

Cserépfalu

58 M Ft
6 szoba
184 m²
Tóalmás
Eladó családi ház

Tóalmás

55 M Ft
8 szoba
360 m²
Pécsvárad, Kossuth Lajos utca
Eladó téglalakás

Pécsvárad

64.99 M Ft
3 szoba
89 m²
Kemecse
Eladó családi ház

Kemecse

71.9 M Ft
4 szoba
144 m²
Bakonyszentkirály
Eladó családi ház

Bakonyszentkirály

99.99 M Ft
5 szoba
126 m²
Kocsér
Eladó családi ház

Kocsér

27.9 M Ft
4 szoba
108 m²
Nyáregyháza
Eladó családi ház

Nyáregyháza

189 M Ft
2 szoba
260 m²
Ádánd
Eladó családi ház

Ádánd

53.5 M Ft
6 szoba
180 m²