Eladó téglalakás
Szigetszentmiklós

+ 7 kép 1/10
52 600 000 Ft52.6 M Ft 1 282 927 Ft/m2
2 szoba
41 m2
építés éve:2006

Részletes adatok

Fűtés: Egyéb
Energetikai besorolás: Nem adta meg a hirdető

Az OTP Bank lakáshitel ajánlataFizetett hirdetés

+36 30 715
Ruzsits Andrea
RSD Ingatlan

Érdekel az OTP Bank kedvezményes lakáshitel ajánlata? *

* A kérdésre „Igen” válasz bejelölése esetén, az „Üzenet küldése” gombra kattintva kijelentem, hogy az OTP Bank Nyrt. Adatkezelési tájékoztatójának tartalmát megismertem és tudomásul vettem.

Eladó téglalakás leírása

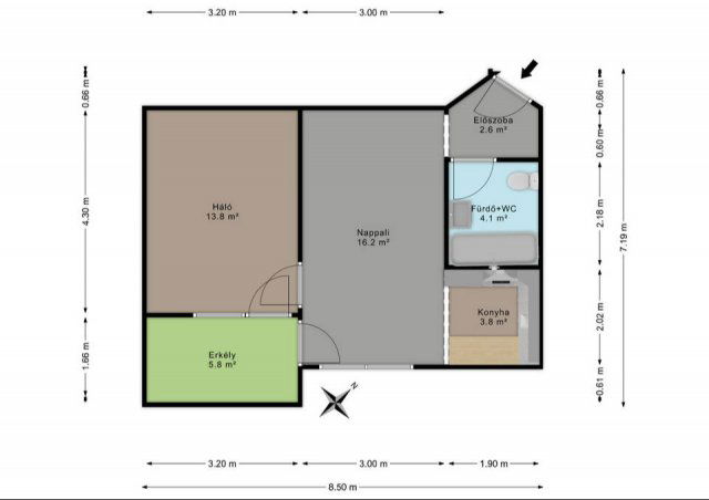
Szigetszentmiklóson a „Dujmó” lakóparkban található három szintes, tégla építésű társasházban, első emeleti, 41nm alapterületű lakás eladó!

Házról:
-2006-os építésű, 30cm téglafal+8cm szigeteléssel;
- 3 szintes társasházban 12 lakás épült;
-a lakóparkban saját gépkocsibeálló;
-a belső udvaron privát játszóteret alakítottak ki.

Lakásról:
- alapterülete: 41nm + 6nm erkély;
- a lakás az első emeleten helyezkedik el.

Helyiségei:
-a lakásba belépve egy 2,6nm alapterületű előszoba;
- egy 3,80nm alapterületű nyitott konyha;
- egy 16,2nm alapterületű nappali, étkező;
-egy 13,8nm alapterületű hálószoba;
- a fürdőszoba és a WC egy helyiségben 4nm alapterületen található;
- erkély 6nm alapterületű, mindkét szobából megközelíthető;
- fűtés gázcirkó;
-hűtésről klíma gondoskodik.

Felszereltség:
- a szobák laminált padlóval burkoltak;
- a többi helyiségben járólap található;
- a nyílászárók műanyag keretesek, hőszigetelt üvegezéssel, valamint redőnnyel és szúnyoghálóval felszereltek.

A környékről:
- Szigetszentmiklóson Ragád városrészben található;
- autóval és közösségi közlekedéssel is könnyen megközelíthető.

Fiataloknak első lakásnak vagy egyedülállóknak ajánlom ezt a lakást.
Befektetők részére is ajánlom az ingatlant, könnyen bérbeadható.

Megtekintés rugalmasan, előre egyeztetett időpontban lehetséges!

Hirdetés feltöltve: 2025. 10. 15.

2 szobás téglalakások ára Szigetszentmiklóson

Ebből az összehasonlításból megtudhatod, hogyan viszonyul a lakás ára a környékbeli téglalakások átlagos árához. Ez nem azt jelenti, hogy ennyivel olcsóbb vagy drágább, mint amennyit a lakás ér, hanem hogy ennyivel tér el a környékbeli átlagtól.

Ennek a m² ára
Szigetszentmiklós m² ár
1283 e Ft
1036 e Ft -24%
Ennek az ára
Szigetszentmiklós átlagár
52.6 M Ft m Ft
52.7 m Ft 0%

Az ingatlan elhelyezkedése

Cím: Szigetszentmiklós

Eladó téglalakások a környékről

Eladó téglalakás
Eladó téglalakás

Szigetszentmiklós

76.4 M Ft
3 szoba
67 m2
Eladó téglalakás
Eladó téglalakás

Szigetszentmiklós

49.9 M Ft
2 szoba
49 m2
Eladó téglalakás
Eladó téglalakás

Göd

28.9 M Ft
2 szoba
44 m2
Eladó téglalakás
Eladó téglalakás

Göd

44.9 M Ft
3 szoba
58 m2
Eladó téglalakás
Eladó téglalakás

Szigetszentmiklós

26 M Ft
1 szoba
36 m2
Eladó téglalakás
Eladó téglalakás

Göd

28.9 M Ft
2 szoba
46 m2
Eladó téglalakás
Eladó téglalakás

Szigetszentmiklós

75.68 M Ft
3 szoba
63 m2
Eladó téglalakás
Eladó téglalakás

Szigetszentmiklós, Városközpont, Bajcsy-Zsilinszky utca

79.9 M Ft
3 szoba
84 m2
Eladó téglalakás
Eladó téglalakás

Szigetszentmiklós

63.9 M Ft
2 szoba
55 m2
Eladó téglalakás
Eladó téglalakás

Szigetszentmiklós

147 M Ft
4 szoba
160 m2
Eladó téglalakás
Eladó téglalakás

Göd

27.9 M Ft
2 szoba
43 m2
Eladó téglalakás
Eladó téglalakás

Szigetszentmiklós

69.9 M Ft
1 + 2 szoba
80 m2
Eladó téglalakás
Eladó téglalakás

Göd

28.9 M Ft
2 szoba
46 m2
Eladó téglalakás
Eladó téglalakás

Göd

29.5 M Ft
2 szoba
44 m2
Eladó téglalakás
Eladó téglalakás

Göd

90 M Ft
2 szoba
44 m2
Eladó téglalakás
Eladó téglalakás

Szigetszentmiklós

76.4 M Ft
3 szoba
66 m2
Eladó téglalakás
Eladó téglalakás

Göd

44.5 M Ft
3 szoba
69 m2
Eladó téglalakás
Eladó téglalakás

Szigetszentmiklós

51.5 M Ft
4 + 2 szoba
127 m2
Eladó téglalakás
Eladó téglalakás

Szigetszentmiklós

75.68 M Ft
3 szoba
68 m2
Eladó téglalakás
Eladó téglalakás

Göd

42.5 M Ft
3 szoba
65 m2
Eladó téglalakás
Eladó téglalakás

Szigetszentmiklós, Városkörnyék, Központ közeli

49.9 M Ft
2 szoba
49 m2
Eladó téglalakás
Eladó téglalakás

Szigetszentmiklós

72.9 M Ft
3 szoba
98 m2
Eladó téglalakás
Eladó téglalakás

Göd

27.9 M Ft
2 szoba
43 m2
Eladó téglalakás
Eladó téglalakás

Szigetszentmiklós

79.9 M Ft
3 szoba
57 m2

Falusi CSOK ingatlanok

Eladó családi ház
Eladó családi ház

Madaras

16 M Ft
3 szoba
105 m2
Eladó családi ház
Eladó családi ház

Katymár

34 M Ft
5 szoba
200 m2
Eladó családi ház
Eladó családi ház

Tápióság

29.9 M Ft
2 szoba
65 m2
Eladó családi ház
Eladó családi ház

Nagyhegyes

47.9 M Ft
2 szoba
72 m2
Eladó családi ház
Eladó családi ház

Sajószöged, Bartók Béla

47.9 M Ft
4 + 1 szoba
145 m2
Eladó családi ház
Eladó családi ház

Balatonkeresztúr

117 M Ft
3 + 2 szoba
154 m2
Eladó családi ház
Eladó családi ház

Elek

35.49 M Ft
2 szoba
75 m2
Eladó családi ház
Eladó családi ház

Tés

34.9 M Ft
2 szoba
60 m2