Astora Olive Club House

Eladó téglalakás
Szigethalom, 1. emelet

+ 13 kép 1/16
76 200 000 Ft76.2 M Ft 732 692 Ft/m2
4 szoba
104 m2
1. emelet
építés éve:2025

Részletes adatok

Fűtés: Egyéb
Parkolás: Kocsibeálló
Energetikai besorolás: Nem adta meg a hirdető

Az OTP Bank lakáshitel ajánlataFizetett hirdetés

+36 30 641
Csík Zsolt
referens

Érdekel az OTP Bank kedvezményes lakáshitel ajánlata? *

* A kérdésre „Igen” válasz bejelölése esetén, az „Üzenet küldése” gombra kattintva kijelentem, hogy az OTP Bank Nyrt. Adatkezelési tájékoztatójának tartalmát megismertem és tudomásul vettem.

Eladó téglalakás leírása

Szigethalom központi részén négy egységből álló "ikerház jellegű" " D" jelű emeleti hőszivattyús lakás eladó!

KIVÁLÓ KIVITELEZŐ, VERSENYKÉPES ÁRON, KIVÁLÓ IRODÁT REMEK HELYEN AJÁNL ÖNNEK! H-TARIFA, HŐSZIVATTYÚ!

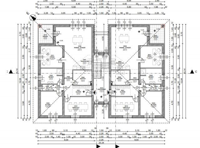
A lakás helyiségei: előtér 2,27 m2, előtér 1,40 m2, közlekedő 5,59 m2, irattár 7,07 m2, mosdó 8,75 m2, wc 1,93 m2, teakonyha 4,95 m2, pihenő/étkező 29,61 m2, öltöző 13,65 m2 tárgyaló 13,20 m2, iroda 12,25 m2, terasz 7,19 m2.

A lakást zárt lépcsőházból érjük el, a földszinten két lakás, az emeleten két iroda kerül kialakításra.

Az épület beton alapra, 30-as síkra csiszolt tégla falazattal, monolit beton födémmel, beton cserép fedéssel épül meg.
Az épület külső nyílászárói (ablakok) műanyag szerkezetűek 6 légkamrás 3 rétegű hőszigetelt üvegezéssel, elektromos redőnnyel, szerelve. A bejárati biztonsági ajtó több ponton záródó.
A homlokzaton 12 cm GRAFITOS Dryvit rendszerű, a zárószinten födémben 20 cm kőzetgyapot, míg a padlóban 12 cm lépésálló nikecell szigetelés kerül beépítésre.
Fűtése/ hűtése, meleg vízellátása hőszivattyúval (levegő) történik padlófűtéssel. A H tarifa kedvező üzemeltetési költséget biztosít.
Burkolatok választhatóak 10,000 ft/nm felette a vevő kompenzál. Szaniterek keretösszegig választhatók.
A kert alap kertrendezéssel kerül átadásra, viacolorozott autóbeállóval és személybejáróval.

Műszaki tartalom ízelítő:
-vasalt beton sávalap,
-30 nf síkra csiszolt tégla falazat
-tégla válaszfalak
-monolit beton födém
-nyílászárók 6 légkamrásak elektromos redőnnyel szereltek, szúnyoghálóval ellátottak,
-tető beton cseréppel fedett
-fűtés hőszivattyúval, padlófűtéses hőleadással
-burkolatok 10.000ft/nm választhatóak
-4 klíma lakásonként
-H tarifa
-lakásokhoz saját kert tartozik
-minden közmű benn kivétel gáz,
-homlokzaton 12 cm dryvit rendszerű szigetelés
-padlón 12 cm lépésálló szigetelés

A burkolatok, szaniterek választhatóak, a kivitelező igyekszik minden vásárlói igényt kielégíteni.

A jelű földszinti lakás 300 m2 kert,109,97 m2 lakótér ára: 81.990.000 ft
B jelű földszinti lakás 300 m2 kert,109,97 m2 lakótér ára: 81.990.000 ft
C jelű emeleti iroda 7,12 m2 terasszal 103,67 m2 hasznos térrel: 76.200.000 ft
D jelű emeleti iroda 7,12 m2 terasszal 103,67 m2 hasznos térrel: 76.200.000 ft

Az emeleten két iroda van, akár lakásnak is lehet használni. Tulajdoni lap szerint iroda besorolású.

Várható átadás 2026. május.

Várom megtisztelő hívását a hét bármelyik napján!

FINANSZÍROZÁS:
Nálunk mindent egy helyen intézhet:
- hivatalos ingatlanközvetítés;
- szakszerű jogi képviselet;
- profi CSOK-PLUSZ, és hitelügyintézés: 16 Bank, több mint 100 konstrukció;

A részletes adatvédelmi tájékoztató folyamatosan elérhető a gdn ingatlan adatvédelmi oldalon. ...TOVÁBBI, TÖBBEZRES INGATLAN KÍNÁLAT: www.gdn-ingatlan.hu - GDN azonosító: 389256

Hirdetés feltöltve: 2025. 11. 05. Utoljára módosítva: 2025. 11. 05.

Az ingatlan elhelyezkedése

Cím: Szigethalom, 1. emelet

Eladó ingatlanok a környékről

Eladó téglalakás
Eladó téglalakás

Szigethalom

81.99 M Ft
4 szoba
109 m2
Eladó családi ház
Eladó családi ház

Üllő

299 M Ft
6 szoba
217 m2
Eladó családi ház
Eladó családi ház

Dunavarsány

147.9 M Ft
4 szoba
144 m2
Eladó téglalakás
Eladó téglalakás

Göd

32.5 M Ft
2 szoba
44 m2
Eladó családi ház
Eladó családi ház

Gyál

147 M Ft
9 + 1 szoba
217 m2
Eladó telek
Eladó telek

Szigetszentmiklós

2 M Ft
205 m²
Eladó téglalakás
Eladó téglalakás

Göd

46.5 M Ft
4 szoba
72 m2
Eladó téglalakás
Eladó téglalakás

Szigethalom

60 M Ft
5 + 1 szoba
120 m2
Eladó családi ház
Eladó családi ház

Veresegyház

136 M Ft
3 + 1 szoba
115 m2
Eladó családi ház
Eladó családi ház

Gödöllő

169 M Ft
7 szoba
262 m2
Eladó téglalakás
Eladó téglalakás

Göd

27.9 M Ft
2 szoba
43 m2
Eladó téglalakás
Eladó téglalakás

Göd

28.9 M Ft
2 szoba
46 m2
Eladó családi ház
Eladó családi ház

Veresegyház

139 M Ft
5 szoba
170 m2
Eladó téglalakás
Eladó téglalakás

Gödöllő

127.5 M Ft
3 szoba
74 m2
Eladó téglalakás
Eladó téglalakás

Szigethalom

60 M Ft
5 + 1 szoba
120 m2
Eladó családi ház
Eladó családi ház

Érd

154.225 M Ft
4 szoba
155 m2
Eladó családi ház
Eladó családi ház

Szigetszentmiklós

145 M Ft
5 szoba
136 m2
Eladó téglalakás
Eladó téglalakás

Göd

46.5 M Ft
3 szoba
69 m2
Eladó családi ház
Eladó családi ház

Veresegyház

150 M Ft
5 szoba
164 m2
Eladó ipari ingatlan
Eladó ipari ingatlan

Nagykáta

99.9 M Ft
1000 m2
Eladó ikerház
Eladó ikerház

Maglód

59 M Ft
4 szoba
123 m2
Eladó ikerház
Eladó ikerház

Veresegyház

145.8 M Ft
1 + 4 szoba
154 m2
Eladó téglalakás
Eladó téglalakás

Szigethalom

81.99 M Ft
4 szoba
110 m2
Eladó téglalakás
Eladó téglalakás

Göd

28.9 M Ft
2 szoba
44 m2

Falusi CSOK ingatlanok

Eladó családi ház
Eladó családi ház

Dág, Petőfi Sándor utca

36.9 M Ft
4 szoba
105 m2
Eladó családi ház
Eladó családi ház

Hernádnémeti

18.9 M Ft
2 szoba
62 m2
Eladó családi ház
Eladó családi ház

Sződ, Mártírok útja

73.4 M Ft
6 szoba
120 m2
Eladó családi ház
Eladó családi ház

Nagybörzsöny

79.9 M Ft
4 szoba
149 m2
Eladó családi ház
Eladó családi ház

Boda, Rákóczi u. 44

45.5 M Ft
2 szoba
98 m2
Eladó családi ház
Eladó családi ház

Újszilvás

23 M Ft
3 + 1 szoba
100 m2
Eladó családi ház
Eladó családi ház

Iharos

8 M Ft
2 szoba
45 m2
Eladó családi ház
Eladó családi ház

Somodor

8.9 M Ft
2 szoba
64 m2