Pesti Házak

Eladó téglalakás
Szentgotthárd, 4. emelet

+ 5 kép 1/8
34 900 000 Ft34.9 M Ft 684 314 Ft/m2
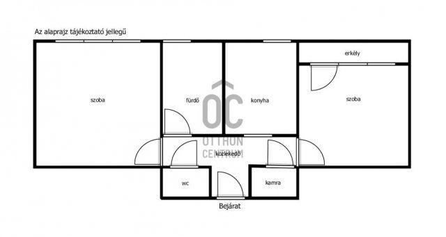
2 szoba
51 m2
4. emelet
építés éve:1975

Részletes adatok

Fűtés: Távfűtés
Közmű: Gáz, Villany, Csatorna
Energetikai besorolás: Nem adta meg a hirdető
Zenga Premier

Friss hirdetések, amiket nem találsz meg más ingatlankereső portálon.

Fedezd fel elsőként a Zenga Premier címkés eladó ingatlanokat!

További részletek a zenga.hu-n

Az OTP Bank lakáshitel ajánlataFizetett hirdetés

+36 70 465
Szolnoki Nóra
referens

Érdekel az OTP Bank kedvezményes lakáshitel ajánlata? *

* A kérdésre „Igen” válasz bejelölése esetén, az „Üzenet küldése” gombra kattintva kijelentem, hogy az OTP Bank Nyrt. Adatkezelési tájékoztatójának tartalmát megismertem és tudomásul vettem.

Eladó téglalakás leírása

Szentgotthárd, Magyarország legnyugatibb városa, a Dunántúl egyik ékszerdoboza, közvetlenül az osztrák határ mentén, a szlovén határ közelében a vármegye délnyugati csücskében.
Ez a 51 nm-es, 2 szobás lakás ideális választás lehet mindazok számára, akik egy könnyen fenntartható ingatlant szeretnének, vagy befektetési céllal keresnek, esetleg külföldi munkájuk miatt határmenti ingatlant szeretnének vásárolni.
A lakás két tágas szobával rendelkezik, melyek a D-i tájolásnak köszönhetően világosak. Az erkély csodás panorámát kínál a környékre, ahol a reggeli kávéja mellett élvezheti a friss levegőt és a kilátást.
Az ingatlan átlagos/jó állapotban van, így a leendő tulajdonos saját ízlése szerint alakíthatja, a villamoshálózatot cserélték, az ablakok fából készültek, az épület szigetelt. A fűtés távfűtéses, egyedi mérés lehetőségével, amely gazdaságos megoldást kínál a téli hónapokban.
A lakás elhelyezkedése kiváló, hiszen Szentgotthárd központja közelében található, ahol minden fontos szolgáltatás, bolt és intézmény könnyen elérhető. Parkolás közvetlenül a társasház közelében, ingyenesen megoldható.

További információért, megtekintési időpontért hívjonbizalommal!

Hitelre van szüksége? Az Otthon Centrum az ország egyik legnagyobb és legmegbízhatóbb hitelközvetítőjeként, teljes körű és díjmentes hitelügyintézéssel, biztosításkötéssel áll rendelkezésére!
Kérje személyre szabott ajánlatunkat kollégáinktól!

Hirdetés feltöltve: 2025. 11. 28. Utoljára módosítva: 2025. 11. 29.

Az ingatlan elhelyezkedése

Cím: Szentgotthárd, 4. emelet

Eladó ingatlanok a környékről

Eladó téglalakás
Eladó téglalakás

Sárvár

25.99 M Ft
2 szoba
110 m2
Eladó családi ház
Eladó családi ház

Körmend

23.9 M Ft
2 szoba
80 m2
Eladó téglalakás
Eladó téglalakás

Celldömölk

39.5 M Ft
3 szoba
65 m2
Eladó hotel
Eladó hotel

Alsóújlak

164.9 M Ft
10870 m²
800 m2
Eladó téglalakás
Eladó téglalakás

Szombathely

28 M Ft
2 szoba
72 m2
Eladó téglalakás
Eladó téglalakás

Szombathely

71.99 M Ft
120 m2
Eladó téglalakás
Eladó téglalakás

Kőszeg

64.9 M Ft
5 szoba
151 m2
Eladó téglalakás
Eladó téglalakás

Szombathely

69 M Ft
4 szoba
136 m2
Eladó téglalakás
Eladó téglalakás

Sitke

13 M Ft
1 szoba
32 m2
Eladó téglalakás
Eladó téglalakás

Répcelak, Petőfi Sándor utca

47.6 M Ft
4 szoba
68 m2
Eladó családi ház
Eladó családi ház

Balogunyom

58 M Ft
5 szoba
133 m2
Eladó téglalakás
Eladó téglalakás

Sárvár

38 M Ft
5 szoba
116 m2
Eladó téglalakás
Eladó téglalakás

Répcelak, Petőfi Sándor utca

35.7 M Ft
2 szoba
54 m2
Eladó téglalakás
Eladó téglalakás

Szentgotthárd

41.6 M Ft
2 szoba
69 m2
Eladó telek
Eladó telek

Szombathely

35 M Ft
1795 m²
1795 m2
Eladó téglalakás
Eladó téglalakás

Szombathely

86.73 M Ft
4 szoba
96 m2
Eladó családi ház
Eladó családi ház

Szombathely

99 M Ft
3 szoba
99 m2
Eladó téglalakás
Eladó téglalakás

Szentgotthárd

36.5 M Ft
2 szoba
Eladó téglalakás
Eladó téglalakás

Szombathely

26.9 M Ft
2 szoba
29 m2
Eladó téglalakás
Eladó téglalakás

Körmend, Bástya utca

12 M Ft
2 szoba
70 m2
Eladó téglalakás
Eladó téglalakás

Vasvár

19 M Ft
1 + 1 szoba
56 m2
Eladó téglalakás
Eladó téglalakás

Kőszeg

59.9 M Ft
3 szoba
90 m2
Eladó családi ház
Eladó családi ház

Csepreg

70 M Ft
4 szoba
86 m2
Eladó téglalakás
Eladó téglalakás

Szentgotthárd, Hunyadi utca

39.9 M Ft
2 szoba
68 m2

Falusi CSOK ingatlanok

Eladó családi ház
Eladó családi ház

Törtel

10 M Ft
2 szoba
32 m2
Eladó családi ház
Eladó családi ház

Balatonkeresztúr

41.9 M Ft
2 szoba
57 m2
Eladó családi ház
Eladó családi ház

Hegyfalu

14.9 M Ft
2 szoba
70 m2
Eladó családi ház
Eladó családi ház

Cece

23.5 M Ft
3 szoba
66 m2
Eladó családi ház
Eladó családi ház

Balatonfenyves

119 M Ft
5 szoba
142 m2
Eladó családi ház
Eladó családi ház

Tápióság

125 M Ft
4 szoba
130 m2
Eladó családi ház
Eladó családi ház

Nyékládháza

75 M Ft
4 szoba
140 m2
Eladó családi ház
Eladó családi ház

Iváncsa

73.9 M Ft
1 + 3 szoba
97 m2