Astora Márvány8

Eladó téglalakás
Szeged, 3. emelet

+ 8 kép 1/11
79 800 000 Ft79.8 M Ft 1 400 000 Ft/m2
3 szoba
57 m²
3. emelet
építés éve:2025

Részletes adatok

Telekméret: 2827 m2
Fűtés: Egyéb
Emelet: 3. emelet
Energetikai besorolás: Nem adta meg a hirdető

Az OTP Bank lakáshitel ajánlataFizetett hirdetés

+36 30 821
Dajka Szilvia
Homing Szeged Ingatlaniroda

Érdekel az OTP Bank kedvezményes lakáshitel ajánlata? *

* A kérdésre „Igen” válasz bejelölése esetén, az „Üzenet küldése” gombra kattintva kijelentem, hogy az OTP Bank Nyrt. Adatkezelési tájékoztatójának tartalmát megismertem és tudomásul vettem.

Eladó téglalakás leírása

Örökzöld Lakópark – a II. ütem lakásai már megvásárolhatóak! Az építkezés megfelelő ütemben halad, elkészült a tetőszerkezet.

A II. ütem lakásait kínáljuk eladásra , ahol 36-61 m² közötti alapterületű, erkélyes otthonok közül választhat. A kisebb lakások különösen népszerűek a befektetők körében, hiszen gyorsan és könnyen kiadhatók, de tökéletesek fiatal pároknak első otthonként vagy idősebbeknek is, mivel az épület teljesen akadálymentesített és liftes.

Az ingatlanok igény esetén szerkezetkész állapotban is megvásárolhatóak, egyedi megállapodás alapján.

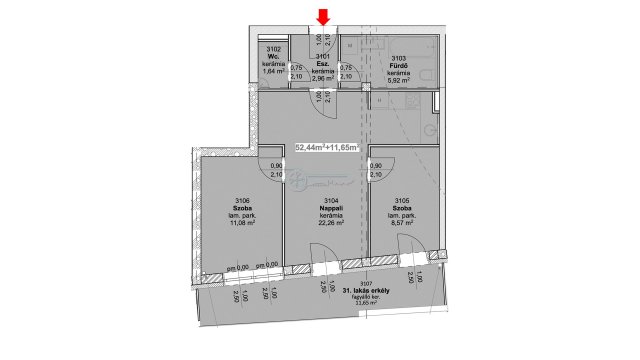
Ez a 31.jelű lakás a 3. emeleten helyezkedik el és 52,44 nm alapterülettel + 11,65 nm erkéllyel rendelkezik.

Főbb jellemzők:

-modern, energiatakarékos műszaki tartalom
-hőszivattyús rendszer + kondenzációs kazán az optimális energia felhasználás miatt
-lakásokon belül padlófűtés + klíma biztosítja a kellemes komfortot
-15 cm homlokzati hőszigetelés
-3 rétegű, 6 légkamrás nyílászárók
-minden lakás saját helyrajzi számmal rendelkezik
-teremgarázs (akár elektromos autó töltési lehetőséggel is) és autóbeálló vásárolható (beálló: 5 M Ft, teremgarázs: 10-13 M Ft)
-most még egyedi igényeket is figyelembe tudnak venni, pl. a fürdőszobában kád vagy tusoló is kérhető

Lokáció előnyei:

A lakópark csendes, zöldövezeti részen épül, mégis közel a belvároshoz.

-pár perc sétára a Liget és a belváros
-közelben uszoda, gyógyszertár, kisebb boltok
-könnyen elérhető tömegközlekedéssel

Ideális választás:

-Befektetőknek: a kisebb alapterületű lakások gyorsan kiadhatók, magas kereslet van rájuk
-Fiatal pároknak, első lakásnak: elérhető ár-érték arány, modern otthon, jó közlekedés
-Idősebbeknek: akadálymentesített épület, lift, biztonságos környezet, közel minden fontos szolgáltatás
-Családoknak: tágasabb lakások nagy erkélyekkel, kényelmes élettér biztonságos közegben
-A projektről videó is megtekinthető:

A projekt kulcsrakész átadása várhatóan 2026 nyarán történik.

Az I. ütem lakásai már kulcsrakész állapotban elkészültek, - a használatbavételi engedélyüket már megkapták-, ezek referenciaként megtekinthetőek, így biztos lehet abban, hogy amit választ, az minőségi kivitelezés lesz.

A képek egy része a már épülő társasházról készültek, míg a másik része a nemrég átadott I. ütem lakásairól referencia fotók. A látványképek virtuálisan berendezett fotók, a bútorok és a dekoráció illusztráció.

Bővebb információért és megtekintésért keressen bizalommal!

Hirdetés feltöltve: 2026. 04. 21. Utoljára módosítva: 2026. 04. 21.

3 szobás téglalakások ára Szegeden

Ebből az összehasonlításból megtudhatod, hogyan viszonyul a lakás ára a környékbeli téglalakások átlagos árához. Ez nem azt jelenti, hogy ennyivel olcsóbb vagy drágább, mint amennyit a lakás ér, hanem hogy ennyivel tér el a környékbeli átlagtól.

Ennek a m² ára
Szeged m² ár
1400 e Ft
1133 e Ft -24%
Ennek az ára
Szeged átlagár
79.8 M Ft m Ft
86.7 m Ft 8%

Az ingatlan elhelyezkedése

Cím: Szeged, 3. emelet

Eladó téglalakások a környékről

Szeged
Eladó téglalakás

Szeged

99.99 M Ft
4 szoba
104 m²
Szeged
Eladó téglalakás

Szeged

135 M Ft
4 szoba
116 m²
Szeged
Eladó téglalakás

Szeged

79.9 M Ft
2 szoba
63 m²
Szeged
Eladó téglalakás

Szeged

599.999 M Ft
4 szoba
302 m²
Szeged
Eladó téglalakás

Szeged

39.9 M Ft
2 szoba
32 m²
Szeged
Eladó téglalakás

Szeged

599.999 M Ft
4 szoba
302 m²
Szeged
Eladó téglalakás

Szeged

149 M Ft
4 + 1 szoba
132 m²
Szeged
Eladó téglalakás

Szeged

114.9 M Ft
4 + 1 szoba
123 m²
Szeged, Belváros, Bakay Nándor utca
Eladó téglalakás

Szeged

199.9 M Ft
2 + 2 szoba
196 m²
Szeged
Eladó téglalakás

Szeged

39.9 M Ft
2 szoba
32 m²
Szeged
Eladó téglalakás

Szeged

74.9 M Ft
3 szoba
57 m²
Szeged
Eladó téglalakás

Szeged

179 M Ft
4 szoba
176 m²
Szeged
Eladó téglalakás

Szeged

99.99 M Ft
4 szoba
104 m²
Szeged
Eladó téglalakás

Szeged

39.9 M Ft
2 szoba
32 m²
Szeged
Eladó téglalakás

Szeged

114.9 M Ft
4 + 1 szoba
123 m²
Szeged
Eladó téglalakás

Szeged

119.9 M Ft
5 szoba
118 m²
Szeged
Eladó téglalakás

Szeged

58.7 M Ft
2 szoba
49 m²
Deszk
Eladó téglalakás

Deszk

44.9 M Ft
2 szoba
66 m²
Szeged
Eladó téglalakás

Szeged

73.9 M Ft
3 szoba
66 m²
Szeged
Eladó téglalakás

Szeged

97.99 M Ft
3 szoba
76 m²
Szeged
Eladó téglalakás

Szeged

114.9 M Ft
4 + 1 szoba
261 m²
Szeged, Londoni körút
Eladó téglalakás

Szeged

59.9 M Ft
2 szoba
55 m²
Szeged
Eladó téglalakás

Szeged

74.9 M Ft
3 szoba
57 m²
Szeged
Eladó téglalakás

Szeged

84.9 M Ft
3 szoba
82 m²

Falusi CSOK ingatlanok

Vokány
Eladó családi ház

Vokány

30 M Ft
4 szoba
100 m²
Hosszúhetény, Petőfi Sándor utca 10
Eladó családi ház

Hosszúhetény

20.65 M Ft
4 + 2 szoba
133 m²
Cece
Eladó családi ház

Cece

69.8 M Ft
4 szoba
215 m²
Kilimán
Eladó családi ház

Kilimán

69.9 M Ft
3 szoba
130 m²
Balatonakali
Eladó ikerház

Balatonakali

560 M Ft
4 szoba
140 m²
Sumony
Eladó családi ház

Sumony

19 M Ft
4 szoba
120 m²
Marcalgergelyi
Eladó családi ház

Marcalgergelyi

31 M Ft
2 + 1 szoba
120 m²
Balatonudvari
Eladó családi ház

Balatonudvari

240 M Ft
9 szoba
260 m²