River Life

Eladó téglalakás
Szeged, 3. emelet

+ 1 kép 1/4
125 000 000 Ft125 M Ft 1 201 923 Ft/m2
4 szoba
104 m²
3. emelet
építés éve:2026

Részletes adatok

Fűtés: Geotermikus
Emelet: 3. emelet
Parkolás: Garázs, Kocsibeálló
Közmű: Víz, Villany, Csatorna, Szélessáv, KábelTV
Energetikai besorolás: A+

Az OTP Bank lakáshitel ajánlataFizetett hirdetés

+36 30 333
Marton Ingatlan
referens

Érdekel az OTP Bank kedvezményes lakáshitel ajánlata? *

* A kérdésre „Igen” válasz bejelölése esetén, az „Üzenet küldése” gombra kattintva kijelentem, hogy az OTP Bank Nyrt. Adatkezelési tájékoztatójának tartalmát megismertem és tudomásul vettem.

Eladó téglalakás leírása

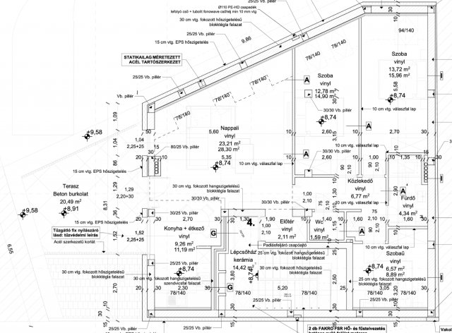
Eladásra kínálom Szegeden az alábbi paraméterekkel rendelkező új építésű társasházi lakást:

Lokáció: Alsóváros
Lakás bruttó 94,06 m2 + netto 20,49 m2 tetőterasz
Elosztása: előtér, amerikai konyhás nappali ( 39,49 m2), 3 db hálószoba, fürdőszoba, wc, közlekedő, tetőterasz
Extra: 3m fölötti belmagasság az amerikai konyhás nappaliban a különleges térérzet kialakításáért!
Kulcsrakész átadás: 2026 december
Beálló, garázs vásárolható a lakáshoz
Fűtés: padlófűtés hőszivattyú
Hűtés: mennyezethűtés

Finanszírozás:
Az ingatlan saját helyrajzi számon szerepel és lakásként van bejegyezve, így minden jelenleg elérhető támogatásra és hitelre alkalmas!
Tőkeerős, leinformálható cég az építtető, így a szakaszos finanszírozás nem akadály

Hirdetés feltöltve: 2026. 04. 20.

4 szobás téglalakások ára Szegeden

Ebből az összehasonlításból megtudhatod, hogyan viszonyul a lakás ára a környékbeli téglalakások átlagos árához. Ez nem azt jelenti, hogy ennyivel olcsóbb vagy drágább, mint amennyit a lakás ér, hanem hogy ennyivel tér el a környékbeli átlagtól.

Ennek a m² ára
Szeged m² ár
1202 e Ft
1130 e Ft -6%
Ennek az ára
Szeged átlagár
125 M Ft m Ft
111.6 m Ft -12%

Az ingatlan elhelyezkedése

Cím: Szeged, 3. emelet

Eladó téglalakások a környékről

Szeged
Eladó téglalakás

Szeged

114.9 M Ft
4 + 1 szoba
123 m²
Szeged
Eladó téglalakás

Szeged

70.9 M Ft
3 szoba
70 m²
Szeged
Eladó téglalakás

Szeged

149 M Ft
4 + 1 szoba
132 m²
Szeged
Eladó téglalakás

Szeged

109.9 M Ft
3 szoba
91 m²
Szeged
Eladó téglalakás

Szeged

149 M Ft
4 + 1 szoba
132 m²
Szeged
Eladó téglalakás

Szeged

52.9 M Ft
3 szoba
48 m²
Szeged
Eladó téglalakás

Szeged

135 M Ft
4 szoba
116 m²
Szeged
Eladó téglalakás

Szeged

114.9 M Ft
4 + 1 szoba
261 m²
Szeged
Eladó téglalakás

Szeged

99.9 M Ft
2 szoba
80 m²
Szeged
Eladó téglalakás

Szeged

39.9 M Ft
2 szoba
32 m²
Szeged
Eladó téglalakás

Szeged

74.9 M Ft
3 szoba
57 m²
Szeged
Eladó téglalakás

Szeged

599.999 M Ft
4 szoba
302 m²
Szeged, Belváros, Bakay Nándor utca
Eladó téglalakás

Szeged

199.9 M Ft
2 + 2 szoba
196 m²
Szeged
Eladó téglalakás

Szeged

73.9 M Ft
3 szoba
66 m²
Szeged
Eladó téglalakás

Szeged

84.9 M Ft
3 szoba
82 m²
Szeged
Eladó téglalakás

Szeged

39.9 M Ft
2 szoba
32 m²
Szeged
Eladó téglalakás

Szeged

58.7 M Ft
2 szoba
49 m²
Szeged
Eladó téglalakás

Szeged

73.9 M Ft
3 szoba
66 m²
Szeged
Eladó téglalakás

Szeged

74.9 M Ft
3 szoba
82 m²
Szeged
Eladó téglalakás

Szeged

99.99 M Ft
4 szoba
104 m²
Szeged
Eladó téglalakás

Szeged

179 M Ft
4 szoba
176 m²
Szeged
Eladó téglalakás

Szeged

119.9 M Ft
5 szoba
118 m²
Szeged
Eladó téglalakás

Szeged

179 M Ft
4 szoba
176 m²
Szeged
Eladó téglalakás

Szeged

58.7 M Ft
2 szoba
49 m²

Falusi CSOK ingatlanok

Vilmány
Eladó családi ház

Vilmány

20 M Ft
3 szoba
120 m²
Gelse
Eladó családi ház

Gelse

49.9 M Ft
3 szoba
97 m²
Balatonfenyves
Eladó családi ház

Balatonfenyves

179.9 M Ft
5 szoba
210 m²
Sárosd
Eladó családi ház

Sárosd

21.9 M Ft
3 szoba
86 m²
Máriakéménd
Eladó családi ház

Máriakéménd

83.9 M Ft
4 szoba
118 m²
Gönc
Eladó családi ház

Gönc

24 M Ft
2 szoba
105 m²
Fülöpszállás
Eladó családi ház

Fülöpszállás

69.9 M Ft
4 szoba
190 m²
Aba
Eladó családi ház

Aba

74.9 M Ft
5 szoba
225 m²