Astora Art House

Eladó téglalakás
Szeged, 1. emelet

+ 1 kép 1/4
77 637 500 Ft77.638 M Ft 1 125 181 Ft/m2
2 szoba
69 m²
1. emelet
építés éve:2027

Részletes adatok

Fűtés: Geotermikus
Emelet: 1. emelet
Parkolás: Garázs
Közmű: Víz, Villany, Csatorna, Szélessáv, KábelTV
Extrák: Lift
Energetikai besorolás: A+

Az OTP Bank lakáshitel ajánlataFizetett hirdetés

+36 30 333
Marton Ingatlan
referens

Érdekel az OTP Bank kedvezményes lakáshitel ajánlata? *

* A kérdésre „Igen” válasz bejelölése esetén, az „Üzenet küldése” gombra kattintva kijelentem, hogy az OTP Bank Nyrt. Adatkezelési tájékoztatójának tartalmát megismertem és tudomásul vettem.

Eladó téglalakás leírása

Eladásra kínálom Szegeden az alábbi paraméterekkel rendelkező új építésű társasházban levő ingatlant:

Lokáció: Belváros közeli lokáció
Kulcsrakész átadás: 2027. IV. Negyedév
Beálló, garázs vásárolható
Fűtés: padlófűtés hőszivattyú
Hűtés: mennyezethűtés
Liftes társasház

Finanszírozás:
A lakások minden jelenleg elérhető támogatásra illetve hitelre alkalmasak!
Tőkeerős, leinformálható cég az építtető, így a szakaszos finanszírozás nem akadály

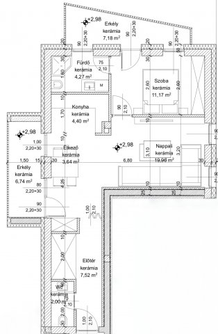
Ingatlan paraméterei:
55,15m2 lakás+6,74 m2 erkély+7,18 m2 erkély
Elosztása: előszoba, amerikai konyhás nappali, hálószoba, fürdőszoba, wc, 2 db erkély
1. emelet

Hirdetés feltöltve: 2026. 04. 20. Utoljára módosítva: 2026. 05. 10.

2 szobás téglalakások ára Szegeden

Ebből az összehasonlításból megtudhatod, hogyan viszonyul a lakás ára a környékbeli téglalakások átlagos árához. Ez nem azt jelenti, hogy ennyivel olcsóbb vagy drágább, mint amennyit a lakás ér, hanem hogy ennyivel tér el a környékbeli átlagtól.

Ennek a m² ára
Szeged m² ár
1125 e Ft
1130 e Ft 0%
Ennek az ára
Szeged átlagár
77.638 M Ft m Ft
80.5 m Ft 4%

Az ingatlan elhelyezkedése

Cím: Szeged, 1. emelet

Eladó téglalakások a környékről

Szeged
Eladó téglalakás

Szeged

149 M Ft
4 + 1 szoba
132 m²
Kistelek, Kossuth utca
Eladó téglalakás

Kistelek

54.9 M Ft
3 szoba
115 m²
Szeged
Eladó téglalakás

Szeged

109.9 M Ft
3 szoba
91 m²
Szeged
Eladó téglalakás

Szeged

99.9 M Ft
2 szoba
80 m²
Szeged
Eladó téglalakás

Szeged

74.9 M Ft
3 szoba
82 m²
Szeged
Eladó téglalakás

Szeged

74.9 M Ft
3 szoba
57 m²
Szeged
Eladó téglalakás

Szeged

58.7 M Ft
2 szoba
49 m²
Szeged, Londoni körút
Eladó téglalakás

Szeged

59.9 M Ft
2 szoba
55 m²
Szeged
Eladó téglalakás

Szeged

99.99 M Ft
4 szoba
104 m²
Szeged
Eladó téglalakás

Szeged

74.9 M Ft
3 szoba
57 m²
Szeged
Eladó téglalakás

Szeged

119.9 M Ft
5 szoba
118 m²
Szeged
Eladó téglalakás

Szeged

26 M Ft
4 szoba
130 m²
Szeged
Eladó téglalakás

Szeged

39.9 M Ft
2 szoba
32 m²
Szeged
Eladó téglalakás

Szeged

97.99 M Ft
3 szoba
76 m²
Szeged
Eladó téglalakás

Szeged

149 M Ft
4 + 1 szoba
132 m²
Szeged
Eladó téglalakás

Szeged

179 M Ft
4 szoba
176 m²
Szeged
Eladó téglalakás

Szeged

74.9 M Ft
3 szoba
82 m²
Szeged
Eladó téglalakás

Szeged

135 M Ft
4 szoba
116 m²
Szeged
Eladó téglalakás

Szeged

58.7 M Ft
2 szoba
49 m²
Szeged
Eladó téglalakás

Szeged

52.9 M Ft
3 szoba
48 m²
Szeged
Eladó téglalakás

Szeged

79.9 M Ft
2 szoba
63 m²
Szeged
Eladó téglalakás

Szeged

84.9 M Ft
3 szoba
82 m²
Szeged, Belváros, Bakay Nándor utca
Eladó téglalakás

Szeged

199.9 M Ft
2 + 2 szoba
196 m²
Szeged
Eladó téglalakás

Szeged

39.9 M Ft
2 szoba
32 m²

Falusi CSOK ingatlanok

Szob
Eladó sorház

Szob

16 M Ft
2 szoba
45 m²
Beremend, 7827 Beremend, Petőfi Sándor utca 10
Eladó családi ház

Beremend

11.95 M Ft
1 + 1 szoba
124 m²
Fülöpszállás
Eladó családi ház

Fülöpszállás

69.9 M Ft
4 szoba
190 m²
Nyírjákó
Eladó családi ház

Nyírjákó

19 M Ft
3 szoba
115 m²
Sumony
Eladó családi ház

Sumony

19 M Ft
4 szoba
120 m²
Parád
Eladó családi ház

Parád

25 M Ft
2 szoba
80 m²
Hegyeshalom, Margaréta utca 12
Eladó téglalakás

Hegyeshalom

32.89 M Ft
1 szoba
27 m²
Kétegyháza
Eladó családi ház

Kétegyháza

21 M Ft
3 szoba
105 m²