Avico Greentop

Eladó téglalakás
Szeged, 2. emelet

+ 2 kép 1/5
69 500 000 Ft69.5 M Ft 1 390 000 Ft/m2
2 szoba
50 m²
2. emelet
építés éve:2026

Részletes adatok

Fűtés: Egyéb
Emelet: 2. emelet
Extrák: Lift
Energetikai besorolás: Nem adta meg a hirdető

Az OTP Bank lakáshitel ajánlataFizetett hirdetés

+36 30 394
Szandi Zita
referens

Érdekel az OTP Bank kedvezményes lakáshitel ajánlata? *

* A kérdésre „Igen” válasz bejelölése esetén, az „Üzenet küldése” gombra kattintva kijelentem, hogy az OTP Bank Nyrt. Adatkezelési tájékoztatójának tartalmát megismertem és tudomásul vettem.

Eladó téglalakás leírása

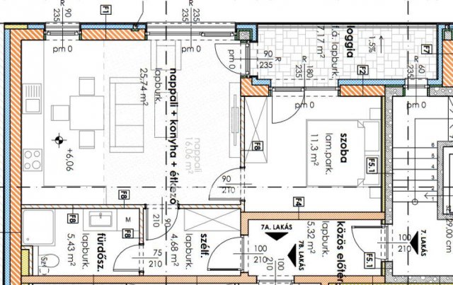
Csongrád - Csanád vármegye, Szeged-Belváros közelében elhelyezkedő épülő liftes társasházban, második emeleti 54,32 m2 alapterületű, utcára néző loggiás lakás eladó. Az ingatlan kulcsrakészen kerül átadásra ( konyhabútor nélkül). Az épület téglából, hőszigeteléssel, korszerű technológiával készül. Az otthon melegét hőszivattyús rendszer biztosítja, padlófűtéssel és fan coli hűtéssel. A lakás a mellette lévő lakással közös előtérből nyílik, elosztása szerint előszoba, amerikai konyhás nappali - 1 db hálószobából áll. A 7,17 m2 alapterületű loggiára a nappaliból és a hálóból is nyílik ajtó. A lakásban továbbá egy WC-vel és egy épített zuhanyzóval rendelkező fürdőszoba kerül kialakításra. A 7,17 m2 alapterületű loggiára a nappaliból és a hálóból is nyílik ajtó. A lakáshoz garázs vagy udvari parkolóhely is vásárolható. A kínálatunkból választott ingatlan finanszírozásához kedvezményes hitel- és pénzügyi konstrukciókat, hitel megoldásokat kínálunk. Az adásvételi szerződés megkötéséhez igény szerint, megbízható ügyvédi közreműködést és a kapcsolódó ügyek intézéséhez segítséget nyújtunk.

Hirdetés feltöltve: 2026. 04. 01.

2 szobás téglalakások ára Szegeden

Ebből az összehasonlításból megtudhatod, hogyan viszonyul a lakás ára a környékbeli téglalakások átlagos árához. Ez nem azt jelenti, hogy ennyivel olcsóbb vagy drágább, mint amennyit a lakás ér, hanem hogy ennyivel tér el a környékbeli átlagtól.

Ennek a m² ára
Szeged m² ár
1390 e Ft
1115 e Ft -25%
Ennek az ára
Szeged átlagár
69.5 M Ft m Ft
58.2 m Ft -19%

Az ingatlan elhelyezkedése

Cím: Szeged, 2. emelet

Eladó téglalakások a környékről

Szeged, Belváros, Bakay Nándor utca
Eladó téglalakás

Szeged

199.9 M Ft
2 + 2 szoba
196 m²
Szeged
Eladó téglalakás

Szeged

599.999 M Ft
4 szoba
302 m²
Deszk
Eladó téglalakás

Deszk

44.9 M Ft
2 szoba
66 m²
Szeged
Eladó téglalakás

Szeged

39.9 M Ft
2 szoba
32 m²
Szeged
Eladó téglalakás

Szeged

179 M Ft
4 szoba
176 m²
Szeged
Eladó téglalakás

Szeged

119.9 M Ft
5 szoba
118 m²
Szeged
Eladó téglalakás

Szeged

58.7 M Ft
2 szoba
49 m²
Szeged
Eladó téglalakás

Szeged

109.9 M Ft
3 szoba
91 m²
Szeged
Eladó téglalakás

Szeged

52.9 M Ft
3 szoba
48 m²
Szeged
Eladó téglalakás

Szeged

74.9 M Ft
3 szoba
82 m²
Szeged
Eladó téglalakás

Szeged

79.9 M Ft
3 szoba
86 m²
Szeged
Eladó téglalakás

Szeged

179 M Ft
4 szoba
176 m²
Szeged
Eladó téglalakás

Szeged

79.9 M Ft
3 szoba
86 m²
Szeged
Eladó téglalakás

Szeged

70.9 M Ft
3 szoba
70 m²
Szeged
Eladó téglalakás

Szeged

74.9 M Ft
3 szoba
57 m²
Szeged
Eladó téglalakás

Szeged

58.7 M Ft
2 szoba
49 m²
Szeged, Londoni körút
Eladó téglalakás

Szeged

59.9 M Ft
2 szoba
55 m²
Szeged
Eladó téglalakás

Szeged

114.9 M Ft
4 + 1 szoba
123 m²
Szeged
Eladó téglalakás

Szeged

73.9 M Ft
3 szoba
66 m²
Szeged
Eladó téglalakás

Szeged

84.9 M Ft
3 szoba
82 m²
Szeged
Eladó téglalakás

Szeged

99.99 M Ft
4 szoba
104 m²
Szeged
Eladó téglalakás

Szeged

114.9 M Ft
4 + 1 szoba
123 m²
Szeged
Eladó téglalakás

Szeged

79.9 M Ft
2 szoba
63 m²
Szeged
Eladó téglalakás

Szeged

39.9 M Ft
2 szoba
32 m²

Falusi CSOK ingatlanok

Tápióbicske, Nagykátai út
Eladó családi ház

Tápióbicske

14.9 M Ft
3 szoba
70 m²
Csemő
Eladó családi ház

Csemő

61.9 M Ft
3 szoba
88 m²
Szigetcsép, Rákóczi utca
Eladó családi ház

Szigetcsép

63 M Ft
4 szoba
89 m²
Szarvaskő
Eladó családi ház

Szarvaskő

49.5 M Ft
5 szoba
160 m²
Berzence, Mátyás utca
Eladó családi ház

Berzence

26.8 M Ft
3 szoba
94 m²
Hásságy
Eladó családi ház

Hásságy

29.9 M Ft
2 szoba
70 m²
Gádoros
Eladó családi ház

Gádoros

25.5 M Ft
4 szoba
140 m²
Újlengyel
Eladó ikerház

Újlengyel

78 M Ft
4 szoba
88 m²