NapForrás 20 - Buda

Eladó téglalakás
Szeged, 2. emelet

+ 4 kép 1/7
59 000 000 Ft59 M Ft 1 552 632 Ft/m2
1 + 1 szoba
38 m²
2. emelet
építés éve:2026

Részletes adatok

Fűtés: Egyéb
Emelet: 2. emelet
Extrák: Lift
Energetikai besorolás: Nem adta meg a hirdető

Az OTP Bank lakáshitel ajánlataFizetett hirdetés

+36 30 394
Szandi Zita
referens

Érdekel az OTP Bank kedvezményes lakáshitel ajánlata? *

* A kérdésre „Igen” válasz bejelölése esetén, az „Üzenet küldése” gombra kattintva kijelentem, hogy az OTP Bank Nyrt. Adatkezelési tájékoztatójának tartalmát megismertem és tudomásul vettem.

Eladó téglalakás leírása

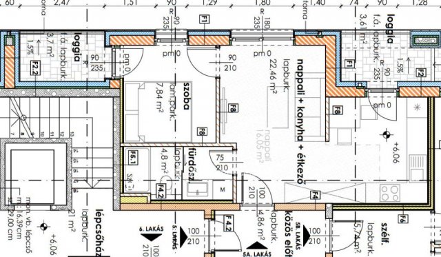
Csongrád - Csanád vármegye, Szeged-Belváros közelében elhelyezkedő épülő liftes társasházban, második emeleti 42,40 m2 alapterületű, utcára néző 2 db loggiával rendelkező lakás eladó. Az ingatlan kulcsrakészen kerül átadásra ( konyhabútor nélkül). Az épület téglából, hőszigeteléssel, korszerű technológiával készül. Az otthon melegét hőszivattyús rendszer biztosítja, padlófűtéssel és fan coli hűtéssel. A lakás a mellette lévő lakással közös előtérből nyílik, elosztása szerint egy amerikai konyhás nappali - 1 db hálószobából áll. A lakásban továbbá egy WC-vel és egy épített zuhanyzóval rendelkező fürdőszoba kerül kialakításra. A 3,61 m2 alapterületű loggia a konyhából, a 3,7 m2 alapterületű loggia a hálóból közelíthető meg. A lakáshoz garázs vagy udvari parkolóhely is vásárolható. A kínálatunkból választott ingatlan finanszírozásához kedvezményes hitel- és pénzügyi konstrukciókat, hitel megoldásokat kínálunk. Az adásvételi szerződés megkötéséhez igény szerint, megbízható ügyvédi közreműködést és a kapcsolódó ügyek intézéséhez segítséget nyújtunk.

Hirdetés feltöltve: 2026. 04. 01. Utoljára módosítva: 2026. 04. 15.

2 szobás téglalakások ára Szegeden

Ebből az összehasonlításból megtudhatod, hogyan viszonyul a lakás ára a környékbeli téglalakások átlagos árához. Ez nem azt jelenti, hogy ennyivel olcsóbb vagy drágább, mint amennyit a lakás ér, hanem hogy ennyivel tér el a környékbeli átlagtól.

Ennek a m² ára
Szeged m² ár
1553 e Ft
1146 e Ft -36%
Ennek az ára
Szeged átlagár
59 M Ft m Ft
60 m Ft 2%

Az ingatlan elhelyezkedése

Cím: Szeged, 2. emelet

Eladó téglalakások a környékről

Szeged
Eladó téglalakás

Szeged

114.9 M Ft
4 + 1 szoba
123 m²
Szeged
Eladó téglalakás

Szeged

79.9 M Ft
2 szoba
63 m²
Szeged
Eladó téglalakás

Szeged

39.9 M Ft
2 szoba
32 m²
Szeged, Londoni körút
Eladó téglalakás

Szeged

59.9 M Ft
2 szoba
55 m²
Szeged
Eladó téglalakás

Szeged

97.99 M Ft
3 szoba
76 m²
Szeged
Eladó téglalakás

Szeged

70.9 M Ft
3 szoba
70 m²
Szeged
Eladó téglalakás

Szeged

74.9 M Ft
3 szoba
82 m²
Szeged
Eladó téglalakás

Szeged

52.9 M Ft
3 szoba
48 m²
Szeged
Eladó téglalakás

Szeged

58.7 M Ft
2 szoba
49 m²
Szeged
Eladó téglalakás

Szeged

119.9 M Ft
5 szoba
118 m²
Szeged, Londoni körút
Eladó téglalakás

Szeged

59.9 M Ft
2 szoba
55 m²
Szeged
Eladó téglalakás

Szeged

179 M Ft
4 szoba
176 m²
Szeged
Eladó téglalakás

Szeged

149 M Ft
4 + 1 szoba
132 m²
Szeged
Eladó téglalakás

Szeged

109.9 M Ft
3 szoba
91 m²
Szeged
Eladó téglalakás

Szeged

26 M Ft
4 szoba
130 m²
Szeged
Eladó téglalakás

Szeged

114.9 M Ft
4 + 1 szoba
261 m²
Szeged
Eladó téglalakás

Szeged

599.999 M Ft
4 szoba
302 m²
Szeged
Eladó téglalakás

Szeged

109.9 M Ft
3 szoba
91 m²
Szeged
Eladó téglalakás

Szeged

74.9 M Ft
3 szoba
57 m²
Szeged
Eladó téglalakás

Szeged

74.9 M Ft
3 szoba
57 m²
Szeged
Eladó téglalakás

Szeged

79.9 M Ft
2 szoba
63 m²
Szeged
Eladó téglalakás

Szeged

73.9 M Ft
3 szoba
66 m²
Deszk
Eladó téglalakás

Deszk

44.9 M Ft
3 szoba
66 m²
Szeged
Eladó téglalakás

Szeged

73.9 M Ft
3 szoba
66 m²

Falusi CSOK ingatlanok

Pilisszentkereszt, Pipacs u 1
Eladó családi ház

Pilisszentkereszt

195 M Ft
6 szoba
300 m²
Türje
Eladó családi ház

Türje

25 M Ft
2 szoba
80 m²
Bodrogkeresztúr
Eladó családi ház

Bodrogkeresztúr

98 M Ft
3 + 1 szoba
189 m²
Baks
Eladó családi ház

Baks

18.9 M Ft
3 szoba
118 m²
Tápiógyörgye
Eladó családi ház

Tápiógyörgye

29.49 M Ft
2 szoba
60 m²
Galgamácsa
Eladó családi ház

Galgamácsa

79.9 M Ft
4 szoba
110 m²
Szentliszló
Eladó családi ház

Szentliszló

58.9 M Ft
2 + 3 szoba
170 m²
Gönyű
Eladó családi ház

Gönyű

111.951 M Ft
5 szoba
105 m²