Seven Pearl

Eladó téglalakás
Szeged, Felsőváros, Rózsa utca, 3. emelet

1/2
99 949 500 Ft99.95 M Ft 1 265 184 Ft/m2
3 szoba
79 m²
3. emelet

Részletes adatok

Fűtés: Egyéb
Emelet: 3. emelet
Közmű: Víz, Gáz, Villany, Csatorna
Extrák: Lift
Energetikai besorolás: Nem adta meg a hirdető

Az OTP Bank lakáshitel ajánlataFizetett hirdetés

+36 70 384
Restás Renáta ev.
ev.

Érdekel az OTP Bank kedvezményes lakáshitel ajánlata? *

* A kérdésre „Igen” válasz bejelölése esetén, az „Üzenet küldése” gombra kattintva kijelentem, hogy az OTP Bank Nyrt. Adatkezelési tájékoztatójának tartalmát megismertem és tudomásul vettem.

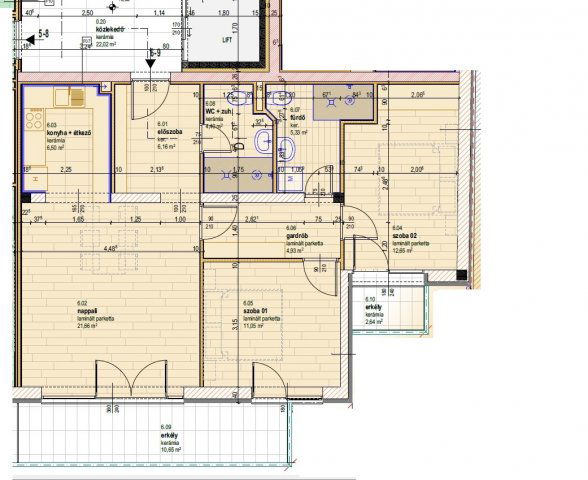
Eladó téglalakás leírása

Szuper lehetőség! Könnyen két otthonná alakítható, 3. emeleti, 79 m2-es, dupla erkélyes, új építésű lakás ELADÓ!
Az ingatlan adatai: Szeged - Északi városrész, Rózsa utcai, 79,32 m2-es, 3. emeleti, téglalakás, új építésű, liftes házban eladó! Helyiségek: 3 szoba, konyha, fürdőszoba WC-vel, külön WC (ahová tusolót lehet kérni), gardrób, előszoba és két erkély. Fűtése + hűtése: hőszivattyús fűtési rendszer, padlófűtés, befújásos fan coil hűtés.
A lakás 72,68 m2, az erkély 13,29 m2. Könnyen két lakássá alakítható!
Kulcsrakész vételára: 95.190.000 + 5% áfa= 99.949.500 Ft.
A lakáshoz lehet garázst, garázst galériával (irodával) vagy udvari beállót is vásárolni.
Garázs: 10.000.000 Ft + 27% áfa = 12.700.000 Ft
Garázs galériával (irodával): 12.800.000 Ft + 27% áfa = 16.256.000 Ft
Udvari beálló: 4.000.000 Ft + 27% áfa = 5.080.000 Ft
Még további két lakás elérhető ebben a házban:
- 1 db ugyanilyen lakás, ami a hirdetésben szerepel, csak a 2. emeleten, melynek ára: 99.949.500 Ft
- 1 db, 3. emeleti, 53 m2-es (lakás: 52,01 m2 + erkély: 2,08 m2), 2 szobás, erkélyes lakás, amelynek ára 63.672.000 Ft + 5% áfa = 66.855.600 Ft
Tervezett befejezés: 2026. év vége.

Nekem miért tetszik?
A ház liftes, akadálymentesített, energiatakarékos. A lakásokat igényre szabottan készítik el. A kulcsrakész befejezés tartalmazza a kiépített elektromos hálózatot (konnektorokkal, kapcsolókkal), a 3 rétegű hang- és hőszigetelt, műanyag ablakokat, a belső, minőségi ajtókat, a redőny helyének előkészítését, a festett falakat (fehérre), belső helyiségek meleg- és hidegburkolatait, amelyek igény szerint választhatóak (mennyisége és ára szerződésben meghatározott, melytől felár ellenében el lehet térni) és a kaputelefont is. A közelben minden megtalálható, amikre a mindennapokban szükségünk lehet, pl. boltok éttermet, patikák, iskolák, óvodák, busz- és trolimegálló…stb. A parkolás a város ezen részén ingyenes. Közel van az autópálya feljáró és a Belváros is!

Ha kérdésed van, vagy szeretnéd megtekinteni az ingatlant, hívj! (Az üzeneteket nem mindig látom, ezért fontos, hogy telefonálj!)

Hirdetés feltöltve: 2026. 03. 04. Utoljára módosítva: 2026. 03. 23.

3 szobás téglalakások ára Szegeden

Ebből az összehasonlításból megtudhatod, hogyan viszonyul a lakás ára a környékbeli téglalakások átlagos árához. Ez nem azt jelenti, hogy ennyivel olcsóbb vagy drágább, mint amennyit a lakás ér, hanem hogy ennyivel tér el a környékbeli átlagtól.

Ennek a m² ára
Szeged m² ár
1265 e Ft
1112 e Ft -14%
Ennek az ára
Szeged átlagár
99.95 M Ft m Ft
85.8 m Ft -16%

Az ingatlan elhelyezkedése

Cím: Szeged, Felsőváros, Rózsa utca, 3. emelet

Eladó téglalakások a környékről

Kistelek, Kossuth utca
Eladó téglalakás

Kistelek

54.9 M Ft
3 szoba
115 m²
Szeged
Eladó téglalakás

Szeged

114.9 M Ft
4 + 1 szoba
261 m²
Szeged, Belváros, Bakay Nándor utca
Eladó téglalakás

Szeged

199.9 M Ft
2 + 2 szoba
196 m²
Szeged
Eladó téglalakás

Szeged

599.999 M Ft
4 szoba
302 m²
Szeged
Eladó téglalakás

Szeged

119.9 M Ft
5 szoba
118 m²
Szeged
Eladó téglalakás

Szeged

119.9 M Ft
5 szoba
118 m²
Szeged
Eladó téglalakás

Szeged

149 M Ft
4 + 1 szoba
132 m²
Szeged
Eladó téglalakás

Szeged

135 M Ft
4 szoba
116 m²
Szeged
Eladó téglalakás

Szeged

74.9 M Ft
3 szoba
82 m²
Szeged
Eladó téglalakás

Szeged

39.9 M Ft
2 szoba
32 m²
Szeged, Londoni körút
Eladó téglalakás

Szeged

59.9 M Ft
2 szoba
55 m²
Szeged
Eladó téglalakás

Szeged

79.9 M Ft
2 szoba
63 m²
Szeged
Eladó téglalakás

Szeged

135 M Ft
4 szoba
116 m²
Szeged
Eladó téglalakás

Szeged

79.9 M Ft
2 szoba
63 m²
Szeged
Eladó téglalakás

Szeged

109.9 M Ft
3 szoba
91 m²
Szeged
Eladó téglalakás

Szeged

74.9 M Ft
3 szoba
57 m²
Szeged
Eladó téglalakás

Szeged

114.9 M Ft
4 + 1 szoba
123 m²
Szeged, Londoni körút
Eladó téglalakás

Szeged

59.9 M Ft
2 szoba
55 m²
Szeged
Eladó téglalakás

Szeged

39.9 M Ft
2 szoba
32 m²
Szeged
Eladó téglalakás

Szeged

58.7 M Ft
2 szoba
49 m²
Szeged
Eladó téglalakás

Szeged

70.9 M Ft
3 szoba
70 m²
Szeged
Eladó téglalakás

Szeged

179 M Ft
4 szoba
176 m²
Szeged
Eladó téglalakás

Szeged

74.9 M Ft
3 szoba
57 m²
Szeged
Eladó téglalakás

Szeged

52.9 M Ft
3 szoba
48 m²

Falusi CSOK ingatlanok

Csemő
Eladó családi ház

Csemő

61.9 M Ft
3 szoba
88 m²
Rakamaz
Eladó családi ház

Rakamaz

86.9 M Ft
5 szoba
280 m²
Simontornya
Eladó családi ház

Simontornya

20 M Ft
3 szoba
60 m²
Újlengyel
Eladó ikerház

Újlengyel

78 M Ft
4 szoba
88 m²
Újszilvás
Eladó családi ház

Újszilvás

49.9 M Ft
8 szoba
310 m²
Magyarbánhegyes
Eladó családi ház

Magyarbánhegyes

224 M Ft
5 szoba
600 m²
Szabadbattyán
Eladó családi ház

Szabadbattyán

147.99 M Ft
5 szoba
255 m²
Balatonszárszó, Öreghegyi út
Eladó családi ház

Balatonszárszó

29.9 M Ft
3 szoba
35 m²