Astora Olive Club House

Eladó téglalakás
Szeged, 1. emelet

+ 5 kép 1/8
93 200 000 Ft93.2 M Ft 1 226 316 Ft/m2
3 + 1 szoba
76 m²
1. emelet
építés éve:2026

Részletes adatok

Fűtés: Egyéb
Emelet: 1. emelet
Parkolás: Garázs
Komfort: Összkomfortos
Energetikai besorolás: Nem adta meg a hirdető

Az OTP Bank lakáshitel ajánlataFizetett hirdetés

+36 30 628
Kádár Zoltán László
referens

Érdekel az OTP Bank kedvezményes lakáshitel ajánlata? *

* A kérdésre „Igen” válasz bejelölése esetén, az „Üzenet küldése” gombra kattintva kijelentem, hogy az OTP Bank Nyrt. Adatkezelési tájékoztatójának tartalmát megismertem és tudomásul vettem.

Eladó téglalakás leírása

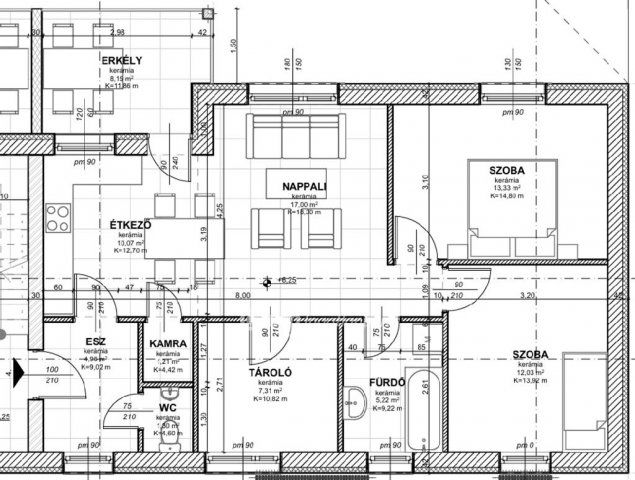
Szeged, Csemegi-tó közelében 76,69 m2-es, 3+1 szobás, 1. emeleti, újépítésű téglalakás, tulajdonos-kivitelezőtől, kulcsrakész állapotban eladó. Az átadás tervezett időpontja: 2026.12.31. A lakásban amerikai konyhás nappali + 2,5 szoba, fürdőszoba, kamra, wc és erkély található. A szobák laminált parketta-, a többi helyiség járólap burkolatot kapnak. Az otthon melegét hőszivattyús fűtés biztosítja. A lakáshoz opcionálisan, udvari beálló, vagy garázs is vásárolható. Tökéletes természetközeli elhelyezkedése miatt kedvező lehetőség lehet diákoknak, pároknak és befektetőknek, akár rövid-, akár hosszútávú kiadásra egyaránt. Az ingatlan megvásárlásához kedvező hitel is igényelhető, melynek intézéséhez szakszerű segítség áll a leendő vásárló rendelkezésére.

Hirdetés feltöltve: 2026. 02. 12. Utoljára módosítva: 2026. 05. 12.

4 szobás téglalakások ára Szegeden

Ebből az összehasonlításból megtudhatod, hogyan viszonyul a lakás ára a környékbeli téglalakások átlagos árához. Ez nem azt jelenti, hogy ennyivel olcsóbb vagy drágább, mint amennyit a lakás ér, hanem hogy ennyivel tér el a környékbeli átlagtól.

Ennek a m² ára
Szeged m² ár
1226 e Ft
1143 e Ft -7%
Ennek az ára
Szeged átlagár
93.2 M Ft m Ft
111.9 m Ft 17%

Az ingatlan elhelyezkedése

Cím: Szeged, 1. emelet

Eladó téglalakások a környékről

Szeged
Eladó téglalakás

Szeged

52.9 M Ft
3 szoba
48 m²
Szeged
Eladó téglalakás

Szeged

26 M Ft
4 szoba
130 m²
Kistelek, Kossuth utca
Eladó téglalakás

Kistelek

54.9 M Ft
3 szoba
115 m²
Szeged
Eladó téglalakás

Szeged

74.9 M Ft
3 szoba
57 m²
Szeged
Eladó téglalakás

Szeged

52.9 M Ft
3 szoba
48 m²
Szeged
Eladó téglalakás

Szeged

39.9 M Ft
2 szoba
32 m²
Szeged
Eladó téglalakás

Szeged

74.9 M Ft
3 szoba
82 m²
Szeged
Eladó téglalakás

Szeged

70.9 M Ft
3 szoba
70 m²
Szeged
Eladó téglalakás

Szeged

39.9 M Ft
2 szoba
32 m²
Szeged
Eladó téglalakás

Szeged

39.9 M Ft
2 szoba
32 m²
Szeged, Londoni körút
Eladó téglalakás

Szeged

59.9 M Ft
2 szoba
55 m²
Szeged
Eladó téglalakás

Szeged

79.9 M Ft
2 szoba
63 m²
Deszk
Eladó téglalakás

Deszk

44.9 M Ft
3 szoba
66 m²
Szeged, Rókus, Damjanich utca
Eladó téglalakás

Szeged

81.59 M Ft
5 szoba
96 m²
Szeged
Eladó téglalakás

Szeged

73.9 M Ft
3 szoba
66 m²
Szeged
Eladó téglalakás

Szeged

135 M Ft
4 szoba
116 m²
Szeged
Eladó téglalakás

Szeged

26 M Ft
4 szoba
130 m²
Szeged
Eladó téglalakás

Szeged

114.9 M Ft
4 + 1 szoba
261 m²
Szeged, Belváros
Eladó téglalakás

Szeged

220 M Ft
4 szoba
176 m²
Szeged
Eladó téglalakás

Szeged

99.99 M Ft
4 szoba
104 m²
Szeged
Eladó téglalakás

Szeged

109.9 M Ft
3 szoba
91 m²
Szeged
Eladó téglalakás

Szeged

77.8 M Ft
3 szoba
98 m²
Szeged, Belváros, Bakay Nándor utca
Eladó téglalakás

Szeged

199.9 M Ft
2 + 2 szoba
196 m²
Szeged
Eladó téglalakás

Szeged

116 M Ft
5 szoba
144 m²

Falusi CSOK ingatlanok

Somlóvecse
Eladó családi ház

Somlóvecse

44.9 M Ft
3 szoba
113 m²
Ásványráró
Eladó családi ház

Ásványráró

16.9 M Ft
2 szoba
53 m²
Békésszentandrás
Eladó családi ház

Békésszentandrás

10 M Ft
1 + 1 szoba
70 m²
Fertőd
Eladó családi ház

Fertőd

140.91 M Ft
4 + 2 szoba
190 m²
Zsámbok
Eladó családi ház

Zsámbok

54.85 M Ft
3 szoba
120 m²
Tápióbicske
Eladó családi ház

Tápióbicske

37.5 M Ft
2 szoba
70 m²
Ceglédbercel
Eladó családi ház

Ceglédbercel

67 M Ft
3 szoba
97 m²
Balatonszemes
Eladó téglalakás

Balatonszemes

119.9 M Ft
2 szoba
0 m²