River Life

Eladó téglalakás
Szeged, 3. emelet

+ 4 kép 1/7
81 200 000 Ft81.2 M Ft 1 230 303 Ft/m2
3 szoba
66 m²
3. emelet
építés éve:2026

Részletes adatok

Fűtés: Egyéb
Emelet: 3. emelet
Komfort: Összkomfortos
Energetikai besorolás: Nem adta meg a hirdető

Az OTP Bank lakáshitel ajánlataFizetett hirdetés

+36 30 733
Puskásné Ember Ninette
Szeged Széchenyi tér 6 - OTP Ingatlanpont Iroda

Érdekel az OTP Bank kedvezményes lakáshitel ajánlata? *

* A kérdésre „Igen” válasz bejelölése esetén, az „Üzenet küldése” gombra kattintva kijelentem, hogy az OTP Bank Nyrt. Adatkezelési tájékoztatójának tartalmát megismertem és tudomásul vettem.

Eladó téglalakás leírása

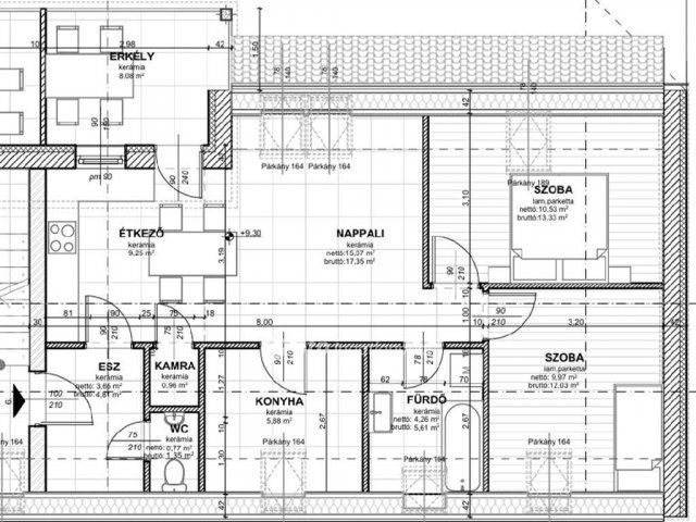
Szeged, Csemegi-tó közelében 66 m2-es, 3 szobás, 3. emeleti, újépítésű téglalakás, tulajdonos-kivitelezőtől, kulcsrakész állapotban eladó. Az átadás tervezett időpontja: 2026.12.31. A lakásban amerikai konyhás nappali + 2 szoba, fürdőszoba, kamra, wc és erkély található. A szobák laminált parketta-, a többi helyiség járólap burkolatot kapnak. Az otthon melegét hőszivattyús fűtés biztosítja. A lakáshoz opcionálisan, udvari beálló, vagy garázs is vásárolható. Tökéletes természetközeli elhelyezkedése miatt kedvező lehetőség lehet diákoknak, pároknak és befektetőknek, akár rövid-, akár hosszútávú kiadásra egyaránt. Az ingatlan megvásárlásához kedvező hitel is igényelhető, melynek intézéséhez szakszerű segítség áll a leendő vásárló rendelkezésére.

Referencia szám: M322134

Hirdetés feltöltve: 2026. 02. 12. Utoljára módosítva: 2026. 05. 30.

3 szobás téglalakások ára Szegeden

Ebből az összehasonlításból megtudhatod, hogyan viszonyul a lakás ára a környékbeli téglalakások átlagos árához. Ez nem azt jelenti, hogy ennyivel olcsóbb vagy drágább, mint amennyit a lakás ér, hanem hogy ennyivel tér el a környékbeli átlagtól.

Ennek a m² ára
Szeged m² ár
1230 e Ft
1126 e Ft -9%
Ennek az ára
Szeged átlagár
81.2 M Ft m Ft
85.9 m Ft 5%

Az ingatlan elhelyezkedése

Cím: Szeged, 3. emelet

Eladó téglalakások a környékről

Szeged
Eladó téglalakás

Szeged

26 M Ft
4 szoba
130 m²
Szeged, Tarján lakótelep
Eladó téglalakás

Szeged

52.9 M Ft
3 szoba
48 m²
Szeged, Alsóváros
Eladó téglalakás

Szeged

72 M Ft
3 szoba
61 m²
Szeged, Tarján lakótelep
Eladó téglalakás

Szeged

79.9 M Ft
2 szoba
63 m²
Szeged
Eladó téglalakás

Szeged

77.8 M Ft
3 szoba
98 m²
Szeged, Rókus
Eladó téglalakás

Szeged

74.9 M Ft
3 szoba
82 m²
Szeged, Rókus
Eladó téglalakás

Szeged

73.9 M Ft
3 szoba
66 m²
Szeged, Rókus
Eladó téglalakás

Szeged

39.9 M Ft
2 szoba
32 m²
Szeged, Rókus, Damjanich utca
Eladó téglalakás

Szeged

81.59 M Ft
5 szoba
96 m²
Szeged
Eladó téglalakás

Szeged

26 M Ft
4 szoba
130 m²
Szeged, Rókus
Eladó téglalakás

Szeged

39.9 M Ft
2 szoba
32 m²
Szeged
Eladó téglalakás

Szeged

135 M Ft
4 szoba
116 m²
Szeged
Eladó téglalakás

Szeged

149 M Ft
4 + 1 szoba
132 m²
Szeged, Rókus
Eladó téglalakás

Szeged

84.9 M Ft
3 szoba
82 m²
Szeged, Belváros, Bakay Nándor utca
Eladó téglalakás

Szeged

199.9 M Ft
2 + 2 szoba
196 m²
Szeged, Tarján lakótelep
Eladó téglalakás

Szeged

79.9 M Ft
2 szoba
63 m²
Deszk
Eladó téglalakás

Deszk

44.9 M Ft
2 szoba
66 m²
Kistelek, Kossuth utca
Eladó téglalakás

Kistelek

54.9 M Ft
3 szoba
115 m²
Szeged, Rókus
Eladó téglalakás

Szeged

109.9 M Ft
3 szoba
91 m²
Szeged, Kálvária sugárút környéke, Bakay Nándor utca
Eladó téglalakás

Szeged

160 M Ft
3 + 1 szoba
152 m²
Szeged, Rókus
Eladó téglalakás

Szeged

119.9 M Ft
5 szoba
118 m²
Szeged, Rókus
Eladó téglalakás

Szeged

39.9 M Ft
2 szoba
32 m²
Szeged
Eladó téglalakás

Szeged

135 M Ft
4 szoba
116 m²
Szeged
Eladó téglalakás

Szeged

77.8 M Ft
3 szoba
98 m²

Falusi CSOK ingatlanok

Tápióbicske
Eladó családi ház

Tápióbicske

79.9 M Ft
3 szoba
160 m²
Nagykarácsony
Eladó családi ház

Nagykarácsony

34.9 M Ft
3 szoba
112 m²
Fülöpszállás
Eladó családi ház

Fülöpszállás

69.9 M Ft
4 szoba
190 m²
Fertőd
Eladó családi ház

Fertőd

140.91 M Ft
4 + 2 szoba
190 m²
Szalkszentmárton
Eladó családi ház

Szalkszentmárton

145 M Ft
5 szoba
620 m²
Zalacsány
Eladó családi ház

Zalacsány

69.9 M Ft
3 szoba
90 m²
Rakamaz
Eladó családi ház

Rakamaz

86.9 M Ft
5 szoba
280 m²
Balatonszemes, Ady E. utca 6
Eladó téglalakás

Balatonszemes

108.9 M Ft
2 + 1 szoba
63 m²