NapForrás 20 - Buda

Eladó téglalakás
Szeged, Sorház

+ 17 kép 1/20
59 900 000 Ft59.9 M Ft 1 426 190 Ft/m2
2 szoba
42 m2
Sorház
építés éve:1974

Részletes adatok

Állapot: Újszerű
Fűtés: Távfűtés
Emelet: 3. emelet
Energetikai besorolás: Nem adta meg a hirdető

Az OTP Bank lakáshitel ajánlataFizetett hirdetés

+36 30 628
Kádár Zoltán László
referens

Érdekel az OTP Bank kedvezményes lakáshitel ajánlata? *

* A kérdésre „Igen” válasz bejelölése esetén, az „Üzenet küldése” gombra kattintva kijelentem, hogy az OTP Bank Nyrt. Adatkezelési tájékoztatójának tartalmát megismertem és tudomásul vettem.

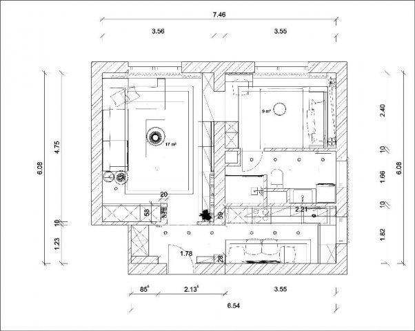
Eladó téglalakás leírása

Szeged, Újszeged, 43 m2-es, 2 szobás, 3. emeleti, LUXUSKATEGÓRIÁS lakás eladó. A lakásban 2 szoba, konyha, fürdőszoba és wc található. A 2025-ben történt teljekörű felújítás során, a szobák laminált parketta-, a többi helyiség járólap burkolatot kaptak. Az otthon melegét hőmennyiségmérős távfűtés biztosítja. Az ingatlan rendkívűl csendes, nyugodt környezetben, az újszegedi liget közvetlen közelében helyezkedik el. A sportcsarnok, az uszoda , a liget, a Tisza is tökéletes lehetőséget biztosít a közeli kikapcsolódásra. Az OTP Ingatlanpont teljeskörű ügyintézéssel áll az eladók és a vevők rendelkezésére! A kínálatunkból választott ingatlan finanszírozásához kedvezményes hitel- és pénzügyi konstrukciókat, CSOK, CSOK hitel megoldásokat kínálunk. Az adásvételi szerződés megkötéséhez igény szerint, megbízható ügyvédi közreműködést és a kapcsolódó ügyek intézéséhez segítséget nyújtunk.

Hirdetés feltöltve: 2026. 01. 24. Utoljára módosítva: 2026. 01. 24.

2 szobás téglalakások ára Szegeden

Ebből az összehasonlításból megtudhatod, hogyan viszonyul a lakás ára a környékbeli téglalakások átlagos árához. Ez nem azt jelenti, hogy ennyivel olcsóbb vagy drágább, mint amennyit a lakás ér, hanem hogy ennyivel tér el a környékbeli átlagtól.

Ennek a m² ára
Szeged m² ár
1426 e Ft
1070 e Ft -33%
Ennek az ára
Szeged átlagár
59.9 M Ft m Ft
56.6 m Ft -6%

Az ingatlan elhelyezkedése

Cím: Szeged, Sorház

Eladó téglalakások a környékről

Eladó téglalakás
Eladó téglalakás

Szeged

149 M Ft
4 + 1 szoba
132 m2
Eladó téglalakás
Eladó téglalakás

Szeged, Londoni körút

59.9 M Ft
2 szoba
55 m2
Eladó téglalakás
Eladó téglalakás

Szeged

599.999 M Ft
4 szoba
302 m2
Eladó téglalakás
Eladó téglalakás

Szeged

70.9 M Ft
3 szoba
70 m2
Eladó téglalakás
Eladó téglalakás

Szeged

139 M Ft
3 szoba
136 m2
Eladó téglalakás
Eladó téglalakás

Szeged

71.5 M Ft
3 szoba
71 m2
Eladó téglalakás
Eladó téglalakás

Szeged

39.9 M Ft
2 szoba
32 m2
Eladó téglalakás
Eladó téglalakás

Kistelek, Kossuth utca

22.5 M Ft
71 m2
Eladó téglalakás
Eladó téglalakás

Deszk

44.9 M Ft
3 szoba
66 m2
Eladó téglalakás
Eladó téglalakás

Szeged, Londoni körút

59.9 M Ft
2 szoba
55 m2
Eladó téglalakás
Eladó téglalakás

Szeged, Belváros, Bakay Nándor utca

209.9 M Ft
2 + 2 szoba
196 m2
Eladó téglalakás
Eladó téglalakás

Szeged

39.9 M Ft
2 szoba
32 m2
Eladó téglalakás
Eladó téglalakás

Szeged

71.5 M Ft
3 szoba
71 m2
Eladó téglalakás
Eladó téglalakás

Szeged

74.9 M Ft
3 szoba
57 m2
Eladó téglalakás
Eladó téglalakás

Szeged

79.9 M Ft
3 szoba
86 m2
Eladó téglalakás
Eladó téglalakás

Szeged

73.9 M Ft
3 szoba
66 m2
Eladó téglalakás
Eladó téglalakás

Szeged

99.99 M Ft
4 szoba
104 m2
Eladó téglalakás
Eladó téglalakás

Szeged

73.9 M Ft
3 szoba
66 m2
Eladó téglalakás
Eladó téglalakás

Szeged

79 M Ft
4 szoba
85 m2
Eladó téglalakás
Eladó téglalakás

Szeged

114.9 M Ft
4 + 1 szoba
261 m2
Eladó téglalakás
Eladó téglalakás

Szeged

52.9 M Ft
3 szoba
48 m2
Eladó téglalakás
Eladó téglalakás

Szeged

58.7 M Ft
2 szoba
49 m2
Eladó téglalakás
Eladó téglalakás

Szeged

58.7 M Ft
2 szoba
49 m2
Eladó téglalakás
Eladó téglalakás

Szeged

140.525 M Ft
4 szoba
176 m2

Falusi CSOK ingatlanok

Eladó családi ház
Eladó családi ház

Tabajd

79 M Ft
4 szoba
82 m2
Eladó családi ház
Eladó családi ház

Törtel

32.9 M Ft
3 szoba
68 m2
Eladó családi ház
Eladó családi ház

Csurgó

23.5 M Ft
4 szoba
80 m2
Eladó családi ház
Eladó családi ház

Nagyhegyes

45.7 M Ft
2 szoba
55 m2
Eladó családi ház
Eladó családi ház

Elek

18 M Ft
4 szoba
180 m2
Eladó családi ház
Eladó családi ház

Somogygeszti

10.9 M Ft
2 szoba
115 m2
Eladó családi ház
Eladó családi ház

Újszilvás

5.9 M Ft
1 szoba
31 m2
Eladó családi ház
Eladó családi ház

Szentbékkálla, Szentbékkálla

63.9 M Ft
2 szoba
143 m2