Astora Márvány8

Eladó téglalakás
Szeged, földszint

+ 6 kép 1/9
89 500 950 Ft89.501 M Ft 1 243 069 Ft/m2
3 szoba
72 m2
földszint
építés éve:2027

Részletes adatok

Fűtés: Egyéb
Energetikai besorolás: Nem adta meg a hirdető

Az OTP Bank lakáshitel ajánlataFizetett hirdetés

+36 70 615
Csuka Bonita Zsófia
Szeged Széchenyi tér 6 - OTP Ingatlanpont Iroda

Érdekel az OTP Bank kedvezményes lakáshitel ajánlata? *

* A kérdésre „Igen” válasz bejelölése esetén, az „Üzenet küldése” gombra kattintva kijelentem, hogy az OTP Bank Nyrt. Adatkezelési tájékoztatójának tartalmát megismertem és tudomásul vettem.

Eladó téglalakás leírása

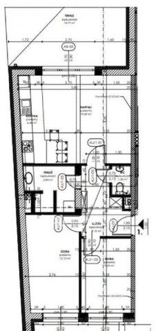
Szeged, Móraváros, 72,77 m2-es, 3 szobás, földszinti, nagy teraszos, újépítésű téglalakás, tulajdonos-kivitelezőtől, 20% kezdő befizetéssel eladó. A kulcsrakész átadás tervezett időpontja: 2027.06.30. A lakásban amerikai konyhás nappali, 2 szoba, fürdőszoba, wc és egy nagy belső udvari terasz található. A szobák laminált parketta-, a többi helyiség járólap burkolatot kapnak. Az otthon melegét hőszivattyús fűtés biztosítja. A lakáshoz opcionálisan, udvari beálló, vagy garázs is vásárolható. A TIK, egyetemi épületek, klinikák és tömegközlekedési megállók mindössze pár perc sétára találhatók, ezért rendkívül kedvező lehetőség lehet, befektetők és diákok számára is. Az ingatlan megvásárlásához kedvező hitel is igényelhető, melynek intézéséhez szakszerű segítség áll a leendő vásárló rendelkezésére.

Hirdetés feltöltve: 2025. 12. 26. Utoljára módosítva: 2025. 12. 26.

3 szobás téglalakások ára Szegeden

Ebből az összehasonlításból megtudhatod, hogyan viszonyul a lakás ára a környékbeli téglalakások átlagos árához. Ez nem azt jelenti, hogy ennyivel olcsóbb vagy drágább, mint amennyit a lakás ér, hanem hogy ennyivel tér el a környékbeli átlagtól.

Ennek a m² ára
Szeged m² ár
1243 e Ft
1077 e Ft -15%
Ennek az ára
Szeged átlagár
89.501 M Ft m Ft
84 m Ft -7%

Az ingatlan elhelyezkedése

Cím: Szeged, földszint

Eladó téglalakások a környékről

Eladó téglalakás
Eladó téglalakás

Szeged

139.065 M Ft
4 szoba
176 m2
Eladó téglalakás
Eladó téglalakás

Szeged

34.9 M Ft
2 szoba
52 m2
Eladó téglalakás
Eladó téglalakás

Hódmezővásárhely, Belváros, Andrássy utca

10.5 M Ft
380 m2
Eladó téglalakás
Eladó téglalakás

Szeged

99.99 M Ft
4 szoba
104 m2
Eladó téglalakás
Eladó téglalakás

Szeged

70.9 M Ft
3 szoba
70 m2
Eladó téglalakás
Eladó téglalakás

Szeged

74.9 M Ft
3 szoba
57 m2
Eladó téglalakás
Eladó téglalakás

Deszk

44.9 M Ft
3 szoba
66 m2
Eladó téglalakás
Eladó téglalakás

Szeged

80.9 M Ft
3 szoba
64 m2
Eladó téglalakás
Eladó téglalakás

Szeged

39.9 M Ft
2 szoba
32 m2
Eladó téglalakás
Eladó téglalakás

Szeged

599.999 M Ft
4 szoba
302 m2
Eladó téglalakás
Eladó téglalakás

Szeged

79.9 M Ft
3 szoba
71 m2
Eladó téglalakás
Eladó téglalakás

Szeged

74.9 M Ft
3 szoba
57 m2
Eladó téglalakás
Eladó téglalakás

Szeged

39.9 M Ft
2 szoba
32 m2
Eladó téglalakás
Eladó téglalakás

Szeged, Belváros, Bakay Nándor utca

209.9 M Ft
2 + 2 szoba
196 m2
Eladó téglalakás
Eladó téglalakás

Szeged

39.9 M Ft
2 szoba
32 m2
Eladó téglalakás
Eladó téglalakás

Szeged

119.9 M Ft
5 szoba
118 m2
Eladó téglalakás
Eladó téglalakás

Szeged

71.5 M Ft
3 szoba
71 m2
Eladó téglalakás
Eladó téglalakás

Szeged

73.9 M Ft
3 szoba
66 m2
Eladó téglalakás
Eladó téglalakás

Szeged

52.9 M Ft
3 szoba
48 m2
Eladó téglalakás
Eladó téglalakás

Szeged

84.9 M Ft
3 szoba
82 m2
Eladó téglalakás
Eladó téglalakás

Szeged

79.9 M Ft
2 szoba
63 m2
Eladó téglalakás
Eladó téglalakás

Szeged

109.9 M Ft
3 szoba
91 m2
Eladó téglalakás
Eladó téglalakás

Szeged

139 M Ft
3 szoba
136 m2
Eladó téglalakás
Eladó téglalakás

Szeged, Londoni körút

59.9 M Ft
2 szoba
55 m2

Falusi CSOK ingatlanok

Eladó családi ház
Eladó családi ház

Úri

260 M Ft
7 szoba
300 m2
Eladó családi ház
Eladó családi ház

Mezőfalva

39 M Ft
3 szoba
77 m2
Eladó családi ház
Eladó családi ház

Zákány, Május 1. utca

39.9 M Ft
2 szoba
112 m2
Eladó téglalakás
Eladó téglalakás

Nagyharsány

22.5 M Ft
3 szoba
71 m2
Eladó családi ház
Eladó családi ház

Kaposgyarmat

695 M Ft
6 szoba
610 m2
Eladó családi ház
Eladó családi ház

Sárisáp, Orgona utca

60 M Ft
4 szoba
145 m2
Eladó családi ház
Eladó családi ház

Kondorfa

28.5 M Ft
3 + 1 szoba
65 m2
Eladó családi ház
Eladó családi ház

Somogyaszaló

59.9 M Ft
3 szoba
180 m2