BAM Living

Eladó téglalakás
Szeged, 2. emelet

+ 17 kép 1/20
105 900 000 Ft105.9 M Ft 1 291 463 Ft/m2
3 + 1 szoba
82 m2
2. emelet
építés éve:2023

Részletes adatok

Állapot: Újszerű
Fűtés: Egyéb
Energetikai besorolás: Nem adta meg a hirdető

Az OTP Bank lakáshitel ajánlataFizetett hirdetés

+36 30 733
Puskásné Ember Ninette
Szeged Széchenyi tér 6 - OTP Ingatlanpont Iroda

Érdekel az OTP Bank kedvezményes lakáshitel ajánlata? *

* A kérdésre „Igen” válasz bejelölése esetén, az „Üzenet küldése” gombra kattintva kijelentem, hogy az OTP Bank Nyrt. Adatkezelési tájékoztatójának tartalmát megismertem és tudomásul vettem.

Eladó téglalakás leírása

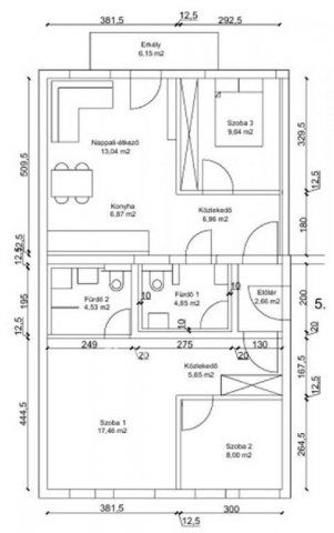
KÉT GYÖNGYSZEM EGY KAGYLÓBAN! Szeged, Felsőváros, 82 nm-es, (egy 2 szobás és egy 1+1 szobás, külön bejárattal rendelkező), kifogástalan állapotú, 2. emeleti, téglalakás, 6 m2-es erkéllyel és udvari autóbeállóval eladó. A lakásban két különálló amerikaikonyhás nappali + hálószobás, külön almérőkkel ellátott, kiadásra tökéletes paraméterekkel rendelkező lakás található. A szobák laminált parketta-, a többi helyiség járólap burkolatot kapott. Az otthon melegét hőszivattyús fűtés biztosítja. A LAKÁSOK HAVI REZSIJE A KÖZÖS KÖLTSÉGGEL EGYÜTT 30.000 FT!!! A lakáshoz opcionálisan garázs is vásárolható. Az ingatlan rendkívűl csendes, nyugodt környezetben helyezkedik el. Tömegközlekedési lehetőség 2 perc sétára található. Az ingatlan megvásárlásához kedvező hitel is igényelhető, melynek intézéséhez szakszerű segítség áll a leendő vásárló rendelkezésére.

Referencia szám: M305849

Hirdetés feltöltve: 2025. 12. 16. Utoljára módosítva: 2025. 12. 16.

4 szobás téglalakások ára Szegeden

Ebből az összehasonlításból megtudhatod, hogyan viszonyul a lakás ára a környékbeli téglalakások átlagos árához. Ez nem azt jelenti, hogy ennyivel olcsóbb vagy drágább, mint amennyit a lakás ér, hanem hogy ennyivel tér el a környékbeli átlagtól.

Ennek a m² ára
Szeged m² ár
1291 e Ft
1102 e Ft -17%
Ennek az ára
Szeged átlagár
105.9 M Ft m Ft
110.1 m Ft 4%

Az ingatlan elhelyezkedése

Cím: Szeged, 2. emelet

Eladó téglalakások a környékről

Eladó téglalakás
Eladó téglalakás

Kistelek, Kossuth utca

22.5 M Ft
71 m2
Eladó téglalakás
Eladó téglalakás

Deszk

44.9 M Ft
3 szoba
66 m2
Eladó téglalakás
Eladó téglalakás

Szeged

149 M Ft
4 + 1 szoba
132 m2
Eladó téglalakás
Eladó téglalakás

Szeged

109.9 M Ft
3 szoba
91 m2
Eladó téglalakás
Eladó téglalakás

Szeged

99.99 M Ft
4 szoba
104 m2
Eladó téglalakás
Eladó téglalakás

Szeged

34.9 M Ft
2 szoba
52 m2
Eladó téglalakás
Eladó téglalakás

Szeged

73.9 M Ft
3 szoba
66 m2
Eladó téglalakás
Eladó téglalakás

Deszk

44.9 M Ft
2 szoba
66 m2
Eladó téglalakás
Eladó téglalakás

Szeged

84.9 M Ft
3 szoba
82 m2
Eladó téglalakás
Eladó téglalakás

Szeged

34.9 M Ft
2 szoba
52 m2
Eladó téglalakás
Eladó téglalakás

Szeged, Belváros, Bakay Nándor utca

209.9 M Ft
2 + 2 szoba
196 m2
Eladó téglalakás
Eladó téglalakás

Szeged

79.9 M Ft
2 szoba
63 m2
Eladó téglalakás
Eladó téglalakás

Szeged

79.9 M Ft
3 szoba
71 m2
Eladó téglalakás
Eladó téglalakás

Szeged

52.9 M Ft
3 szoba
48 m2
Eladó téglalakás
Eladó téglalakás

Szeged, Londoni körút

59.9 M Ft
2 szoba
55 m2
Eladó téglalakás
Eladó téglalakás

Szeged

39.9 M Ft
2 szoba
32 m2
Eladó téglalakás
Eladó téglalakás

Szeged

114.9 M Ft
4 + 1 szoba
261 m2
Eladó téglalakás
Eladó téglalakás

Szeged

39.9 M Ft
2 szoba
32 m2
Eladó téglalakás
Eladó téglalakás

Szeged

139.065 M Ft
4 szoba
176 m2
Eladó téglalakás
Eladó téglalakás

Szeged

71.5 M Ft
3 szoba
71 m2
Eladó téglalakás
Eladó téglalakás

Szeged

73.9 M Ft
3 szoba
66 m2
Eladó téglalakás
Eladó téglalakás

Szeged, Londoni körút

59.9 M Ft
2 szoba
55 m2
Eladó téglalakás
Eladó téglalakás

Hódmezővásárhely, Belváros, Andrássy utca

10.5 M Ft
380 m2
Eladó téglalakás
Eladó téglalakás

Szeged

39.9 M Ft
2 szoba
32 m2

Falusi CSOK ingatlanok

Eladó családi ház
Eladó családi ház

Tápiógyörgye

30 M Ft
3 szoba
65 m2
Eladó családi ház
Eladó családi ház

Ádánd

79 M Ft
4 szoba
140 m2
Eladó családi ház
Eladó családi ház

Tiszatenyő

13.99 M Ft
2 szoba
63 m2
Eladó családi ház
Eladó családi ház

Dunaalmás

52.5 M Ft
3 + 1 szoba
140 m2
Eladó családi ház
Eladó családi ház

Tésenfa, Kossuth utca 23/a

5.55 M Ft
1 + 1 szoba
109 m2
Eladó családi ház
Eladó családi ház

Marcaltő

26 M Ft
3 szoba
103 m2
Eladó családi ház
Eladó családi ház

Verseg

84.9 M Ft
6 szoba
152 m2
Eladó családi ház
Eladó családi ház

Kenyeri

39.9 M Ft
3 szoba
94 m2