Astora Art House

Eladó téglalakás
Szeged, 1. emelet

+ 10 kép 1/13
55 000 000 Ft55 M Ft 797 101 Ft/m2
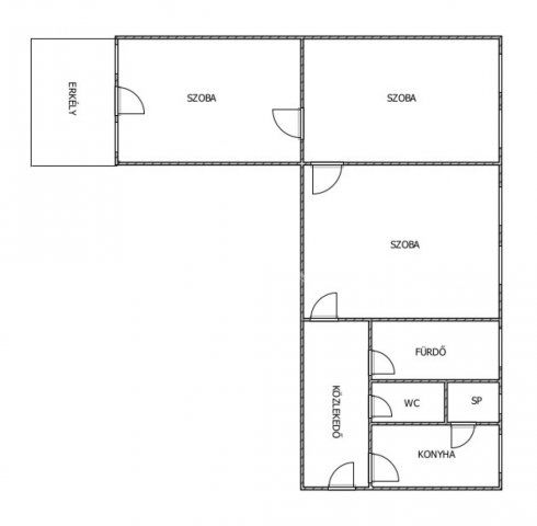
3 szoba
69 m2
1. emelet
építés éve:1971

Részletes adatok

Állapot: Felújítandó
Fűtés: Gázkonvektor
Energetikai besorolás: Nem adta meg a hirdető

Az OTP Bank lakáshitel ajánlataFizetett hirdetés

+36 30 901
Szil Gabriella
referens

Érdekel az OTP Bank kedvezményes lakáshitel ajánlata? *

* A kérdésre „Igen” válasz bejelölése esetén, az „Üzenet küldése” gombra kattintva kijelentem, hogy az OTP Bank Nyrt. Adatkezelési tájékoztatójának tartalmát megismertem és tudomásul vettem.

Eladó téglalakás leírása

FELÚJÍTANDÓ LAKÁS FELSŐVÁROSON

Szeged kedvelt részén, a József A sgt-on vált eladóvá egy 69 m2-es, 3 szobás, nagy erkélyes tégla lakás.
A 70-es években épült társasház 1.emeletén található tágas, napfényes lakás eredeti állapotú, konvektoros fűtésű, de a kémény bélelése megtörtént így nincs akadálya a fűtés korszerűsítésnek.
A lakás belső tere szabadon alakítható, így ideális lehet befektetési célra is, hiszen a fürdő és a wc külön helyiségben található. A konyhához egy spájz is kapcsolódik, ami növeli a pakolási lehetőséget.
A lakáshoz egy saját alagsori tároló rész is tartozik.

Az ingatlan kiváló infrastruktúrával rendelkezik, de a Belváros, és Újszeged pár perc sétával is elérhető.

Az ingatlan tehermentes, azonnal birtokba vehető.

NÉZZE MEG AJÁNLATUNKAT SZEMÉLYESEN IS! ...TOVÁBBI, TÖBBEZRES INGATLAN KÍNÁLAT: www.gdn-ingatlan.hu - GDN azonosító: 389042

Hirdetés feltöltve: 2025. 10. 30. Utoljára módosítva: 2025. 11. 02.

3 szobás téglalakások ára Szegeden

Ebből az összehasonlításból megtudhatod, hogyan viszonyul a lakás ára a környékbeli téglalakások átlagos árához. Ez nem azt jelenti, hogy ennyivel olcsóbb vagy drágább, mint amennyit a lakás ér, hanem hogy ennyivel tér el a környékbeli átlagtól.

Ennek a m² ára
Szeged m² ár
797 e Ft
1077 e Ft 26%
Ennek az ára
Szeged átlagár
55 M Ft m Ft
84 m Ft 35%

Az ingatlan elhelyezkedése

Cím: Szeged, 1. emelet

Eladó téglalakások a környékről

Eladó téglalakás
Eladó téglalakás

Szeged

139.065 M Ft
4 szoba
176 m2
Eladó téglalakás
Eladó téglalakás

Szeged, Londoni körút

59.9 M Ft
2 szoba
55 m2
Eladó téglalakás
Eladó téglalakás

Szeged

71.5 M Ft
3 szoba
71 m2
Eladó téglalakás
Eladó téglalakás

Szeged

34.9 M Ft
2 szoba
52 m2
Eladó téglalakás
Eladó téglalakás

Szeged

73.9 M Ft
3 szoba
66 m2
Eladó téglalakás
Eladó téglalakás

Szeged

149 M Ft
4 + 1 szoba
132 m2
Eladó téglalakás
Eladó téglalakás

Szeged

109.9 M Ft
3 szoba
91 m2
Eladó téglalakás
Eladó téglalakás

Szeged, Londoni körút

59.9 M Ft
2 szoba
55 m2
Eladó téglalakás
Eladó téglalakás

Szeged

39.9 M Ft
2 szoba
32 m2
Eladó téglalakás
Eladó téglalakás

Szeged

149 M Ft
4 + 1 szoba
132 m2
Eladó téglalakás
Eladó téglalakás

Szeged

84.9 M Ft
3 szoba
82 m2
Eladó téglalakás
Eladó téglalakás

Szeged

99.99 M Ft
4 szoba
104 m2
Eladó téglalakás
Eladó téglalakás

Szeged

79.9 M Ft
2 szoba
63 m2
Eladó téglalakás
Eladó téglalakás

Szeged

114.9 M Ft
4 + 1 szoba
261 m2
Eladó téglalakás
Eladó téglalakás

Deszk

44.9 M Ft
2 szoba
66 m2
Eladó téglalakás
Eladó téglalakás

Szeged

71.5 M Ft
3 szoba
71 m2
Eladó téglalakás
Eladó téglalakás

Szeged

79.9 M Ft
3 szoba
71 m2
Eladó téglalakás
Eladó téglalakás

Szeged

80.9 M Ft
3 szoba
64 m2
Eladó téglalakás
Eladó téglalakás

Szeged

74.9 M Ft
3 szoba
57 m2
Eladó téglalakás
Eladó téglalakás

Szeged

52.9 M Ft
3 szoba
48 m2
Eladó téglalakás
Eladó téglalakás

Szeged

79.9 M Ft
2 szoba
63 m2
Eladó téglalakás
Eladó téglalakás

Kistelek, Kossuth utca

22.5 M Ft
71 m2
Eladó téglalakás
Eladó téglalakás

Szeged

119.9 M Ft
5 szoba
118 m2
Eladó téglalakás
Eladó téglalakás

Szeged

139.065 M Ft
4 szoba
176 m2

Falusi CSOK ingatlanok

Eladó családi ház
Eladó családi ház

Enese

82.9 M Ft
4 szoba
90 m2
Eladó családi ház
Eladó családi ház

Örkény

52.606 M Ft
3 szoba
109 m2
Eladó családi ház
Eladó családi ház

Kaposgyarmat

695 M Ft
6 szoba
610 m2
Eladó családi ház
Eladó családi ház

Dunaalmás

52.5 M Ft
3 + 1 szoba
140 m2
Eladó családi ház
Eladó családi ház

Pápakovácsi

33 M Ft
3 szoba
87 m2
Eladó családi ház
Eladó családi ház

Somogyaszaló

59.9 M Ft
3 szoba
180 m2
Eladó családi ház
Eladó családi ház

Magyarszék

48.5 M Ft
3 + 1 szoba
86 m2
Eladó családi ház
Eladó családi ház

Segesd

79.9 M Ft
8 szoba
500 m2