Eladó téglalakás
Szeged, földszint

+ 9 kép 1/12
59 900 000 Ft59.9 M Ft 1 130 189 Ft/m2
2 szoba
53 m2
földszint
építés éve:1975

Részletes adatok

Állapot: Felújított
Fűtés: Gázkazán
Energetikai besorolás: Nem adta meg a hirdető

Az OTP Bank lakáshitel ajánlataFizetett hirdetés

+36 70 358
Jancsovics-Andó Bernadett
referens

Érdekel az OTP Bank kedvezményes lakáshitel ajánlata? *

* A kérdésre „Igen” válasz bejelölése esetén, az „Üzenet küldése” gombra kattintva kijelentem, hogy az OTP Bank Nyrt. Adatkezelési tájékoztatójának tartalmát megismertem és tudomásul vettem.

Eladó téglalakás leírása

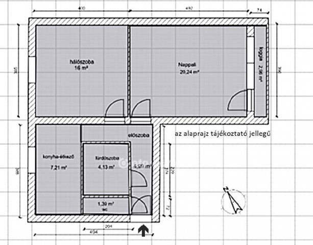
Szegeden 2 szobás frissen felújított téglalakás loggiával eladó!
Az 55 nm hasznos alapterülettel rendelkező földszinti lakás felújítása során az áramellátás bővítése 24 A áramerősségű biztosítékokkal és a vezetékek cseréjével megtörtént. Központi fűtésrendszer biztosítja az otthon melegét, melyhez korszerű gázkazán és lapradiátorok lettek felszerelve. Nyílászárói kétrétegű hőszigetelt műanyag ablakok, részben redőnnyel felszereltek; a bejárat több ponton záródó biztonsági ajtóval szerelt.
Új konyha és fürdőszoba, valamint a burkolatok teljes cseréje zajlik, így komoly érdeklődés esetén még a végleges kialakítás a vevő igényeivel összhangba hozhatók.
A lakás egy 3x14 lakásos társasházban található, egymást segítő, összetartó közösséggel, rendezett lépcsőházzal és barátságos fákkal teli kialakult környezetben. A társasház kezelését felkészült csapat viszi, professzionális mindenre kiterjedő gondossággal. A ház külső szigetelése a korábbi évek során megtörtént.
Az ingatlan kitűnő infrastruktúrával bír, óvoda, iskola, játszótér, orvosi rendelők, bevásárlási lehetőségek és a tömegközlekedési eszközök is rövid sétával elérhetők.
Az ingatlan kitűnő választás akár fiataloknak, vagy kisgyermekes család számára, de az idősebb korosztály is nyugodt, kellemes otthonra találhat ebben a szép lakásban.
Az ingatlan megvásárlásához az OTP finanszírozási megoldásait ajánlom. Otthon Start, vagy Babaváró hitel, vagy OTP Évnyerő lakáshitel is igénybe vehető, melyek intézéséhez szakszerű segítséggel állok a vevő rendelkezésére.

Referencia szám: M312183-ZE

Hirdetés feltöltve: 2025. 10. 19. Utoljára módosítva: 2025. 10. 19.

2 szobás téglalakások ára Szegeden

Ebből az összehasonlításból megtudhatod, hogyan viszonyul a lakás ára a környékbeli téglalakások átlagos árához. Ez nem azt jelenti, hogy ennyivel olcsóbb vagy drágább, mint amennyit a lakás ér, hanem hogy ennyivel tér el a környékbeli átlagtól.

Ennek a m² ára
Szeged m² ár
1130 e Ft
860 e Ft -31%
Ennek az ára
Szeged átlagár
59.9 M Ft m Ft
115.7 m Ft 48%

Az ingatlan elhelyezkedése

Cím: Szeged, földszint

Eladó téglalakások a környékről

Eladó téglalakás
Eladó téglalakás

Kistelek, Kossuth utca

22.5 M Ft
71 m2
Eladó téglalakás
Eladó téglalakás

Szeged, Belváros, Bakay Nándor utca

229.9 M Ft
2 + 2 szoba
196 m2
Eladó téglalakás
Eladó téglalakás

Szeged

52.9 M Ft
3 szoba
48 m2
Eladó téglalakás
Eladó téglalakás

Szeged

149 M Ft
4 + 1 szoba
132 m2
Eladó téglalakás
Eladó téglalakás

Szeged

599.999 M Ft
4 szoba
302 m2
Eladó téglalakás
Eladó téglalakás

Szeged

79.9 M Ft
2 szoba
63 m2
Eladó téglalakás
Eladó téglalakás

Deszk

44.9 M Ft
2 szoba
66 m2
Eladó téglalakás
Eladó téglalakás

Deszk

44.9 M Ft
3 szoba
66 m2
Eladó téglalakás
Eladó téglalakás

Szeged

52.9 M Ft
3 szoba
48 m2
Eladó téglalakás
Eladó téglalakás

Szeged

39.9 M Ft
2 szoba
32 m2
Eladó téglalakás
Eladó téglalakás

Szeged

149 M Ft
4 + 1 szoba
132 m2
Eladó téglalakás
Eladó téglalakás

Szeged

114.9 M Ft
4 + 1 szoba
261 m2
Eladó téglalakás
Eladó téglalakás

Hódmezővásárhely, Belváros, Andrássy utca

10.5 M Ft
380 m2
Eladó téglalakás
Eladó téglalakás

Szeged

73.9 M Ft
3 szoba
66 m2
Eladó téglalakás
Eladó téglalakás

Szeged

114.9 M Ft
4 + 1 szoba
261 m2
Eladó téglalakás
Eladó téglalakás

Szeged

109.9 M Ft
3 szoba
91 m2
Eladó téglalakás
Eladó téglalakás

Szeged

99.99 M Ft
4 szoba
104 m2
Eladó téglalakás
Eladó téglalakás

Szeged

34.9 M Ft
2 szoba
52 m2
Eladó téglalakás
Eladó téglalakás

Szeged

139 M Ft
3 szoba
136 m2
Eladó téglalakás
Eladó téglalakás

Szeged

84.9 M Ft
3 szoba
82 m2
Eladó téglalakás
Eladó téglalakás

Szeged

142.715 M Ft
4 szoba
176 m2
Eladó téglalakás
Eladó téglalakás

Szeged, Londoni körút

59.9 M Ft
2 szoba
55 m2
Eladó téglalakás
Eladó téglalakás

Szeged

142.715 M Ft
4 szoba
176 m2
Eladó téglalakás
Eladó téglalakás

Szeged

73.9 M Ft
3 szoba
66 m2

Falusi CSOK ingatlanok

Eladó családi ház
Eladó családi ház

Ceglédbercel

45 M Ft
2 + 1 szoba
127 m2
Eladó ikerház
Eladó ikerház

Besnyő

79.6 M Ft
5 szoba
117 m2
Eladó családi ház
Eladó családi ház

Nyékládháza

45 M Ft
3 szoba
90 m2
Eladó családi ház
Eladó családi ház

Kaposgyarmat

5.9 M Ft
1 szoba
40 m2
Eladó családi ház
Eladó családi ház

Böhönye, Dózsa körút

20.9 M Ft
5 + 1 szoba
127 m2
Eladó családi ház
Eladó családi ház

Szil

25 M Ft
2 szoba
90 m2
Eladó családi ház
Eladó családi ház

Szilvágy

49.99 M Ft
3 szoba
90 m2
Eladó családi ház
Eladó családi ház

Tök

125.4 M Ft
4 szoba
135 m2