Eladó téglalakás
Szeged, 3. emelet
Részletes adatok
Az OTP Bank lakáshitel ajánlataFizetett hirdetés
Induló törlesztőrészlet
101 262 Ft /hóTörlesztőrészlet a 13. hónaptól
129 106 Ft /hóInduló törlesztőrészlet
135 016 Ft /hóTörlesztőrészlet a 13. hónaptól
172 142 Ft /hóA tájékoztatás nem teljes körű és nem minősül ajánlattételnek. Az OTP Évnyerő Lakáshitelei 1 éves türelmi idős kölcsönök, amellyel az első 12 hónapban alacsonyabb a havi törlesztőrészlet. A tőke törlesztését a 13. hónaptól kell megkezdeni.

Eladó téglalakás leírása
Örökzöld Lakópark – a II. ütem lakásai már leköthetők!
A II. ütem lakásait kínáljuk eladásra , ahol 36-61 m² közötti alapterületű, erkélyes otthonok közül választhat. A kisebb lakások különösen népszerűek a befektetők körében, hiszen gyorsan és könnyen kiadhatók, de tökéletesek fiatal pároknak első otthonként vagy idősebbeknek is, mivel az épület teljesen akadálymentesített és liftes.
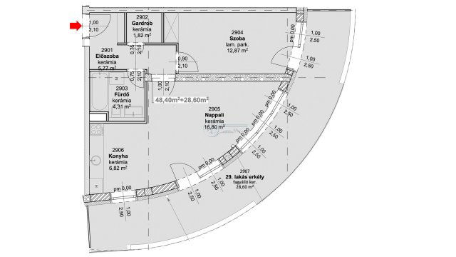
Ez a 29.jelű lakás a 3. emeleten helyezkedik el és 48,40 nm alapterülettel + 28,60 nm erkéllyel rendelkezik.
Főbb jellemzők:
-modern, energiatakarékos műszaki tartalom
-hőszivattyús rendszer + kondenzációs kazán az optimális energia felhasználás miatt
-lakásokon belül padlófűtés + klíma biztosítja a kellemes komfortot
-15 cm homlokzati hőszigetelés
-3 rétegű, 6 légkamrás nyílászárók
-minden lakás saját helyrajzi számmal rendelkezik
-teremgarázs (akár elektromos autó töltési lehetőséggel is) és autóbeálló vásárolható (beálló: 5 M Ft, teremgarázs: 10-13 M Ft)
-most még egyedi igényeket is figyelembe tudnak venni, pl. a fürdőszobában kád vagy tusoló is kérhető
-illetékmentes vásárlás
Lokáció előnyei:
A lakópark csendes, zöldövezeti részen épül, mégis közel a belvároshoz.
-pár perc sétára a Liget és a belváros
-közelben uszoda, gyógyszertár, kisebb boltok
-könnyen elérhető tömegközlekedéssel
Ideális választás:
-Befektetőknek: a kisebb alapterületű lakások gyorsan kiadhatók, magas kereslet van rájuk
-Fiatal pároknak, első lakásnak: elérhető ár-érték arány, modern otthon, jó közlekedés
-Idősebbeknek: akadálymentesített épület, lift, biztonságos környezet, közel minden fontos szolgáltatás
-Családoknak: tágasabb lakások nagy erkélyekkel, kényelmes élettér biztonságos közegben
A projekt kulcsrakész átadása várhatóan 2026 nyarán történik. A fizetés szakaszos, az építkezés jelenlegi állapotában (jelenleg a 2.szint falazása kezdődik) építési hitel is igénybe vehető .
Az I. ütem lakásai már kulcsrakész állapotban elkészültek, - a használatbavételi engedélyük folyamatban van-, ezek referenciaként megtekinthetőek, így biztos lehet abban, hogy amit választ, az minőségi kivitelezés lesz.
Amennyiben a vásárláshoz hitelre van szüksége, bank független hiteltanácsadónk az összes hazai bank ajánlatát versenyezteti az Ön igényeire szabva, díjmentesen.
Bővebb információért és megtekintésért keressen bizalommal!
Hirdetés feltöltve: 2025. 10. 09.
3 szobás téglalakások ára Szegeden
Ebből az összehasonlításból megtudhatod, hogyan viszonyul a lakás ára a környékbeli téglalakások átlagos árához. Ez nem azt jelenti, hogy ennyivel olcsóbb vagy drágább, mint amennyit a lakás ér, hanem hogy ennyivel tér el a környékbeli átlagtól.
Az ingatlan elhelyezkedése
Cím: Szeged, 3. emelet