Avico

Eladó téglalakás
Szeged, 1. emelet

+ 6 kép 1/9
86 874 900 Ft86.875 M Ft 1 241 070 Ft/m2
3 szoba
70 m2
1. emelet
építés éve:2027

Részletes adatok

Fűtés: Egyéb
Parkolás: Garázs
Energetikai besorolás: Nem adta meg a hirdető

Az OTP Bank lakáshitel ajánlataFizetett hirdetés

+36 30 628
Kádár Zoltán László
referens

Érdekel az OTP Bank kedvezményes lakáshitel ajánlata? *

* A kérdésre „Igen” válasz bejelölése esetén, az „Üzenet küldése” gombra kattintva kijelentem, hogy az OTP Bank Nyrt. Adatkezelési tájékoztatójának tartalmát megismertem és tudomásul vettem.

Eladó téglalakás leírása

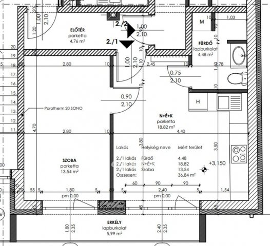
Szeged, Móraváros, 70,6 m2-es, 3 szobás, 1. emeleti, újépítésű téglalakás, tulajdonos-kivitelezőtől, 20% kezdő befizetéssel eladó. A kulcsrakész átadás tervezett időpontja: 2027.06.30. A lakásban amerikai konyhás nappali, 2 szoba, fürdőszoba, wc és erkély található. A szobák laminált parketta-, a többi helyiség járólap burkolatot kapnak. Az otthon melegét hőszivattyús fűtés biztosítja. A lakáshoz opcionálisan, udvari beálló, vagy garázs is vásárolható. A TIK, egyetemi épületek, klinikák és tömegközlekedési megállók mindössze pár perc sétára találhatók, ezért rendkívül kedvező lehetőség lehet, befektetők és diákok számára is. Az ingatlan megvásárlásához kedvező hitel is igényelhető, melynek intézéséhez szakszerű segítség áll a leendő vásárló rendelkezésére.

Hirdetés feltöltve: 2025. 08. 28. Utoljára módosítva: 2025. 09. 17.

3 szobás téglalakások ára Szegeden

Ebből az összehasonlításból megtudhatod, hogyan viszonyul a lakás ára a környékbeli téglalakások átlagos árához. Ez nem azt jelenti, hogy ennyivel olcsóbb vagy drágább, mint amennyit a lakás ér, hanem hogy ennyivel tér el a környékbeli átlagtól.

Ennek a m² ára
Szeged m² ár
1241 e Ft
1101 e Ft -13%
Ennek az ára
Szeged átlagár
86.875 M Ft m Ft
83.1 m Ft -4%

Az ingatlan elhelyezkedése

Cím: Szeged, 1. emelet

Eladó téglalakások a környékről

Eladó téglalakás
Eladó téglalakás

Szeged

142.715 M Ft
4 szoba
176 m2
Eladó téglalakás
Eladó téglalakás

Szeged

39.9 M Ft
2 szoba
32 m2
Eladó téglalakás
Eladó téglalakás

Szeged

99.99 M Ft
4 szoba
104 m2
Eladó téglalakás
Eladó téglalakás

Szeged

599.999 M Ft
4 szoba
302 m2
Eladó téglalakás
Eladó téglalakás

Hódmezővásárhely, Belváros, Andrássy utca

10.5 M Ft
380 m2
Eladó téglalakás
Eladó téglalakás

Szeged

39.9 M Ft
2 szoba
32 m2
Eladó téglalakás
Eladó téglalakás

Szeged

79.9 M Ft
3 szoba
71 m2
Eladó téglalakás
Eladó téglalakás

Szeged

39.9 M Ft
2 szoba
32 m2
Eladó téglalakás
Eladó téglalakás

Szeged

84.9 M Ft
3 szoba
82 m2
Eladó téglalakás
Eladó téglalakás

Szeged

99.99 M Ft
4 szoba
104 m2
Eladó téglalakás
Eladó téglalakás

Szeged

69.9 M Ft
3 szoba
71 m2
Eladó téglalakás
Eladó téglalakás

Szeged

114.9 M Ft
4 + 1 szoba
261 m2
Eladó téglalakás
Eladó téglalakás

Szeged

79.9 M Ft
2 szoba
63 m2
Eladó téglalakás
Eladó téglalakás

Szeged

73.9 M Ft
3 szoba
66 m2
Eladó téglalakás
Eladó téglalakás

Szeged, Belváros, Bakay Nándor utca

229.9 M Ft
2 + 2 szoba
196 m2
Eladó téglalakás
Eladó téglalakás

Szeged

79.9 M Ft
3 szoba
86 m2
Eladó téglalakás
Eladó téglalakás

Szeged

109.9 M Ft
3 szoba
91 m2
Eladó téglalakás
Eladó téglalakás

Szeged

109.9 M Ft
3 szoba
91 m2
Eladó téglalakás
Eladó téglalakás

Szeged

70.9 M Ft
3 szoba
70 m2
Eladó téglalakás
Eladó téglalakás

Szeged

52.9 M Ft
3 szoba
48 m2
Eladó téglalakás
Eladó téglalakás

Szeged

69.9 M Ft
3 szoba
71 m2
Eladó téglalakás
Eladó téglalakás

Szeged

119.9 M Ft
5 szoba
118 m2
Eladó téglalakás
Eladó téglalakás

Szeged

114.9 M Ft
4 + 1 szoba
261 m2
Eladó téglalakás
Eladó téglalakás

Deszk

44.9 M Ft
3 szoba
66 m2

Falusi CSOK ingatlanok

Eladó családi ház
Eladó családi ház

Ságvár

73.89 M Ft
3 szoba
70 m2
Eladó családi ház
Eladó családi ház

Hegyeshalom

85 M Ft
4 + 1 szoba
123 m2
Eladó családi ház
Eladó családi ház

Seregélyes

75 M Ft
6 szoba
160 m2
Eladó családi ház
Eladó családi ház

Ágasegyháza

29.7 M Ft
3 szoba
75 m2
Eladó családi ház
Eladó családi ház

Ádánd

55.5 M Ft
6 szoba
180 m2
Eladó családi ház
Eladó családi ház

Tiszaroff

13.9 M Ft
2 szoba
81 m2
Eladó családi ház
Eladó családi ház

Csemő

25.9 M Ft
2 szoba
69 m2
Eladó családi ház
Eladó családi ház

Szentmártonkáta

43.9 M Ft
6 szoba
137 m2