Metrodom

Eladó téglalakás
Szeged, 3. emelet

+ 2 kép 1/5
75 588 500 Ft75.589 M Ft 3 023 540 Ft/m2
1 szoba
25 m2
3. emelet
építés éve:2026

Részletes adatok

Fűtés: Geotermikus
Energetikai besorolás: Nem adta meg a hirdető

Az OTP Bank lakáshitel ajánlataFizetett hirdetés

+36 70 615
Csuka Bonita Zsófia
Szeged Széchenyi tér 6 - OTP Ingatlanpont Iroda

Érdekel az OTP Bank kedvezményes lakáshitel ajánlata? *

* A kérdésre „Igen” válasz bejelölése esetén, az „Üzenet küldése” gombra kattintva kijelentem, hogy az OTP Bank Nyrt. Adatkezelési tájékoztatójának tartalmát megismertem és tudomásul vettem.

Eladó téglalakás leírása

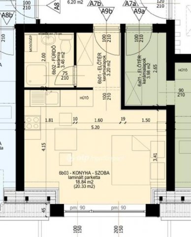
Szeged, Alsóváros, 25,5 m2-es, amerikaikonyhás nappalis, 3. emeleti, újépítésű téglalakás, tulajdonos-kivitelezőtől, 30% kezdő befizetéssel eladó. A kulcsrakész átadás tervezett időpontja: 2026.12.31. A lakásban amerikaikonyhás nappali és fürdőszoba található. A szoba laminált parketta-, a többi helyiség járólap burkolatot kapnak. Az otthon melegét geotermikus fűtés biztosítja. A lakáshoz opcionálisan, udvari beálló, vagy garázs is vásárolható. A TIK, egyetemi épületek, klinikák és tömegközlekedési megállók mindössze pár perc sétára találhatók, ezért rendkívül kedvező lehetőség lehet, befektetők és diákok számára is. Az ingatlan megvásárlásához kedvező hitel is igényelhető, melynek intézéséhez szakszerű segítség áll a leendő vásárló rendelkezésére.

Hirdetés feltöltve: 2025. 06. 18. Utoljára módosítva: 2025. 12. 09.

1 szobás téglalakások ára Szegeden

Ebből az összehasonlításból megtudhatod, hogyan viszonyul a lakás ára a környékbeli téglalakások átlagos árához. Ez nem azt jelenti, hogy ennyivel olcsóbb vagy drágább, mint amennyit a lakás ér, hanem hogy ennyivel tér el a környékbeli átlagtól.

Ennek a m² ára
Szeged m² ár
3024 e Ft
1033 e Ft -193%
Ennek az ára
Szeged átlagár
75.589 M Ft m Ft
35.3 m Ft -114%

Az ingatlan elhelyezkedése

Cím: Szeged, 3. emelet

Eladó téglalakások a környékről

Eladó téglalakás
Eladó téglalakás

Szeged

119.9 M Ft
5 szoba
118 m2
Eladó téglalakás
Eladó téglalakás

Szeged

84.9 M Ft
3 szoba
82 m2
Eladó téglalakás
Eladó téglalakás

Szeged

34.9 M Ft
2 szoba
52 m2
Eladó téglalakás
Eladó téglalakás

Szeged

149 M Ft
4 + 1 szoba
132 m2
Eladó téglalakás
Eladó téglalakás

Szeged

79.9 M Ft
2 szoba
63 m2
Eladó téglalakás
Eladó téglalakás

Szeged

34.9 M Ft
2 szoba
52 m2
Eladó téglalakás
Eladó téglalakás

Szeged

119.9 M Ft
5 szoba
118 m2
Eladó téglalakás
Eladó téglalakás

Szeged

71.5 M Ft
3 szoba
71 m2
Eladó téglalakás
Eladó téglalakás

Szeged, Belváros, Bakay Nándor utca

209.9 M Ft
2 + 2 szoba
196 m2
Eladó téglalakás
Eladó téglalakás

Szeged

80.9 M Ft
3 szoba
64 m2
Eladó téglalakás
Eladó téglalakás

Szeged

70.9 M Ft
3 szoba
70 m2
Eladó téglalakás
Eladó téglalakás

Szeged

139 M Ft
3 szoba
136 m2
Eladó téglalakás
Eladó téglalakás

Szeged

73.9 M Ft
3 szoba
66 m2
Eladó téglalakás
Eladó téglalakás

Szeged

70.9 M Ft
3 szoba
70 m2
Eladó téglalakás
Eladó téglalakás

Szeged

52.9 M Ft
3 szoba
48 m2
Eladó téglalakás
Eladó téglalakás

Szeged

114.9 M Ft
4 + 1 szoba
261 m2
Eladó téglalakás
Eladó téglalakás

Kistelek, Kossuth utca

58 M Ft
3 szoba
115 m2
Eladó téglalakás
Eladó téglalakás

Szeged

39.9 M Ft
2 szoba
32 m2
Eladó téglalakás
Eladó téglalakás

Szeged

139.065 M Ft
4 szoba
176 m2
Eladó téglalakás
Eladó téglalakás

Szeged

114.9 M Ft
4 + 1 szoba
261 m2
Eladó téglalakás
Eladó téglalakás

Szeged

74.9 M Ft
3 szoba
57 m2
Eladó téglalakás
Eladó téglalakás

Szeged

149 M Ft
4 + 1 szoba
132 m2
Eladó téglalakás
Eladó téglalakás

Hódmezővásárhely, Belváros, Andrássy utca

10.5 M Ft
380 m2
Eladó téglalakás
Eladó téglalakás

Szeged

99.99 M Ft
4 szoba
104 m2

Falusi CSOK ingatlanok

Eladó családi ház
Eladó családi ház

Tápióság

17 M Ft
1 szoba
44 m2
Eladó családi ház
Eladó családi ház

Fertőd

189.9 M Ft
4 szoba
175 m2
Eladó családi ház
Eladó családi ház

Söpte

94.9 M Ft
4 szoba
94 m2
Eladó családi ház
Eladó családi ház

Dunaszentbenedek

24.9 M Ft
2 szoba
85 m2
Eladó családi ház
Eladó családi ház

Vaskút

64 M Ft
5 szoba
180 m2
Eladó családi ház
Eladó családi ház

Tápiógyörgye

32 M Ft
3 szoba
86 m2
Eladó családi ház
Eladó családi ház

Nagybörzsöny

79.9 M Ft
4 szoba
149 m2
Eladó családi ház
Eladó családi ház

Segesd

3.9 M Ft
2 szoba
65 m2