Astora Olive Club House

Eladó téglalakás
Siófok, 1. emelet

+ 10 kép 1/13
83 500 000 Ft83.5 M Ft 1 265 152 Ft/m2
3 szoba
66 m2
1. emelet
építés éve:2019

Részletes adatok

Állapot: Újszerű
Fűtés: Házközponti egyedi méréssel
Extrák: Lift
Energetikai besorolás: Nem adta meg a hirdető

Az OTP Bank lakáshitel ajánlataFizetett hirdetés

+36 70 942
Kalmár Edit Virág
Szeged Széchenyi tér 6 - OTP Ingatlanpont Iroda

Érdekel az OTP Bank kedvezményes lakáshitel ajánlata? *

* A kérdésre „Igen” válasz bejelölése esetén, az „Üzenet küldése” gombra kattintva kijelentem, hogy az OTP Bank Nyrt. Adatkezelési tájékoztatójának tartalmát megismertem és tudomásul vettem.

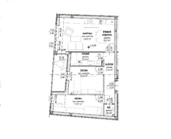
Eladó téglalakás leírása

Siófok belvárosában kínálok megvételre egy 66 m2-es erkélyes lakást. A lakás állandó lakhatásra és kiadásra is kiválóan alkalmas. A szabadstrand, a Plázs és a városközpont egyaránt 600 méteren belül elérhető. Posta, tömegközlekedési pályaudvarok, gyógyszertárak, orvosi rendelők, élelmiszer üzletek, színház, mozi, óvodák, általános iskolák, gimnázium 1 kilométeres távolságon belül vannak.
A lakás átlag feletti minőségi és esztétikai szintet képvisel, a mérete 66 m2. Helyiségei: 2 hálószoba, amerikai konyhás nappali, fürdő, wc, közlekedő, erkély. Az épület 2019-ben épült, lift van.
A fűtést házközponti fűtésrendszer biztosítja, egyedi almérővel.
A lakás teljesen felszerelt, klimatizált. A berendezések, bútorok, külön megállapodás részét képezik.

Hirdetés feltöltve: 2025. 12. 06. Utoljára módosítva: 2025. 12. 06.

3 szobás téglalakások ára Siófokon

Ebből az összehasonlításból megtudhatod, hogyan viszonyul a lakás ára a környékbeli téglalakások átlagos árához. Ez nem azt jelenti, hogy ennyivel olcsóbb vagy drágább, mint amennyit a lakás ér, hanem hogy ennyivel tér el a környékbeli átlagtól.

Ennek a m² ára
Siófok m² ár
1265 e Ft
1673 e Ft 24%
Ennek az ára
Siófok átlagár
83.5 M Ft m Ft
123.6 m Ft 32%

Az ingatlan elhelyezkedése

Cím: Siófok, 1. emelet

Eladó téglalakások a környékről

Eladó téglalakás
Eladó téglalakás

Siófok

83.5 M Ft
3 szoba
66 m2
Eladó téglalakás
Eladó téglalakás

Siófok

122 M Ft
3 szoba
65 m2
Eladó téglalakás
Eladó téglalakás

Siófok

112.2 M Ft
3 szoba
62 m2
Eladó téglalakás
Eladó téglalakás

Siófok

124.95 M Ft
3 szoba
60 m2
Eladó téglalakás
Eladó téglalakás

Balatonfenyves

79 M Ft
1 szoba
35 m2
Eladó téglalakás
Eladó téglalakás

Siófok

232.9 M Ft
4 szoba
125 m2
Eladó téglalakás
Eladó téglalakás

Siófok, Ezustparti utca

84.9 M Ft
3 szoba
58 m2
Eladó téglalakás
Eladó téglalakás

Balatonfenyves

129.5 M Ft
3 szoba
67 m2
Eladó téglalakás
Eladó téglalakás

Siófok, Ezustparti utca

86.9 M Ft
3 szoba
60 m2
Eladó téglalakás
Eladó téglalakás

Siófok

139.4 M Ft
3 szoba
62 m2
Eladó téglalakás
Eladó téglalakás

Balatonfenyves

938.75 M Ft
3 szoba
145 m2
Eladó téglalakás
Eladó téglalakás

Siófok, Ezustparti utca

76.4 M Ft
3 szoba
58 m2
Eladó téglalakás
Eladó téglalakás

Balatonfenyves

149 M Ft
2 szoba
59 m2
Eladó téglalakás
Eladó téglalakás

Siófok

140.25 M Ft
3 szoba
64 m2
Eladó téglalakás
Eladó téglalakás

Balatonfenyves

109 M Ft
2 szoba
45 m2
Eladó téglalakás
Eladó téglalakás

Siófok

351.9 M Ft
4 szoba
112 m2
Eladó téglalakás
Eladó téglalakás

Siófok

54.49 M Ft
2 szoba
41 m2
Eladó téglalakás
Eladó téglalakás

Balatonfenyves

191.4 M Ft
3 szoba
66 m2
Eladó téglalakás
Eladó téglalakás

Siófok

117.3 M Ft
3 szoba
62 m2
Eladó téglalakás
Eladó téglalakás

Siófok

122 M Ft
3 szoba
65 m2
Eladó téglalakás
Eladó téglalakás

Balatonfenyves

124.9 M Ft
3 szoba
67 m2
Eladó téglalakás
Eladó téglalakás

Siófok

49.9 M Ft
2 szoba
41 m2
Eladó téglalakás
Eladó téglalakás

Siófok

49.9 M Ft
2 szoba
41 m2
Eladó téglalakás
Eladó téglalakás

Balatonfenyves

563.75 M Ft
4 szoba
114 m2

Falusi CSOK ingatlanok

Eladó családi ház
Eladó családi ház

Kenyeri

21.8 M Ft
2 szoba
75 m2
Eladó családi ház
Eladó családi ház

Örkény

36.5 M Ft
2 szoba
56 m2
Eladó családi ház
Eladó családi ház

Csengőd

34 M Ft
2 szoba
81 m2
Eladó családi ház
Eladó családi ház

Törtel

25.9 M Ft
5 szoba
95 m2
Eladó családi ház
Eladó családi ház

Helesfa

17.999 M Ft
2 szoba
74 m2
Eladó családi ház
Eladó családi ház

Gáborján

5.5 M Ft
2 szoba
68 m2
Eladó családi ház
Eladó családi ház

Fertőd

189.9 M Ft
4 szoba
175 m2
Eladó családi ház
Eladó családi ház

Bugac

55 M Ft
3 szoba
90 m2