Seven Pearl

Eladó téglalakás
Siófok

+ 12 kép 1/15
149 000 000 Ft149 M Ft 1 071 942 Ft/m2
4 szoba
139 m2
építés éve:2025

Részletes adatok

Fűtés: Gázkazán
Parkolás: Garázs
Energetikai besorolás: Nem adta meg a hirdető

Az OTP Bank lakáshitel ajánlataFizetett hirdetés

+36 70 455
Katona Márton
OTP Ingatlanpont Siófok

Érdekel az OTP Bank kedvezményes lakáshitel ajánlata? *

* A kérdésre „Igen” válasz bejelölése esetén, az „Üzenet küldése” gombra kattintva kijelentem, hogy az OTP Bank Nyrt. Adatkezelési tájékoztatójának tartalmát megismertem és tudomásul vettem.

Eladó téglalakás leírása

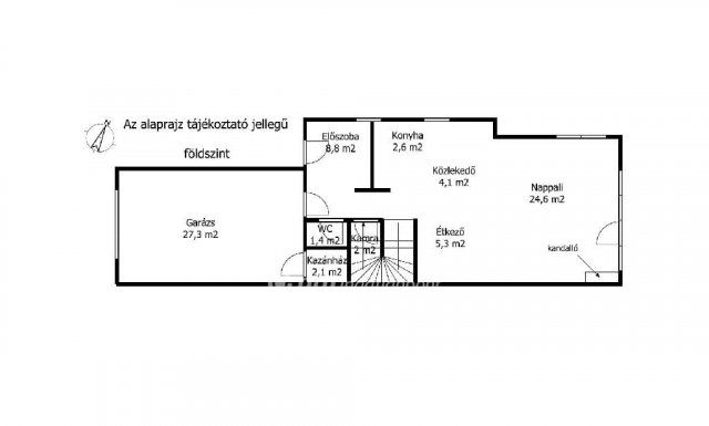
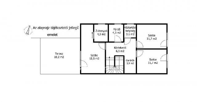
Siófok kedvelt Foki-hegy városrészében kínálom megvételre ezt az új építésű, igényes kivitelezésű ikerházfelet, amely a Balaton déli partjának egyik dinamikusan fejlődő környezetében helyezkedik el, 432 nm-es, saját használatú telekrészen, befejezett állapotban. Az ingatlan földszintjén tágas, amerikai konyhás nappali, emellett háztartási helyiség és éléskamra szolgálja a mindennapi kényelmet, míg az emeleti szinten három különálló hálószoba és három, magas műszaki tartalommal megvalósított fürdőszoba került kialakításra, továbbá lehetőség nyílik egy különálló, teljes értékű lakrész kialakítására is, akár kétgenerációs felhasználás céljából.

Az épület megtervezése során a kivitelező nagy hangsúlyt fektetett a minőségi alapanyagokra, amelyet a duplasoros SILKA hangszigetelő falazat, a porotherm 30-as külső falazat 15 cm hőszigeteléssel, valamint a háromrétegű üvegezésű nyílászárók is bizonyítanak. Az otthon komfortját a gázkazános padlófűtés, a négy darab hőszivattyús hűtő-fűtő klíma, a nappaliban található exkluzív, fatüzelésű kandalló, továbbá az elektromos redőnyökkel felszerelt nyílászárók, illetve az elektromos működtetésű garázs- és kertkapuk biztosítják, miközben a földszinti garázs mellett külön második gépkocsi-beállási lehetőség is rendelkezésre áll.

A három terasz - a Balatonra néző nyugati emeleti terasz, a hátsó emeleti pihenőrész, valamint a földszinti kertkapcsolatos terasz - kivételes lehetőséget nyújt a pihenésre és a balatoni hangulat mindennapos megélésére. Az ingatlan rendelkezik használatbavételi engedéllyel, tehermentes, azonnal birtokba vehető, így akár állandó lakhatásra, akár nyaralóként is ideális választás lehet, ráadásul az ikerház másik fele szintén elérhető azon érdeklődők számára, akik nagyobb családi vagy befektetési célban gondolkodnak. A közelben általános iskola és hipermarket is megtalálható, ami tovább növeli a lokáció értékét. Az OTP Bank stabil hátterének köszönhetően kollégáink díjmentes, személyre szabott hitel- és támogatási tanácsadással és ügyintézéssel állnak rendelkezésére.

Megtekintés egyeztetéséhez várom megtisztelő hívását.

Hirdetés feltöltve: 2025. 11. 20. Utoljára módosítva: 2025. 11. 25.

4 szobás téglalakások ára Siófokon

Ebből az összehasonlításból megtudhatod, hogyan viszonyul a lakás ára a környékbeli téglalakások átlagos árához. Ez nem azt jelenti, hogy ennyivel olcsóbb vagy drágább, mint amennyit a lakás ér, hanem hogy ennyivel tér el a környékbeli átlagtól.

Ennek a m² ára
Siófok m² ár
1072 e Ft
1565 e Ft 31%
Ennek az ára
Siófok átlagár
149 M Ft m Ft
155.1 m Ft 4%

Az ingatlan elhelyezkedése

Cím: Siófok

Eladó téglalakások a környékről

Eladó téglalakás
Eladó téglalakás

Siófok

115.6 M Ft
2 szoba
48 m2
Eladó téglalakás
Eladó téglalakás

Balatonfenyves

563.75 M Ft
4 szoba
114 m2
Eladó téglalakás
Eladó téglalakás

Siófok

54.99 M Ft
1 szoba
41 m2
Eladó téglalakás
Eladó téglalakás

Balatonfenyves

109 M Ft
2 szoba
45 m2
Eladó téglalakás
Eladó téglalakás

Siófok, Ezustparti utca

76.4 M Ft
3 szoba
58 m2
Eladó téglalakás
Eladó téglalakás

Balatonfenyves

135.05 M Ft
2 szoba
59 m2
Eladó téglalakás
Eladó téglalakás

Siófok

117.3 M Ft
3 szoba
62 m2
Eladó téglalakás
Eladó téglalakás

Siófok

83.5 M Ft
3 szoba
66 m2
Eladó téglalakás
Eladó téglalakás

Siófok, Ezustparti utca

86.9 M Ft
3 szoba
60 m2
Eladó téglalakás
Eladó téglalakás

Balatonfenyves

78 M Ft
1 szoba
35 m2
Eladó téglalakás
Eladó téglalakás

Siófok

54.99 M Ft
1 szoba
41 m2
Eladó téglalakás
Eladó téglalakás

Siófok

139.4 M Ft
3 szoba
62 m2
Eladó téglalakás
Eladó téglalakás

Balatonfenyves

938.75 M Ft
3 szoba
145 m2
Eladó téglalakás
Eladó téglalakás

Siófok

49.9 M Ft
2 szoba
41 m2
Eladó téglalakás
Eladó téglalakás

Siófok

49.9 M Ft
2 szoba
41 m2
Eladó téglalakás
Eladó téglalakás

Siófok, Ezustparti utca

84.9 M Ft
3 szoba
58 m2
Eladó téglalakás
Eladó téglalakás

Balatonfenyves

218.75 M Ft
2 szoba
66 m2
Eladó téglalakás
Eladó téglalakás

Siófok

103.7 M Ft
2 szoba
49 m2
Eladó téglalakás
Eladó téglalakás

Siófok

119 M Ft
3 szoba
64 m2
Eladó téglalakás
Eladó téglalakás

Balatonszemes, Ady E. utca 6

132.9 M Ft
3 szoba
62 m2
Eladó téglalakás
Eladó téglalakás

Siófok

122 M Ft
3 szoba
65 m2
Eladó téglalakás
Eladó téglalakás

Balatonfenyves

79 M Ft
1 szoba
35 m2
Eladó téglalakás
Eladó téglalakás

Balatonfenyves

127.65 M Ft
2 szoba
51 m2
Eladó téglalakás
Eladó téglalakás

Balatonfenyves

115.625 M Ft
2 szoba
51 m2

Falusi CSOK ingatlanok

Eladó családi ház
Eladó családi ház

Szepetnek

34.9 M Ft
4 szoba
87 m2
Eladó családi ház
Eladó családi ház

Jakabszállás

69.99 M Ft
1 + 4 szoba
91 m2
Eladó családi ház
Eladó családi ház

Tiszatenyő

13.99 M Ft
2 szoba
63 m2
Eladó családi ház
Eladó családi ház

Szabadkígyós

28 M Ft
3 szoba
93 m2
Eladó családi ház
Eladó családi ház

Alcsútdoboz, Külterület

27 M Ft
2 szoba
57 m2
Eladó családi ház
Eladó családi ház

Lesenceistvánd

75 M Ft
2 szoba
90 m2
Eladó családi ház
Eladó családi ház

Pannonhalma

149 M Ft
5 szoba
186 m2
Eladó családi ház
Eladó családi ház

Soponya

25 M Ft
4 szoba
66 m2