Astora Art House

Eladó téglalakás
Siófok, 3. emelet

+ 17 kép 1/20
97 307 000 Ft97.307 M Ft 1 410 246 Ft/m2
3 szoba
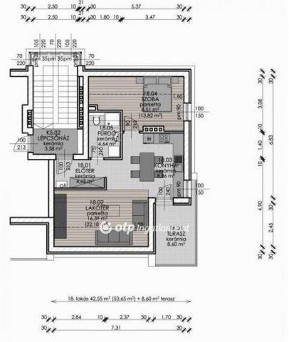
69 m2
3. emelet
építés éve:2025

Részletes adatok

Fűtés: Gázkazán
Energetikai besorolás: Nem adta meg a hirdető

Az OTP Bank lakáshitel ajánlataFizetett hirdetés

+36 20 938
Vincze László György
OTPIP - Pécs, Rákóczi út 19.

Érdekel az OTP Bank kedvezményes lakáshitel ajánlata? *

* A kérdésre „Igen” válasz bejelölése esetén, az „Üzenet küldése” gombra kattintva kijelentem, hogy az OTP Bank Nyrt. Adatkezelési tájékoztatójának tartalmát megismertem és tudomásul vettem.

Eladó téglalakás leírása

Siófok, Foki-hegy: Balatoni panorámás luxuslakások eladók!

Ébredjen minden reggel a Balaton lenyűgöző panorámájára!

Eladóak Siófok egyik legkedveltebb részén, a Foki-hegy lábánál egy exkluzív, 4 lakásos projektben található, új építésű luxuslakások. Minden lakásból páratlan kilátás nyílik a Balatonra és a Tihanyi-félszigetre.

Lakás főbb jellemzői:
69,4 nm 3 szobás, 10,84 nm terasz. (terasz fele bele lett számolva az alap nettó nm-be.)
elhelyezkedés: Siófok, Foki-hegy lába.
Panoráma: örök Balatoni/Tihanyi panoráma.
Teraszok: nyugati tájolású, nagy méretű teraszok.
Fűtés: egyedi, kondenzációs gázkazánok, radiátor és padlófűtés (lakásonként külön mérőórával).
Állapot: Új építésű, magas minőségű kivitelezés
A három emeletes épület kívülről és a lépcsőház teljes egészében megújul, modern hőszigetelést kap.
További előnyök:

luxusminőségű otthonok,
csendes, nyugodt környék,
közel a Balatonhoz.
Kiváló befektetési lehetőség, AIRBN engedélyezett a házban.

Fontos információ:

A lakások külön-külön megvásárolhatók.
Az egész projekt is megvásárolható, ha valaki befektetési célból szeretné megvásárolni.
Ne hagyja ki ezt a páratlan lehetőséget!

Amennyiben felkeltettem érdeklődését, keressen bizalommal, akár hétvégén is! M301014

97307000 Ft

Referencia szám: M301014

Hirdetés feltöltve: 2025. 10. 24. Utoljára módosítva: 2025. 12. 24.

3 szobás téglalakások ára Siófokon

Ebből az összehasonlításból megtudhatod, hogyan viszonyul a lakás ára a környékbeli téglalakások átlagos árához. Ez nem azt jelenti, hogy ennyivel olcsóbb vagy drágább, mint amennyit a lakás ér, hanem hogy ennyivel tér el a környékbeli átlagtól.

Ennek a m² ára
Siófok m² ár
1410 e Ft
1680 e Ft 16%
Ennek az ára
Siófok átlagár
97.307 M Ft m Ft
123.1 m Ft 21%

Az ingatlan elhelyezkedése

Cím: Siófok, 3. emelet

Eladó téglalakások a környékről

Eladó téglalakás
Eladó téglalakás

Siófok

120.7 M Ft
3 szoba
64 m2
Eladó téglalakás
Eladó téglalakás

Siófok

49.9 M Ft
2 szoba
41 m2
Eladó téglalakás
Eladó téglalakás

Siófok, Ezustparti utca

84.9 M Ft
3 szoba
58 m2
Eladó téglalakás
Eladó téglalakás

Siófok

122.4 M Ft
3 szoba
64 m2
Eladó téglalakás
Eladó téglalakás

Balatonszemes, Ady E. utca 6

132.9 M Ft
3 szoba
62 m2
Eladó téglalakás
Eladó téglalakás

Siófok

122 M Ft
3 szoba
65 m2
Eladó téglalakás
Eladó téglalakás

Balatonfenyves

218.75 M Ft
2 szoba
66 m2
Eladó téglalakás
Eladó téglalakás

Balatonfenyves

149 M Ft
2 szoba
59 m2
Eladó téglalakás
Eladó téglalakás

Siófok

54.99 M Ft
1 szoba
41 m2
Eladó téglalakás
Eladó téglalakás

Balatonfenyves

115.625 M Ft
2 szoba
51 m2
Eladó téglalakás
Eladó téglalakás

Balatonfenyves

78.975 M Ft
1 szoba
35 m2
Eladó téglalakás
Eladó téglalakás

Siófok

54.49 M Ft
2 szoba
41 m2
Eladó téglalakás
Eladó téglalakás

Balatonfenyves

78 M Ft
1 szoba
35 m2
Eladó téglalakás
Eladó téglalakás

Siófok

112.2 M Ft
3 szoba
62 m2
Eladó téglalakás
Eladó téglalakás

Siófok

103.7 M Ft
2 szoba
49 m2
Eladó téglalakás
Eladó téglalakás

Balatonfenyves

213.4 M Ft
3 szoba
73 m2
Eladó téglalakás
Eladó téglalakás

Siófok

130.9 M Ft
3 szoba
63 m2
Eladó téglalakás
Eladó téglalakás

Siófok

139.4 M Ft
3 szoba
62 m2
Eladó téglalakás
Eladó téglalakás

Siófok

83.5 M Ft
3 szoba
66 m2
Eladó téglalakás
Eladó téglalakás

Siófok

147.9 M Ft
3 szoba
65 m2
Eladó téglalakás
Eladó téglalakás

Siófok, Ezustparti utca

76.4 M Ft
3 szoba
58 m2
Eladó téglalakás
Eladó téglalakás

Siófok

117.3 M Ft
3 szoba
61 m2
Eladó téglalakás
Eladó téglalakás

Siófok, Ezustparti utca

86.9 M Ft
3 szoba
60 m2
Eladó téglalakás
Eladó téglalakás

Siófok

83.5 M Ft
3 szoba
66 m2

Falusi CSOK ingatlanok

Eladó ikerház
Eladó ikerház

Tápióbicske

28.5 M Ft
4 szoba
74 m2
Eladó családi ház
Eladó családi ház

Szil

25 M Ft
2 szoba
90 m2
Eladó családi ház
Eladó családi ház

Nágocs

72.3 M Ft
4 + 1 szoba
170 m2
Eladó családi ház
Eladó családi ház

Varsány

39.9 M Ft
6 szoba
160 m2
Eladó családi ház
Eladó családi ház

Verseg

84.9 M Ft
6 szoba
152 m2
Eladó családi ház
Eladó családi ház

Úrkút

94.9 M Ft
4 szoba
186 m2
Eladó családi ház
Eladó családi ház

Abaújszántó

19.99 M Ft
3 szoba
84 m2
Eladó családi ház
Eladó családi ház

Doboz

11.99 M Ft
2 + 1 szoba
89 m2