NapForrás 20 - Buda

Eladó téglalakás
Siófok, 1. emelet

88 900 000 Ft88.9 M Ft 1 097 531 Ft/m2
3 szoba
81 m2
1. emelet
építés éve:2025

Részletes adatok

Telekméret: 81 m2
Fűtés: Egyéb
Közmű: Víz, Villany, Csatorna
Energetikai besorolás: Nem adta meg a hirdető

Az OTP Bank lakáshitel ajánlataFizetett hirdetés

+36 20 417
Szegedy Péter
referens

Érdekel az OTP Bank kedvezményes lakáshitel ajánlata? *

* A kérdésre „Igen” válasz bejelölése esetén, az „Üzenet küldése” gombra kattintva kijelentem, hogy az OTP Bank Nyrt. Adatkezelési tájékoztatójának tartalmát megismertem és tudomásul vettem.

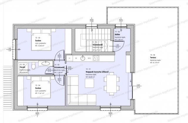
Eladó téglalakás leírása

Siófok egyik legnívósabb zöldövezeti városrészében, a Foki-hegyen, új építésű, 1+2 szobás erkélyes lakás eladó.

- 81 m2-es (amerikai konyhás nappali + 2 hálószoba + zuhanyzós fürdőszoba wc-vel + erkély)

- 1.emelet

- energiatakarékos hőszivattyús hűtés-fűtés

- fan-coil, riasztó és elektromos redőny előkészítés

- választható burkolatok

- teremgarázs beálló és tároló opcionálisan vásárolható

Várható átadás: 2026 II. negyedév

Ha egy csendes, nyugodt, biztonságos helyen szeretne élni, vagy nyaralni, ez ideális választás!

Befektetésnek is kiváló, jól kiadható.

Bevásárlási lehetőség, iskola, posta, buszmegálló, kórház pár percnyire megtalálhatóak. A Balaton part és szabadstrand mindössze 10 percnyi sétára, az M7-es autópálya felhajtó mindössze 5 percnyire található autóval.

Hirdetés feltöltve: 2025. 10. 03. Utoljára módosítva: 2025. 11. 04.

3 szobás téglalakások ára Siófokon

Ebből az összehasonlításból megtudhatod, hogyan viszonyul a lakás ára a környékbeli téglalakások átlagos árához. Ez nem azt jelenti, hogy ennyivel olcsóbb vagy drágább, mint amennyit a lakás ér, hanem hogy ennyivel tér el a környékbeli átlagtól.

Ennek a m² ára
Siófok m² ár
1098 e Ft
1678 e Ft 35%
Ennek az ára
Siófok átlagár
88.9 M Ft m Ft
122.3 m Ft 27%

Az ingatlan elhelyezkedése

Cím: Siófok, 1. emelet

Eladó téglalakások a környékről

Eladó téglalakás
Eladó téglalakás

Siófok

115.6 M Ft
2 szoba
48 m2
Eladó téglalakás
Eladó téglalakás

Balatonfenyves

563.75 M Ft
4 szoba
114 m2
Eladó téglalakás
Eladó téglalakás

Siófok

140.25 M Ft
3 szoba
64 m2
Eladó téglalakás
Eladó téglalakás

Balatonfenyves

191.4 M Ft
3 szoba
66 m2
Eladó téglalakás
Eladó téglalakás

Siófok

117.3 M Ft
3 szoba
62 m2
Eladó téglalakás
Eladó téglalakás

Siófok

54.99 M Ft
1 szoba
41 m2
Eladó téglalakás
Eladó téglalakás

Balatonfenyves

78 M Ft
1 szoba
35 m2
Eladó téglalakás
Eladó téglalakás

Balatonföldvár

125.4 M Ft
4 szoba
114 m2
Eladó téglalakás
Eladó téglalakás

Siófok

119 M Ft
2 + 1 szoba
64 m2
Eladó téglalakás
Eladó téglalakás

Balatonfenyves

129.5 M Ft
3 szoba
67 m2
Eladó téglalakás
Eladó téglalakás

Siófok

122.4 M Ft
3 szoba
64 m2
Eladó téglalakás
Eladó téglalakás

Siófok

130.9 M Ft
3 szoba
63 m2
Eladó téglalakás
Eladó téglalakás

Siófok

54.49 M Ft
2 szoba
41 m2
Eladó téglalakás
Eladó téglalakás

Balatonfenyves

124.9 M Ft
3 szoba
67 m2
Eladó téglalakás
Eladó téglalakás

Siófok

195.5 M Ft
3 szoba
80 m2
Eladó téglalakás
Eladó téglalakás

Siófok

139.4 M Ft
3 szoba
62 m2
Eladó téglalakás
Eladó téglalakás

Balatonfenyves

218.75 M Ft
2 szoba
66 m2
Eladó téglalakás
Eladó téglalakás

Siófok

117.3 M Ft
3 szoba
61 m2
Eladó téglalakás
Eladó téglalakás

Balatonszemes, Ady E. utca 6

132.9 M Ft
3 szoba
62 m2
Eladó téglalakás
Eladó téglalakás

Balatonfenyves

149 M Ft
2 szoba
59 m2
Eladó téglalakás
Eladó téglalakás

Balatonfenyves

78.975 M Ft
1 szoba
35 m2
Eladó téglalakás
Eladó téglalakás

Siófok, Ezustparti utca

84.9 M Ft
3 szoba
58 m2
Eladó téglalakás
Eladó téglalakás

Balatonfenyves

213.4 M Ft
3 szoba
73 m2
Eladó téglalakás
Eladó téglalakás

Balatonfenyves

109 M Ft
2 szoba
45 m2

Falusi CSOK ingatlanok

Eladó családi ház
Eladó családi ház

Lesenceistvánd

75 M Ft
2 szoba
90 m2
Eladó családi ház
Eladó családi ház

Balatonfenyves

430 M Ft
4 szoba
274 m2
Eladó családi ház
Eladó családi ház

Újkígyós

11.99 M Ft
2 szoba
77 m2
Eladó családi ház
Eladó családi ház

Kunadacs

34 M Ft
240 m2
Eladó családi ház
Eladó családi ház

Tápiógyörgye

22.9 M Ft
3 szoba
120 m2
Eladó családi ház
Eladó családi ház

Mezőszilas

51.8 M Ft
3 + 1 szoba
198 m2
Eladó családi ház
Eladó családi ház

Dunafalva

66 M Ft
3 szoba
116 m2
Eladó családi ház
Eladó családi ház

Magyarszék

48.5 M Ft
3 + 1 szoba
86 m2