Eladó téglalakás
Siófok, földszint

+ 14 kép 1/17
169 000 000 Ft169 M Ft 2 139 241 Ft/m2
3 szoba
79 m2
földszint
építés éve:2026

Részletes adatok

Fűtés: Egyéb
Közmű: Villany, Csatorna
Energetikai besorolás: Nem adta meg a hirdető

Az OTP Bank lakáshitel ajánlataFizetett hirdetés

+36 70 465
Takács Anna
referens

Érdekel az OTP Bank kedvezményes lakáshitel ajánlata? *

* A kérdésre „Igen” válasz bejelölése esetén, az „Üzenet küldése” gombra kattintva kijelentem, hogy az OTP Bank Nyrt. Adatkezelési tájékoztatójának tartalmát megismertem és tudomásul vettem.

Eladó téglalakás leírása

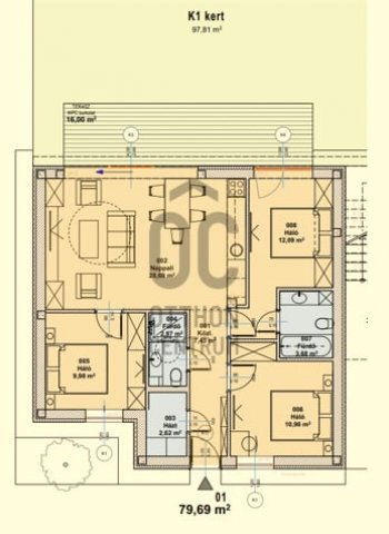
-Alapterület: 79,69m2
-Terasz területe: 16m2
- Kizárólagos kerthasználat: 97,81m2
- + 1 felszíni gépkocsi beálló
- Ennek a földszinti lévő 1-es lakás fűtési-, hűtési energiaigényét egyedi hőszivattyúval fedezzük. A hő leadó rendszerek falra szereltek Fan-coil rendszerűek, vizes rendszerű padlófűtéssel kiegészítve.
- Az üvegezés három rétegű fokozottan hőszigetelt.
- A beltéri ajtók egyedi, lapra szerelt nyílászárók lesznek.
- A teraszon csúszásmentes burkolat készül fagyálló ragasztóval.
- Az udvaron viacolor burkolat lesz.

Ha ajánlatunk felkeltette érdeklődését, kérem, forduljon hozzánk bizalommal!
Projekt bemutatása

Élj Siófokon! - Sóstói lakások- prémium minőség:
Siófok kedvelt Sóstó városrészében új építésű lakásokat ajánlok figyelmetekbe: prémium minőségben 2026-06-30-i átadással! Kiváló lokáció, magas műszaki tartalom!
2025-2026-ban megépülő új, 7 lakásos lakóépület lakásait kínálom megvételre. A ,, Blue lake " elnevezés a csodálatos Balaton közelségére utal.
A társasházról:
Siófok kedvelt Sóstó városrészében eladó 7 új építésű társasházi lakás. A társasház tégla falazatú, homlokzata hőszigetelt, fűtése-hűtése, melegvíz-ellátás H-tarifával támogatott hőszivattyúról megoldott, melynek hőleadója padlófűtés, illetve mennyezeti hűtés.
A ház a mai kor elvárásainak megfelelően természetesen MEDENCÉS.
A projekt keretében 3 földszinti, 3 I. emeleti és egy II. emeleti loft lakás került kialakításra. Az üdülő övezet új építésű egységes épített környezete biztonságot ad.
A jól átgondolt koncepcióhoz modern kivitelezés társul – az épület kertre néző, nem az az utcafrontra, így biztosítva a kilátást minden lakásból a ligetes környékre, ahol már érezhető a Balaton közelsége.
A földszinti lakások közül 2 kertkapcsolatos, az emeleti lakások pedig erkélyesek. Az épület közelsége a Balatonhoz 800 méter,10 perc sétával minden évszakban könnyen megközelíthető a Balaton part.
A társasházban található lakástípusok minden igénynek megfelelő kialakítással bírnak. A földszinten kertkapcsolatos, az 2. emeleti zárószinten pedig nagy teraszos és tágas loft lakás várja tulajdonosát.
Szintenként minden lakástípus fellelhető: A kis lakások kedvelői számára stúdió lakás, nappali+1 hálós kialakítás lehet ideális, de ugyanígy elérhető nagyobb, akár három hálószobás családbarát változat is. Fontos kihangsúlyozni, hogy a kényelem és funkcionalitás egyaránt fontos maradt. A loft lakások egyik legjobb tulajdonsága, hogy az ablakok óriásiak, így a nyitott elrendezéssel együtt rendkívül fényes az élettér.
A lakások mellé megvásárolható parkolók és tárolók a ház délnyugati oldalán kerültek elhelyezésre.
5 nyitott beálló kapcsolódik az épülethez.
A lakások belső műszaki felszereltsége megfelel a mai követelményeknek és kényelmi elvárásoknak. A hőszivattyús hűtő-fűtő berendezés egy már jól bevált, energetikailag kifejezetten modern megoldás, mely télen és nyáron is kellemes hőérzetet biztosít és akár távolról is vezérelhető. A lakásokban padlófűtés ill. mennyezeti hűtés kerül kiépítésre, szabályzásuk 1 db termosztáttal megoldott, mely a műszaki tartalom részét képezi.

Mindenképpen vonzerőnek számít az a zárt terület, mely kizárólag ehhez a társasházhoz tartozik, medencével.

Hirdetés feltöltve: 2025. 10. 01.

3 szobás téglalakások ára Siófokon

Ebből az összehasonlításból megtudhatod, hogyan viszonyul a lakás ára a környékbeli téglalakások átlagos árához. Ez nem azt jelenti, hogy ennyivel olcsóbb vagy drágább, mint amennyit a lakás ér, hanem hogy ennyivel tér el a környékbeli átlagtól.

Ennek a m² ára
Siófok m² ár
2139 e Ft
1652 e Ft -29%
Ennek az ára
Siófok átlagár
169 M Ft m Ft
123.1 m Ft -37%

Az ingatlan elhelyezkedése

Cím: Siófok, földszint

Eladó téglalakások a környékről

Eladó téglalakás
Eladó téglalakás

Balatonföldvár

125.4 M Ft
4 szoba
114 m2
Eladó téglalakás
Eladó téglalakás

Siófok, KÁLMÁN I. SÉTÁNY

81 M Ft
2 szoba
54 m2
Eladó téglalakás
Eladó téglalakás

Siófok

175.787 M Ft
3 + 1 szoba
97 m2
Eladó téglalakás
Eladó téglalakás

Siófok, Kálmán I. sétány

209.121 M Ft
4 szoba
85 m2
Eladó téglalakás
Eladó téglalakás

Siófok

186.11 M Ft
2 + 1 szoba
104 m2
Eladó téglalakás
Eladó téglalakás

Siófok

47.9 M Ft
2 szoba
38 m2
Eladó téglalakás
Eladó téglalakás

Siófok

130.769 M Ft
1 + 1 szoba
72 m2
Eladó téglalakás
Eladó téglalakás

Siófok, Kálmán I. sétány

69 M Ft
2 szoba
46 m2
Eladó téglalakás
Eladó téglalakás

Siófok, Ezustparti utca

84.9 M Ft
3 szoba
58 m2
Eladó téglalakás
Eladó téglalakás

Siófok

83.5 M Ft
3 szoba
66 m2
Eladó téglalakás
Eladó téglalakás

Siófok, Kálmán I. sétány

209.121 M Ft
4 szoba
85 m2
Eladó téglalakás
Eladó téglalakás

Siófok, Ezustparti utca

76.4 M Ft
3 szoba
58 m2
Eladó téglalakás
Eladó téglalakás

Siófok

97.517 M Ft
1 + 2 szoba
69 m2
Eladó téglalakás
Eladó téglalakás

Siófok, Kálmán I. sétány

129.969 M Ft
3 szoba
70 m2
Eladó téglalakás
Eladó téglalakás

Balatonfenyves

78 M Ft
1 szoba
35 m2
Eladó téglalakás
Eladó téglalakás

Balatonfenyves

78.975 M Ft
1 szoba
35 m2
Eladó téglalakás
Eladó téglalakás

Balatonfenyves

938.75 M Ft
3 szoba
145 m2
Eladó téglalakás
Eladó téglalakás

Siófok

54.49 M Ft
2 szoba
41 m2
Eladó téglalakás
Eladó téglalakás

Siófok

83.5 M Ft
3 szoba
66 m2
Eladó téglalakás
Eladó téglalakás

Siófok

49.9 M Ft
2 szoba
40 m2
Eladó téglalakás
Eladó téglalakás

Balatonfenyves

115.625 M Ft
2 szoba
51 m2
Eladó téglalakás
Eladó téglalakás

Siófok

54.99 M Ft
1 szoba
41 m2
Eladó téglalakás
Eladó téglalakás

Siófok, KÁLMÁN I. SÉTÁNY

95.729 M Ft
2 szoba
60 m2
Eladó téglalakás
Eladó téglalakás

Siófok

130.769 M Ft
1 + 1 szoba
72 m2

Falusi CSOK ingatlanok

Eladó családi ház
Eladó családi ház

Szigetcsép

27.9 M Ft
3 szoba
81 m2
Eladó családi ház
Eladó családi ház

Tiszajenő

24 M Ft
3 + 1 szoba
120 m2
Eladó családi ház
Eladó családi ház

Szob, Petőfi Sándor utca

23.5 M Ft
2 szoba
68 m2
Eladó családi ház
Eladó családi ház

Nádasdladány

45.9 M Ft
1 + 1 szoba
50 m2
Eladó családi ház
Eladó családi ház

Sásd

24.911 M Ft
3 szoba
123 m2
Eladó családi ház
Eladó családi ház

Erdőbénye

69.5 M Ft
4 szoba
148 m2
Eladó családi ház
Eladó családi ház

Bakonya

48 M Ft
3 szoba
168 m2
Eladó családi ház
Eladó családi ház

Magyargencs

21.9 M Ft
2 szoba
60 m2