Astora Olive Club House

Eladó téglalakás
Sajóbábony, 2. emelet

Figyelem!

Ez az ingatlan a 2019.07.01-től induló falusi CSOK által támogatott településen található

+ 7 kép 1/10
9 900 000 Ft9.9 M Ft 353 571 Ft/m2
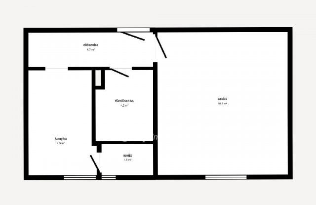
1 szoba
28 m2
2. emelet
építés éve:1955

Részletes adatok

Állapot: Felújítandó
Fűtés: Gázkonvektor
Emelet: 2. emelet
Energetikai besorolás: Nem adta meg a hirdető

Az OTP Bank lakáshitel ajánlataFizetett hirdetés

Hitelösszeg 10 millió Ft
Futamidő 20 év
Induló törlesztőrészlet 67 508 Ft
Törlesztőrészlet a 13. hónaptól 86 071 Ft
THM 8,6 %

A tájékoztatás nem teljes körű és nem minősül ajánlattételnek. Az OTP Évnyerő Lakáshitelei 1 éves türelmi idős kölcsönök, amellyel az első 12 hónapban alacsonyabb a havi törlesztőrészlet. A tőke törlesztését a 13. hónaptól kell megkezdeni.

    Részletes kalkuláció
    +36 20 449
    Nagy István György
    referens

    Érdekel az OTP Bank kedvezményes lakáshitel ajánlata? *

    * A kérdésre „Igen” válasz bejelölése esetén, az „Üzenet küldése” gombra kattintva kijelentem, hogy az OTP Bank Nyrt. Adatkezelési tájékoztatójának tartalmát megismertem és tudomásul vettem.

    Eladó téglalakás leírása

    ELADÓ GARZON SAJÓBÁBONYBAN! Eladó Sajóbábony egyik kedvelt részén a Széchenyi István úton egy 38nm-es nagykonyhás garzonlakás! Fűtése gázkonvektorral, a használati melegvíz gázbojlerral megoldott. Ablakai hőszigeteltek, szúnyoghálóval ellátottak a szobán redőny. Állapota felújítandó, tartozik hozzá két 10nm-es külön pince. Üzlet, buszmegálló egy pernyire. Ideális választás akinek egy olcsó, minimális rezsijű ingatlanra van szüksége. Várom hívását hétvégén is!
    OTP Banki hátterünknek köszönhetően finanszírozási igényekben (pl. Otthon Start Hitelprogram, Babaváró, Falusi CSOK, CSOK Plusz, Lakáshitel, Személyi kölcsön stb.), illetve biztosítások tekintetében is díjmentesen, soron kívüli ügyintézéssel segítem ügyfeleim!
    Referenciaszám:M318086

    Virtuális séta:

    Hirdetés feltöltve: 2025. 12. 03. Utoljára módosítva: 2026. 02. 10.

    Az ingatlan elhelyezkedése

    Cím: Sajóbábony, 2. emelet

    Eladó ingatlanok a környékről

    Eladó családi ház
    Eladó családi ház

    Hernádnémeti

    30.9 M Ft
    3 szoba
    95 m2
    Eladó téglalakás
    Eladó téglalakás

    Miskolc

    54.9 M Ft
    3 szoba
    122 m2
    Eladó téglalakás
    Eladó téglalakás

    Miskolc

    65.34 M Ft
    3 szoba
    60 m2
    Eladó családi ház
    Eladó családi ház

    Tarcal

    10.9 M Ft
    2 szoba
    65 m2
    Eladó téglalakás
    Eladó téglalakás

    Miskolc

    113.912 M Ft
    2 szoba
    77 m2
    Eladó családi ház
    Eladó családi ház

    Tomor

    12 M Ft
    2 szoba
    62 m2
    Eladó téglalakás
    Eladó téglalakás

    Sajóbábony

    10.9 M Ft
    1 szoba
    28 m2
    Eladó családi ház
    Eladó családi ház

    Gönc

    60 M Ft
    5 szoba
    170 m2
    Eladó panellakás
    Eladó panellakás

    Tiszaújváros

    38.9 M Ft
    2 szoba
    51 m2
    Eladó téglalakás
    Eladó téglalakás

    Sárospatak

    13.9 M Ft
    3 szoba
    89 m2
    Eladó családi ház
    Eladó családi ház

    Encs

    21.9 M Ft
    3 + 1 szoba
    90 m2
    Eladó téglalakás
    Eladó téglalakás

    Miskolc

    138.441 M Ft
    3 szoba
    93 m2
    Eladó téglalakás
    Eladó téglalakás

    Sajóbábony

    10.9 M Ft
    1 szoba
    28 m2
    Eladó téglalakás
    Eladó téglalakás

    Miskolc

    32.9 M Ft
    2 szoba
    55 m2
    Eladó téglalakás
    Eladó téglalakás

    Miskolc

    69.7 M Ft
    3 szoba
    60 m2
    Eladó téglalakás
    Eladó téglalakás

    Miskolc

    91.124 M Ft
    2 szoba
    60 m2
    Eladó családi ház
    Eladó családi ház

    Felsőnyárád

    25.9 M Ft
    2 szoba
    85 m2
    Eladó családi ház
    Eladó családi ház

    Miskolc

    94 M Ft
    6 + 1 szoba
    195 m2
    Eladó téglalakás
    Eladó téglalakás

    Tiszaújváros, Verebély utca

    23.9 M Ft
    1 + 1 szoba
    39 m2
    Eladó családi ház
    Eladó családi ház

    Tard

    24.99 M Ft
    3 + 1 szoba
    90 m2
    Eladó panellakás
    Eladó panellakás

    Miskolc

    92.29 M Ft
    2 szoba
    65 m2
    Eladó téglalakás
    Eladó téglalakás

    Sátoraljaújhely

    32.9 M Ft
    4 szoba
    105 m2
    Eladó téglalakás
    Eladó téglalakás

    Sajóbábony

    10.9 M Ft
    1 szoba
    28 m2
    Eladó téglalakás
    Eladó téglalakás

    Miskolc

    55.962 M Ft
    1 szoba
    37 m2

    Falusi CSOK ingatlanok

    Eladó családi ház
    Eladó családi ház

    Szigetcsép

    89.9 M Ft
    5 szoba
    193 m2
    Eladó családi ház
    Eladó családi ház

    Illocska, Fő utca 27

    6.2 M Ft
    1 + 1 szoba
    117 m2
    Eladó családi ház
    Eladó családi ház

    Bozsok

    290 M Ft
    6 szoba
    370 m2
    Eladó családi ház
    Eladó családi ház

    Háromfa, Kossuth

    22.4 M Ft
    139 m2
    Eladó családi ház
    Eladó családi ház

    Versend, Jókai Mór utca 2

    6.66 M Ft
    1 + 1 szoba
    109 m2
    Eladó sorház
    Eladó sorház

    Tiszasziget, Sziget lakópark

    33.9 M Ft
    2 szoba
    48 m2
    Eladó családi ház
    Eladó családi ház

    Egerág

    159 M Ft
    5 szoba
    178 m2
    Eladó családi ház
    Eladó családi ház

    Vásárosdombó

    14.99 M Ft
    2 szoba
    69 m2

    Falusi CSOK ingatlanok

    Eladó családi ház
    Eladó családi ház

    Rábapaty

    99.99 M Ft
    5 szoba
    132 m2
    Eladó sorház
    Eladó sorház

    Tiszasziget, Sziget lakópark

    33.9 M Ft
    2 szoba
    48 m2
    Eladó családi ház
    Eladó családi ház

    Újlengyel

    110 M Ft
    4 szoba
    121 m2
    Eladó családi ház
    Eladó családi ház

    Gönyű

    111.951 M Ft
    5 szoba
    105 m2
    Eladó családi ház
    Eladó családi ház

    Egerág

    159 M Ft
    5 szoba
    178 m2
    Eladó családi ház
    Eladó családi ház

    Bakonycsernye

    39 M Ft
    3 szoba
    350 m2
    Eladó családi ház
    Eladó családi ház

    Szentmártonkáta

    77 M Ft
    6 szoba
    275 m2
    Eladó családi ház
    Eladó családi ház

    Marcaltő

    26 M Ft
    3 szoba
    103 m2