Pesti Házak

Eladó téglalakás
Pomáz

+ 2 kép 1/5
122 900 000 Ft122.9 M Ft 1 068 696 Ft/m2
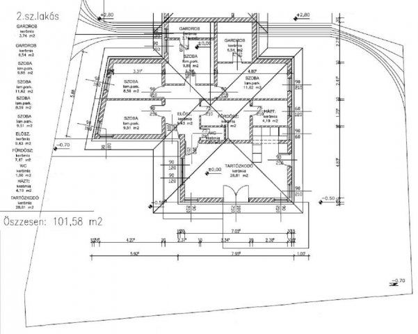
5 szoba
115 m2
építés éve:2025

Részletes adatok

Telekméret: 340 m2
Fűtés: Egyéb
Parkolás: Kocsibeálló
Közmű: Víz, Villany, Csatorna
Energetikai besorolás: Nem adta meg a hirdető

Az OTP Bank lakáshitel ajánlataFizetett hirdetés

+36 70 882
Kiss Krisztina
Körültekintő Ingatlan

Érdekel az OTP Bank kedvezményes lakáshitel ajánlata? *

* A kérdésre „Igen” válasz bejelölése esetén, az „Üzenet küldése” gombra kattintva kijelentem, hogy az OTP Bank Nyrt. Adatkezelési tájékoztatójának tartalmát megismertem és tudomásul vettem.

Eladó téglalakás leírása

Pomázon a Meselia déli oldalában, csendes környezetben 340 nm-es saját, kizárólagos használatú kerttel rendelkező, egy szintes, nappali + 4 hálószobás ikerház-fél eladó.

Az építéssel kapcsolatos paraméterek:
- Tervezett átadás: szerződés kötéstől számított egy éven belül
- hőszivattyús fűtés, padlófűtéssel, radiátorokkal
- magas minőségű hőszigetelés, ZÖLD hitelnek megfelelő energetikai besorolás
- több rétegű, műanyag nyílászárók
- választható belső burkolatok, szaniterek
- riasztó rendszer előkészítés
- 30 nm-es, az amerikai konyhás nappalihoz kapcsolódó terasz
- durva tereprendezés
- kulcsrakész átadás
Finanszírozási lehetőség:
- Zöld hitel kompatibilitás
- CSOK (10+15M) hitel, illeték mentesség, Áfa visszatérítés igényelhető.
- Az alaprajz igény szerint még módosítható.

A beruházó a környék elismert építési vállalkozója, rengeteg referenciamunkával rendelkezik.

Hirdetés feltöltve: 2025. 12. 08.

Az ingatlan elhelyezkedése

Cím: Pomáz

Eladó ingatlanok a környékről

Eladó ikerház
Eladó ikerház

Pomáz

122.9 M Ft
5 szoba
115 m2
Eladó téglalakás
Eladó téglalakás

Göd

90 M Ft
2 szoba
44 m2
Eladó téglalakás
Eladó téglalakás

Pomáz, Ősz utca

54 M Ft
4 + 1 szoba
222 m2
Eladó telek
Eladó telek

Pomáz

34.3 M Ft
638 m²
Eladó téglalakás
Eladó téglalakás

Pomáz

119.9 M Ft
5 szoba
111 m2
Eladó téglalakás
Eladó téglalakás

Pomáz

104 M Ft
3 + 1 szoba
131 m2
Eladó téglalakás
Eladó téglalakás

Göd

28.9 M Ft
2 szoba
46 m2
Eladó téglalakás
Eladó téglalakás

Göd

28.9 M Ft
2 szoba
44 m2
Eladó ikerház
Eladó ikerház

Kisnémedi

60 M Ft
4 szoba
118 m2
Eladó családi ház
Eladó családi ház

Dunabogdány

22.9 M Ft
3 szoba
86 m2
Eladó téglalakás
Eladó téglalakás

Göd

27.9 M Ft
2 szoba
43 m2
Eladó téglalakás
Eladó téglalakás

Göd

44.5 M Ft
3 szoba
70 m2
Eladó családi ház
Eladó családi ház

Pécel

127.9 M Ft
4 szoba
94 m2
Eladó téglalakás
Eladó téglalakás

Göd

28.9 M Ft
2 szoba
46 m2
Eladó téglalakás
Eladó téglalakás

Göd

46.5 M Ft
3 szoba
69 m2
Eladó téglalakás
Eladó téglalakás

Göd

32.5 M Ft
2 szoba
44 m2
Eladó téglalakás
Eladó téglalakás

Pomáz

119.9 M Ft
5 szoba
111 m2
Eladó téglalakás
Eladó téglalakás

Göd

42.5 M Ft
3 szoba
65 m2
Eladó családi ház
Eladó családi ház

Leányfalu, 26HL9975

129 M Ft
7 szoba
252 m2
Eladó téglalakás
Eladó téglalakás

Göd

66.9 M Ft
4 szoba
94 m2
Eladó téglalakás
Eladó téglalakás

Göd

27.9 M Ft
2 szoba
43 m2
Eladó téglalakás
Eladó téglalakás

Pomáz

54 M Ft
4 + 1 szoba
222 m2
Eladó téglalakás
Eladó téglalakás

Göd

28.9 M Ft
2 szoba
46 m2
Eladó téglalakás
Eladó téglalakás

Pomáz

122.9 M Ft
5 szoba
115 m2

Falusi CSOK ingatlanok

Eladó családi ház
Eladó családi ház

Hajdúbagos

69.9 M Ft
5 szoba
230 m2
Eladó családi ház
Eladó családi ház

Bugac

18.5 M Ft
2 szoba
73 m2
Eladó családi ház
Eladó családi ház

Tiszaroff

13.9 M Ft
2 szoba
81 m2
Eladó családi ház
Eladó családi ház

Fertőd

189.9 M Ft
4 szoba
175 m2
Eladó családi ház
Eladó családi ház

Mezőfalva

39 M Ft
3 szoba
77 m2
Eladó családi ház
Eladó családi ház

Pétfürdő

65 M Ft
3 szoba
97 m2
Eladó családi ház
Eladó családi ház

Pétfürdő

36.5 M Ft
3 szoba
100 m2
Eladó családi ház
Eladó családi ház

Jakabszállás

320 M Ft
15 szoba
665 m2