Seven Pearl

Eladó téglalakás
Pécs, 4. emelet

+ 17 kép 1/20
59 800 000 Ft59.8 M Ft 703 529 Ft/m2
2 + 1 szoba
85 m²
4. emelet
építés éve:1965

Részletes adatok

Állapot: Átlagos
Fűtés: Házközponti
Emelet: 4. emelet
Komfort: Összkomfortos
Energetikai besorolás: Nem adta meg a hirdető

Az OTP Bank lakáshitel ajánlataFizetett hirdetés

+36 70 393
Borvári Mária
OTPIP - Pécs, Rákóczi út 19.

Érdekel az OTP Bank kedvezményes lakáshitel ajánlata? *

* A kérdésre „Igen” válasz bejelölése esetén, az „Üzenet küldése” gombra kattintva kijelentem, hogy az OTP Bank Nyrt. Adatkezelési tájékoztatójának tartalmát megismertem és tudomásul vettem.

Eladó téglalakás leírása

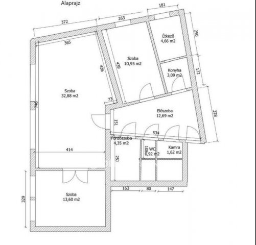
Baranya megyében, Pécsen, Uránvárosban eladó egy 2,5 szobás, 4. emeleti lakás a Mecsek Áruházzal szemben, az Ybl Miklós utcában található, négyemeletes téglaház legfelső szintjén. Az ingatlan nyugati és északi tájolású.

A lépcsőházban ugyan nincs lift, azonban a déli lépcsőházban található felvonó, amely a függőfolyosón keresztül könnyen megközelíthető.

A lakás alapterülete 85 m². A szobák parkettásak, a többi helyiség műanyag burkolatot kapott. Összkomfortos, házközponti fűtéssel rendelkezik, radiátoros hőleadással.

A környék kiváló infrastruktúrával bír: a közelben üzletek, OTP fiók és ATM is megtalálható a házban. Körülbelül 200 méterre rendelőintézet, 500 méteren belül óvoda, iskola és játszótér is elérhető. A belvárosba közlekedő buszok megállói szintén 200 méteren belül vannak. Az Orvosi Egyetem 1,3 km-re található, gyalog nagyjából 15 perc, busszal pedig 3 megálló.

További információért keressen bizalommal akár hétvégén is, és tekintse meg az ingatlant személyesen!

Az OTP Ingatlanpont teljes körű ügyintézéssel segíti az eladókat és a vevőket egyaránt. (M320159)

59800000 Ft

Referencia szám: M320159

Hirdetés feltöltve: 2026. 04. 01. Utoljára módosítva: 2026. 05. 14.

3 szobás téglalakások ára Pécsett

Ebből az összehasonlításból megtudhatod, hogyan viszonyul a lakás ára a környékbeli téglalakások átlagos árához. Ez nem azt jelenti, hogy ennyivel olcsóbb vagy drágább, mint amennyit a lakás ér, hanem hogy ennyivel tér el a környékbeli átlagtól.

Ennek a m² ára
Pécs m² ár
704 e Ft
1106 e Ft 36%
Ennek az ára
Pécs átlagár
59.8 M Ft m Ft
80 m Ft 25%

Az ingatlan elhelyezkedése

Cím: Pécs, 4. emelet

Eladó téglalakások a környékről

Pécs
Eladó téglalakás

Pécs

74.77 M Ft
2 szoba
60 m²
Pécs
Eladó téglalakás

Pécs

63.9 M Ft
2 szoba
47 m²
Pécs
Eladó téglalakás

Pécs

62.7 M Ft
2 szoba
46 m²
Pécs
Eladó téglalakás

Pécs

90.38 M Ft
3 szoba
71 m²
Pécs
Eladó téglalakás

Pécs

90.38 M Ft
2 szoba
72 m²
Pécs
Eladó téglalakás

Pécs

62.7 M Ft
2 szoba
46 m²
Pécs
Eladó téglalakás

Pécs

60.958 M Ft
2 szoba
45 m²
Pécs
Eladó téglalakás

Pécs

69.89 M Ft
1 szoba
51 m²
Pécs
Eladó téglalakás

Pécs

95.521 M Ft
3 szoba
73 m²
Pécs
Eladó téglalakás

Pécs

64.011 M Ft
2 szoba
52 m²
Pécs
Eladó téglalakás

Pécs

63.588 M Ft
2 szoba
52 m²
Pécs
Eladó téglalakás

Pécs

81.7 M Ft
4 szoba
86 m²
Pécs, Szigeti külváros, Hungária utca
Eladó téglalakás

Pécs

29.9 M Ft
1 szoba
41 m²
Pécs
Eladó téglalakás

Pécs

90.38 M Ft
2 szoba
72 m²
Pécs
Eladó téglalakás

Pécs

91.2 M Ft
4 szoba
96 m²
Pécs
Eladó téglalakás

Pécs

63.588 M Ft
2 szoba
52 m²
Pécs
Eladó téglalakás

Pécs

7.9 M Ft
1 szoba
26 m²
Pécs
Eladó téglalakás

Pécs

81.7 M Ft
4 szoba
86 m²
Pécs
Eladó téglalakás

Pécs

7.9 M Ft
1 szoba
26 m²
Pécs
Eladó téglalakás

Pécs

69.89 M Ft
1 szoba
51 m²
Pécs
Eladó téglalakás

Pécs

63.904 M Ft
2 szoba
52 m²
Pécs
Eladó téglalakás

Pécs

70 M Ft
3 szoba
60 m²
Pécs
Eladó téglalakás

Pécs

81.7 M Ft
4 szoba
86 m²
Pécs
Eladó téglalakás

Pécs

95.52 M Ft
3 szoba
62 m²

Falusi CSOK ingatlanok

Balatonkeresztúr, Kaposvári utca
Eladó családi ház

Balatonkeresztúr

81 M Ft
5 szoba
140 m²
Szigetújfalu
Eladó családi ház

Szigetújfalu

66 M Ft
3 szoba
118 m²
Galgahévíz
Eladó családi ház

Galgahévíz

43 M Ft
3 szoba
115 m²
Tápióság
Eladó családi ház

Tápióság

30 M Ft
3 szoba
105 m²
Sződ
Eladó családi ház

Sződ

116.9 M Ft
4 + 1 szoba
102 m²
Röszke
Eladó családi ház

Röszke

69.99 M Ft
4 szoba
99 m²
Tab, Rákóczi utca 45
Eladó családi ház

Tab

17.13 M Ft
1 + 1 szoba
105 m²
Vép
Eladó családi ház

Vép

75.9 M Ft
5 szoba
150 m²