NapForrás 20 - Buda

Eladó téglalakás
Pécs, Ikerház

+ 10 kép 1/13
48 386 000 Ft48.386 M Ft 1 240 667 Ft/m2
2 szoba
39 m2
Ikerház
építés éve:2026

Részletes adatok

Fűtés: Távfűtés
Emelet: 2. emelet
Parkolás: Garázs
Közmű: Víz, Gáz, Villany, Csatorna, Szélessáv, KábelTV, Telefon
Extrák: Lift
Energetikai besorolás: A++

Az OTP Bank lakáshitel ajánlataFizetett hirdetés

+36 30 819
HUN EXCLUSIVE ESTATES
referens

Érdekel az OTP Bank kedvezményes lakáshitel ajánlata? *

* A kérdésre „Igen” válasz bejelölése esetén, az „Üzenet küldése” gombra kattintva kijelentem, hogy az OTP Bank Nyrt. Adatkezelési tájékoztatójának tartalmát megismertem és tudomásul vettem.

Eladó téglalakás leírása

KEDVEZMÉNYES INGATLANÁRAK! 5% ÁFA VISSZATÉRÍTÉS MAGÁNSZEMÉLY VEVŐK ESETÉN!

CSOK Plusz, OtthonStart Hitelprogram feltételeinek mindenben megfelelnek a lakások! Hitel kompatibilis finanszírozás, ingyenes tanácsadás hitelszakértőnktől!

Új építésű prémium, jó elosztású, napfényes lakások csendes, ősfás környezetben Pécs legújabb lakóparkjában! A társasház a kényelem, a design és a nyugalom tökéletes harmóniáját kínálja.
A kiváló elhelyezkedésnek és az energetikai megoldásoknak köszönhetően jövedelmező befektetési, illetve remek lakhatási lehetőség! A lakhatást tekintve, kifejezetten ideális lehet családosok számára!
Tervezett átadás: 2026 év vége.

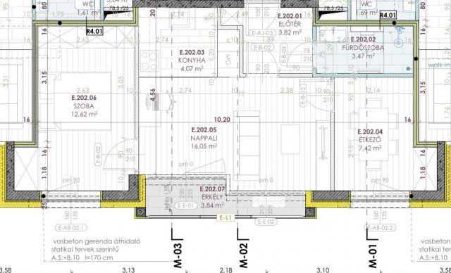
A jelen hirdetés egy remek elrendezésű, napfényes, déli tájolású 39,14 m2 alapterületű, II. emeleti nappali + 1 hálószobás lakásra vonatkozik, melyhez 3,84 m2 fedett erkély tartozik. A lakáson belül: előtér, tágas amerikai konyhás nappali, étkező, fürdőszoba és egy hálószoba található.
Az ingatlan mellett külön megvásárolható fedett gépkocsi beálló (elektromos töltővel, vagy anélkül) 5.000.000 Ft-ért, garázsban lévő parkolóhely 10.000.000 Ft-ért és tároló is.
____________________
Elhelyezkedés és szűkebb környezet:
Pécs Kertváros városrészén belül helyezkedik el a társasház.
Mindössze pár perces sétára található a kereskedelmi (bevásárlási lehetőségek pl: ALDI) és egészségügyi létesítményektől (Honvéd Kórház, Mecsek Állategészségügyi Centrum), gyógyszertáraktól, gyorséttermektől, buszmegállóktól, benzin kúttól. Csendes, nyugodt, családias zöld környezet.
A társasház mellett mind a két oldalon pár évvel ezelőtt épült, újszerű társasházak helyezkednek el.
____________________
Projekt rövid bemutatása:
• Fűtés- hűtés: távfűtés egyedi méréssel, padlófűtés, hűtő- fűtő klímaberendezés (lakásonként 1 db). A fűtést és a meleg víz ellátást távhő szolgáltatja, mely kényelmes, biztonságos, környezetkímélő megoldás.
• Várható energetikai besorolás: A++
• Prémium kivitelezés: prémium olasz burkolatok, magas minőségű belső ajtók és szaniterek széles választékából válogathatnak a Vevők
• Kiemelkedő műszaki tartalom
• Lakásszám: ezen új épülettömbön belül összesen 13 lakás
• Épületszintek: földszint + 4 emelet (a 4. emelet a tetőtér)
• Lakásméretek: garzon (stúdió) lakásoktól, 1 + fél szobás lakásokon át egészen a 2 hálószobás lakásokig. A földszinti lakások kertkapcsolattal rendelkeznek!
• Nyugodt zöld környezet: belső parkosított udvar, ősfák
• Lift
• Fedett gépkocsi beálló (elektromos töltővel vagy anélkül), zárt parkolóhely (garázsban), tároló: külön megvásárolható
____________________
Miért érdemes ezen társasházban lakást vásárolni?
• Remek elhelyezkedés: pár perces sétára bevásárlási lehetőségek, infrastruktúrális és tömegközledési csomópontok
• Kiváló befektetés – értékálló, jól kiadható ingatlanok
• Ideális saját célú lakhatási lehetőség párok, családok számára csendes, zöld környezetben
• Home office
• Megbízható, tapasztalt beruházó kiváló referenciákkal
• Prémium kivitelezés
• Energiatakarékos megoldások, alacsony fenntartási költségek
• Korrekt fizetési ütemezés
• 5% ÁFA VISSZATÉRÍTÉS MAGÁNSZEMÉLY VEVŐK ESETÉN

____________________
JELENLEG MÉG VANNAK ELÉRHETŐ INGATLANOK A TÁRSASHÁZBAN KEDVEZMÉNYES ÁRON! Ne maradjon le ezen kedvező lehetőségről!

Bővebb információkért és megtekintési időpontért, forduljon hozzánk bizalommal!

Hirdetés feltöltve: 2025. 11. 25. Utoljára módosítva: 2026. 01. 05.

2 szobás téglalakások ára Pécsett

Ebből az összehasonlításból megtudhatod, hogyan viszonyul a lakás ára a környékbeli téglalakások átlagos árához. Ez nem azt jelenti, hogy ennyivel olcsóbb vagy drágább, mint amennyit a lakás ér, hanem hogy ennyivel tér el a környékbeli átlagtól.

Ennek a m² ára
Pécs m² ár
1241 e Ft
1025 e Ft -21%
Ennek az ára
Pécs átlagár
48.386 M Ft m Ft
55.7 m Ft 13%

Az ingatlan elhelyezkedése

Cím: Pécs, Ikerház

Eladó téglalakások a környékről

Eladó téglalakás
Eladó téglalakás

Pécs

7.9 M Ft
1 szoba
26 m2
Eladó téglalakás
Eladó téglalakás

Pécs

69.89 M Ft
1 szoba
51 m2
Eladó téglalakás
Eladó téglalakás

Pécs

68.594 M Ft
2 szoba
52 m2
Eladó téglalakás
Eladó téglalakás

Pécs

70 M Ft
3 szoba
60 m2
Eladó téglalakás
Eladó téglalakás

Pécs

64.011 M Ft
2 szoba
52 m2
Eladó téglalakás
Eladó téglalakás

Kozármisleny, Október 23. tér

60 M Ft
3 szoba
80 m2
Eladó téglalakás
Eladó téglalakás

Pécs

51.345 M Ft
2 szoba
35 m2
Eladó téglalakás
Eladó téglalakás

Pécs

95.52 M Ft
3 szoba
62 m2
Eladó téglalakás
Eladó téglalakás

Pécs

62.7 M Ft
2 szoba
46 m2
Eladó téglalakás
Eladó téglalakás

Pécs

81.7 M Ft
4 szoba
86 m2
Eladó téglalakás
Eladó téglalakás

Pécs, Szigeti külváros, Hungária utca

29.9 M Ft
1 szoba
41 m2
Eladó téglalakás
Eladó téglalakás

Pécs

69.89 M Ft
1 szoba
51 m2
Eladó téglalakás
Eladó téglalakás

Pécs

58.09 M Ft
2 szoba
45 m2
Eladó téglalakás
Eladó téglalakás

Pécs

90.38 M Ft
3 szoba
71 m2
Eladó téglalakás
Eladó téglalakás

Pécs

62.7 M Ft
2 szoba
46 m2
Eladó téglalakás
Eladó téglalakás

Pécs

70 M Ft
3 szoba
60 m2
Eladó téglalakás
Eladó téglalakás

Pécs, Szigeti külváros, Hungária utca

29.9 M Ft
1 szoba
41 m2
Eladó téglalakás
Eladó téglalakás

Pécs

51.345 M Ft
2 szoba
35 m2
Eladó téglalakás
Eladó téglalakás

Pécs, Belváros, Papnövelde utca

22.9 M Ft
1 szoba
28 m2
Eladó téglalakás
Eladó téglalakás

Pécs

69.93 M Ft
2 szoba
54 m2
Eladó téglalakás
Eladó téglalakás

Pécs

95.52 M Ft
3 szoba
62 m2
Eladó téglalakás
Eladó téglalakás

Pécs

74.77 M Ft
2 szoba
60 m2
Eladó téglalakás
Eladó téglalakás

Pécs

95.521 M Ft
3 szoba
73 m2
Eladó téglalakás
Eladó téglalakás

Pécs

74.77 M Ft
2 szoba
60 m2

Falusi CSOK ingatlanok

Eladó családi ház
Eladó családi ház

Kétegyháza

15.9 M Ft
3 szoba
95 m2
Eladó családi ház
Eladó családi ház

Gyulaj, Árpád u

9.9 M Ft
2 szoba
69 m2
Eladó családi ház
Eladó családi ház

Abaújszántó

19.99 M Ft
3 szoba
84 m2
Eladó családi ház
Eladó családi ház

Somogygeszti

10.9 M Ft
2 szoba
115 m2
Eladó családi ház
Eladó családi ház

Mezőszilas

49.9 M Ft
3 + 1 szoba
198 m2
Eladó családi ház
Eladó családi ház

Dunaalmás

52.5 M Ft
3 + 1 szoba
140 m2
Eladó családi ház
Eladó családi ház

Öcsöd

15.9 M Ft
2 szoba
50 m2
Eladó családi ház
Eladó családi ház

Tápszentmiklós

64.9 M Ft
5 szoba
110 m2