Avico Greentop

Eladó téglalakás
Pápakovácsi, földszint

Figyelem!

Ez az ingatlan a 2019.07.01-től induló falusi CSOK által támogatott településen található

+ 10 kép 1/13
36 500 000 Ft36.5 M Ft 361 386 Ft/m2
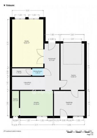
4 szoba
101 m2
földszint
építés éve:1976

Részletes adatok

Állapot: Átlagos
Fűtés: Gázkazán
Energetikai besorolás: Nem adta meg a hirdető

Az OTP Bank lakáshitel ajánlataFizetett hirdetés

+36 30 265
Molnár Márk István
OTP Ingatlanpont Pápa

Érdekel az OTP Bank kedvezményes lakáshitel ajánlata? *

* A kérdésre „Igen” válasz bejelölése esetén, az „Üzenet küldése” gombra kattintva kijelentem, hogy az OTP Bank Nyrt. Adatkezelési tájékoztatójának tartalmát megismertem és tudomásul vettem.

Eladó téglalakás leírása

Remek lehetőség!
Veszprém vármegyében, Pápától csupán egy karnyújtásnyira, Pápakovácsi településen eladó egy 142 m2-es szélső sorház! Az ingatlan remek elosztású: megtalálható az alsó szinten egy szoba, konyha, wc, garázs, kamra, kazánház, az emeleten pedig három hálószoba (az egyik erkéllyel) és fürdőszoba. A fürdőszobában kád és zuhanyzó is helyet kapott. Az ingatlan remek alapja lehet egy modern otthon kialakításának, azonban az új vevőnek a fűtés korszerűsítéssel már nem kell foglalkozni: a gázkazánt nemrég lecserélték, de az ingatlanban egy működő vegyes tüzelésű kazán is megtalálható, a nyílászárók egy része pedig már cserélve lett! A stabil ház kényelmes élettere lehet akár nagyobb családnak is, akik nem szeretnének az alapoktól felújítani, hanem csak saját igényeikre igazítani, korszerűsíteni az ingatlant! A házhoz egy majd 1000 m2-es terület tartozik, valamint megtalálható zárt kocsibeálló, tároló, gazdasági épületek és gyümölcsfák.
A településen óvoda, iskola, bolt, orvosi rendelő, megtalálható, buszmenetrendje kiváló!
Az ingatlan finanszírozásához szükséges hitel ügyintézése irodánkon keresztül díjmentesen, kamatkedvezményekkel elérhető! Az adásvétellel kapcsolatos ügyek intézésében segítséget nyújtunk, a szerződéskötéshez megbízható ügyvédi közreműködést biztosítunk. Az ingatlanról készült leírás és képek az OTP Ingatlanpont Kft. szellemi tulajdonát képezik.
Ez az ingatlan megfelel a fix 3%-os Otthon Start Hitelprogram feltételeinek!
Amennyiben felkeltette ez a remek ingatlan a figyelmét, vagy kérdése lenne keressen bizalommal!
Érdeklődni: Molnár Márk Telefon: 06 30 265 5725

Referencia szám: M303491-ZE

Hirdetés feltöltve: 2025. 11. 19. Utoljára módosítva: 2025. 12. 12.

Az ingatlan elhelyezkedése

Cím: Pápakovácsi, földszint

Eladó ingatlanok a környékről

Eladó téglalakás
Eladó téglalakás

Ajka, Új élet utca

41 M Ft
3 szoba
66 m2
Eladó téglalakás
Eladó téglalakás

Pápa

37.9 M Ft
1 + 1 szoba
58 m2
Eladó családi ház
Eladó családi ház

Pápa

17.5 M Ft
2 + 1 szoba
55 m2
Eladó téglalakás
Eladó téglalakás

Pápa

52.99 M Ft
2 szoba
60 m2
Eladó családi ház
Eladó családi ház

Pápa

49.9 M Ft
3 + 4 szoba
237 m2
Eladó téglalakás
Eladó téglalakás

Veszprém

168 M Ft
2 szoba
112 m2
Eladó téglalakás
Eladó téglalakás

Balatonakarattya

176.581 M Ft
2 szoba
67 m2
Eladó téglalakás
Eladó téglalakás

Pápakovácsi

36.5 M Ft
4 szoba
101 m2
Eladó téglalakás
Eladó téglalakás

Pápa

35.89 M Ft
1 + 1 szoba
37 m2
Eladó családi ház
Eladó családi ház

Pápa

32.99 M Ft
1 + 3 szoba
69 m2
Eladó családi ház
Eladó családi ház

Ugod

42.5 M Ft
3 szoba
170 m2
Eladó családi ház
Eladó családi ház

Pápa

46.9 M Ft
2 + 2 szoba
93 m2
Eladó családi ház
Eladó családi ház

Adásztevel

28.9 M Ft
2 szoba
64 m2
Eladó családi ház
Eladó családi ház

Pápa

52 M Ft
5 + 1 szoba
170 m2
Eladó téglalakás
Eladó téglalakás

Pápakovácsi

36.5 M Ft
4 szoba
101 m2
Eladó téglalakás
Eladó téglalakás

Balatonakarattya

211.785 M Ft
3 szoba
81 m2
Eladó családi ház
Eladó családi ház

Marcalgergelyi

21.9 M Ft
3 + 1 szoba
118 m2
Eladó téglalakás
Eladó téglalakás

Balatonakarattya

160.147 M Ft
2 szoba
61 m2
Eladó családi ház
Eladó családi ház

Csót

12.9 M Ft
3 szoba
104 m2
Eladó családi ház
Eladó családi ház

Nagyalásony

19.5 M Ft
3 szoba
90 m2
Eladó családi ház
Eladó családi ház

Döbrönte

110 M Ft
2 + 2 szoba
183 m2
Eladó téglalakás
Eladó téglalakás

Balatonalmádi

103 M Ft
2 szoba
47 m2
Eladó téglalakás
Eladó téglalakás

Balatonakarattya

186.639 M Ft
3 szoba
71 m2
Eladó téglalakás
Eladó téglalakás

Pápa

33.95 M Ft
1 + 1 szoba
47 m2

Falusi CSOK ingatlanok

Eladó családi ház
Eladó családi ház

Enese

78.9 M Ft
4 szoba
90 m2
Eladó családi ház
Eladó családi ház

Vásárosdombó

14.99 M Ft
2 szoba
69 m2
Eladó családi ház
Eladó családi ház

Ceglédbercel

67 M Ft
3 szoba
173 m2
Eladó családi ház
Eladó családi ház

Pétfürdő

74.9 M Ft
3 szoba
89 m2
Eladó családi ház
Eladó családi ház

Dunaszentbenedek

24.9 M Ft
2 szoba
85 m2
Eladó családi ház
Eladó családi ház

Szigetcsép

110 M Ft
3 szoba
137 m2
Eladó családi ház
Eladó családi ház

Ősi

64.9 M Ft
4 szoba
181 m2
Eladó családi ház
Eladó családi ház

Városlőd

51.9 M Ft
1 + 2 szoba
53 m2

Falusi CSOK ingatlanok

Eladó családi ház
Eladó családi ház

Ispánk

149 M Ft
6 szoba
250 m2
Eladó családi ház
Eladó családi ház

Ceglédbercel

67 M Ft
3 szoba
173 m2
Eladó családi ház
Eladó családi ház

Tápiógyörgye

30 M Ft
3 szoba
65 m2
Eladó családi ház
Eladó családi ház

Orci

59.9 M Ft
3 szoba
101 m2
Eladó családi ház
Eladó családi ház

Jánoshida

5.9 M Ft
2 szoba
66 m2
Eladó családi ház
Eladó családi ház

Sárosd

21.9 M Ft
3 szoba
86 m2
Eladó családi ház
Eladó családi ház

Nyírtura

99 M Ft
4 szoba
280 m2
Eladó családi ház
Eladó családi ház

Kondorfa, Fővég utca

24.9 M Ft
3 szoba
102 m2