City Pearl

Eladó téglalakás
Pápa, 1. emelet

+ 8 kép 1/11
34 990 000 Ft34.99 M Ft 593 051 Ft/m2
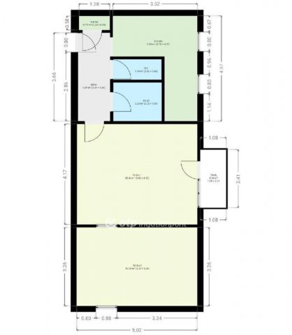
2 szoba
59 m²
1. emelet
építés éve:1970

Részletes adatok

Állapot: Felújítandó
Fűtés: Gázkonvektor
Emelet: 1. emelet
Energetikai besorolás: Nem adta meg a hirdető

Az OTP Bank lakáshitel ajánlataFizetett hirdetés

+36 20 509
Kozma Ármin
OTP Ingatlanpont Pápa

Érdekel az OTP Bank kedvezményes lakáshitel ajánlata? *

* A kérdésre „Igen” válasz bejelölése esetén, az „Üzenet küldése” gombra kattintva kijelentem, hogy az OTP Bank Nyrt. Adatkezelési tájékoztatójának tartalmát megismertem és tudomásul vettem.

Eladó téglalakás leírása

Eladó első emeleti lakás Pápán, a Huszár lakótelepen!!!

Pápa egyik legkedveltebb részén, a belvárostól karnyújtásnyira, a Huszár lakótelepen eladóvá vált egy kiváló adottságokkal rendelkező, 59 nm-es, téglaépítésű, erkélyes, felújítandó lakás!

Az ingatlan egy sátortetős téglaépület legjobb szintjén, az első emeleten helyezkedik el, így nem kell sokat lépcsőznie. A lakás csendes, tágas és világos. Elosztását tekintve 2 szobából, egy praktikus konyha - étkezőből,kamrából, fürdőszobából, külön WC-ből és egy kényelmes előszobából áll.
A fűtése gázkonvektorrral történik így csak annyit fizet, amennyit valóban elhasznál.
Az épület kívülről rendezett, a lépcsőház tiszta, a lakóközösség barátságos. A ház nyílászárói műanyagra lettek cserélve. Az alagsorban egy saját, nagyméretű tároló található, így a bicikliknek, szerszámoknak vagy szezonális holmiknak is jut bőven hely.
A közös költség 17.000 Ft/hó.
A belváros pár perc alatt elérhető, így minden fontos intézmény, bolt és szolgáltatás a közelben van, mégis élvezheti a lakótelep nyugalmát.
Ez az ingatlan tökéletes választás fiatal pároknak, befektetésnek vagy idősebbeknek, a kényelmes első emelet miatt.
VÁLTSA VALÓRA ÁLMAIT, alakítsa saját ízlésére! Ne maradjon le róla! Nézzük meg együtt!
Jöjjön el, lássa meg benne a lehetőséget, és tegyen ajánlatot!
Amennyiben az ingatlan felkeltette érdeklődését, keressen bizalommal. Ez az ingatlan megfelel a fix 3%-os Otthon Start Hitelprogram feltételeinek! Az OTP Ingatlanpont teljes körű ügyintézéssel áll az eladók és a vevők rendelkezésére. Az adásvételi szerződés megkötéséhez igény szerint megbízható ügyvédi közreműködést biztosítunk, és segítséget nyújtunk az adásvételhez kapcsolódó ügyek intézéséhez is. Az ingatlanról készült alaprajz, illetve fényképfelvételek az Otp Ingatlanpont szellemi tulajdonát képezik.

Hirdetés feltöltve: 2026. 04. 01.

2 szobás téglalakások ára Pápán

Ebből az összehasonlításból megtudhatod, hogyan viszonyul a lakás ára a környékbeli téglalakások átlagos árához. Ez nem azt jelenti, hogy ennyivel olcsóbb vagy drágább, mint amennyit a lakás ér, hanem hogy ennyivel tér el a környékbeli átlagtól.

Ennek a m² ára
Pápa m² ár
593 e Ft
772 e Ft 23%
Ennek az ára
Pápa átlagár
34.99 M Ft m Ft
36 m Ft 3%

Az ingatlan elhelyezkedése

Cím: Pápa, 1. emelet

Eladó téglalakások a környékről

Pápa, Határ u. 14-16
Eladó téglalakás

Pápa

51.5 M Ft
2 + 1 szoba
60 m²
Pápa
Eladó téglalakás

Pápa

39.5 M Ft
1 + 1 szoba
44 m²
Pápa, Határ u. 14-16
Eladó téglalakás

Pápa

50.95 M Ft
2 + 1 szoba
60 m²
Pápa
Eladó téglalakás

Pápa

36.7 M Ft
2 szoba
45 m²
Balatonfüred
Eladó téglalakás

Balatonfüred

435.728 M Ft
3 szoba
148 m²
Pápa
Eladó téglalakás

Pápa

37.445 M Ft
1 + 1 szoba
41 m²
Pápa
Eladó téglalakás

Pápa

12.9 M Ft
1 szoba
33 m²
Balatonfüred
Eladó téglalakás

Balatonfüred

399 M Ft
3 szoba
120 m²
Tapolca
Eladó téglalakás

Tapolca

29.5 M Ft
2 szoba
54 m²
Balatonfüred
Eladó téglalakás

Balatonfüred

436.916 M Ft
3 szoba
142 m²
Balatonakarattya
Eladó téglalakás

Balatonakarattya

159.487 M Ft
2 szoba
60 m²
Balatonakarattya
Eladó téglalakás

Balatonakarattya

176.581 M Ft
2 szoba
67 m²
Balatonfüred
Eladó téglalakás

Balatonfüred

217 M Ft
4 szoba
168 m²
Balatonakarattya
Eladó téglalakás

Balatonakarattya

142.469 M Ft
2 szoba
54 m²
Pápa, Határ u. 14-16
Eladó téglalakás

Pápa

42.5 M Ft
1 + 1 szoba
47 m²
Balatonakarattya
Eladó téglalakás

Balatonakarattya

186.639 M Ft
3 szoba
71 m²
Pápa
Eladó téglalakás

Pápa

39.95 M Ft
1 + 2 szoba
45 m²
Pápa
Eladó téglalakás

Pápa

49.5 M Ft
2 + 1 szoba
60 m²
Pápa
Eladó téglalakás

Pápa

49.5 M Ft
1 + 2 szoba
60 m²
Pápa
Eladó téglalakás

Pápa

82.6 M Ft
1 + 3 szoba
114 m²
Balatonakarattya
Eladó téglalakás

Balatonakarattya

163.576 M Ft
2 szoba
62 m²
Pápa, Határ u. 14-16
Eladó téglalakás

Pápa

40.95 M Ft
1 + 2 szoba
45 m²
Balatonfüred
Eladó téglalakás

Balatonfüred

184 M Ft
4 szoba
119 m²
Balatonakarattya
Eladó téglalakás

Balatonakarattya

239.192 M Ft
3 szoba
92 m²

Falusi CSOK ingatlanok

Kadarkút, Körmendi utca
Eladó családi ház

Kadarkút

21 M Ft
3 szoba
82 m²
Bag
Eladó családi ház

Bag

110 M Ft
5 szoba
320 m²
Fonyód
Eladó családi ház

Fonyód

89 M Ft
2 szoba
90 m²
Somlójenő
Eladó családi ház

Somlójenő

64.9 M Ft
4 szoba
221 m²
Újlengyel, Hernádi dűlő
Eladó sorház

Újlengyel

64 M Ft
3 szoba
75 m²
Bakonyszentkirály
Eladó családi ház

Bakonyszentkirály

99.99 M Ft
5 szoba
126 m²
Tápióbicske
Eladó ikerház

Tápióbicske

93.5 M Ft
7 szoba
136 m²
Vértesboglár
Eladó családi ház

Vértesboglár

56.9 M Ft
4 szoba
154 m²