BAM Living

Eladó téglalakás
Paks, Deák F. u. 5, földszint

+ 10 kép 1/13
61 900 000 Ft61.9 M Ft 773 750 Ft/m2
2 szoba
80 m2
földszint

Részletes adatok

Állapot: Felújított
Fűtés: Gázkazán
Parkolás: Garázs, Kocsibeálló
Közmű: Víz, Gáz, Villany, Csatorna
Energetikai besorolás: Nem adta meg a hirdető

Az OTP Bank lakáshitel ajánlataFizetett hirdetés

+36 70 770
Baranyi Mónika
referens

Érdekel az OTP Bank kedvezményes lakáshitel ajánlata? *

* A kérdésre „Igen” válasz bejelölése esetén, az „Üzenet küldése” gombra kattintva kijelentem, hogy az OTP Bank Nyrt. Adatkezelési tájékoztatójának tartalmát megismertem és tudomásul vettem.

Eladó téglalakás leírása

Pakson földszinti felújított téglalakás eladó.
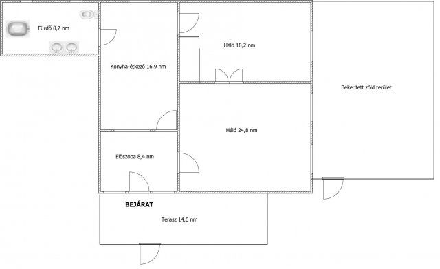
Paks óvárosában kínálok eladásra egy minimális rezsiköltséggel rendelkező 80 nm-es lakást két elkerített, hangulatos terasszal, jogilag rendezett társasházban. Ha elege van a lépcsőzésből, vagy a panellakások papírvékony falaiból akkor ezt az ingatlant Önnek ajánlom!

Főbb jellemzői:
- teljesen felújított, 80 nm alapterületű lakás
- a munkálatokat fotókkal dokumentálták
- fűtése gázkazánról történik padlófűtésen keresztül, melynek havi díja ~ 9.000,- Ft
- nyílászárók műanyagok
- a nagy belmagasságot gipszkartonnal csökkentették
- víz, villanyvezeték, csatorna is megújult, valamint a teljes belső tér
- klíma van
- falak vízszigetelése megtörtént
- konyhájában magasfényű gépesített konyhabútor
- felosztása: tágas előtér; konyha-étkező egyben; két napfényes, nagyméretű szoba; fürdőszoba; terasz; bekerített füves terület; garázs; kocsibeálló; pince
- közös udvar, középen a gyerekeknek kialakított kis birodalommal
- elektromos kapu, és autóbejáró
- 3 %-os hitel igényelhető!
Szinte egy kisebb családi ház összes előnyével rendelkezik! Elhelyezkedését illetően a közelben bolt, buszmegálló, óvoda, iskolák, templomok, cukrászdák, Dunapart gyalogosan elérhető. Ha felkeltettem az érdeklődését, keressen bizalommal! Megtekintéshez időpontot kérjen még ma!
Teljes körű pénzügyi megoldások ügyintézése díjmentesen:
* Bankfüggetlen hitelcenterünk díjmentesen versenyezteti minden bank és hitelintézet ajánlatát.
* Önnek nincs más dolga, mint beszélgetni munkatársunkkal, majd a megversenyeztetett ajánlatokból kiválasztani a hosszútávon is a legmegfelelőbb konstrukciót.
* Szakértőnk több mint 20 éves szakmai tapasztalattal és egyedi igényekre szabott, fogyasztóbarát lakáshitelekkel, babaváró hitellel, teljes körű CSOK ügyintézéssel várja Önt.
* Előre egyeztetett időpontban.
Pakson felújított földszinti téglalakás eladó.

Hirdetés feltöltve: 2025. 11. 13. Utoljára módosítva: 2025. 11. 13.

2 szobás téglalakások ára Pakson

Ebből az összehasonlításból megtudhatod, hogyan viszonyul a lakás ára a környékbeli téglalakások átlagos árához. Ez nem azt jelenti, hogy ennyivel olcsóbb vagy drágább, mint amennyit a lakás ér, hanem hogy ennyivel tér el a környékbeli átlagtól.

Ennek a m² ára
Paks m² ár
774 e Ft
384 e Ft -101%
Ennek az ára
Paks átlagár
61.9 M Ft m Ft
24 m Ft -158%

Az ingatlan elhelyezkedése

Cím: Paks, Deák F. u. 5, földszint

Eladó téglalakások a környékről

Eladó téglalakás
Eladó téglalakás

Paks

77 M Ft
2 szoba
70 m2
Eladó téglalakás
Eladó téglalakás

Paks, Dózsa György út

71 M Ft
2 + 1 szoba
73 m2
Eladó téglalakás
Eladó téglalakás

Paks

77 M Ft
2 szoba
70 m2
Eladó téglalakás
Eladó téglalakás

Paks

71 M Ft
3 szoba
54 m2
Eladó téglalakás
Eladó téglalakás

Paks

63 M Ft
2 szoba
51 m2
Eladó téglalakás
Eladó téglalakás

Szekszárd

34 M Ft
5 szoba
88 m2
Eladó téglalakás
Eladó téglalakás

Dombóvár, Ady Endre utca

38.9 M Ft
4 szoba
77 m2
Eladó téglalakás
Eladó téglalakás

Paks

58.5 M Ft
2 szoba
59 m2
Eladó téglalakás
Eladó téglalakás

Dombóvár

27 M Ft
1 szoba
36 m2
Eladó téglalakás
Eladó téglalakás

Paks, Dózsa György út

71 M Ft
2 + 1 szoba
73 m2
Eladó téglalakás
Eladó téglalakás

Dombóvár

27.5 M Ft
2 szoba
52 m2
Eladó téglalakás
Eladó téglalakás

Paks

64.9 M Ft
4 szoba
82 m2
Eladó téglalakás
Eladó téglalakás

Dombóvár, Vasút sor

9.7 M Ft
2 szoba
60 m2
Eladó téglalakás
Eladó téglalakás

Dombóvár

20 M Ft
2 szoba
64 m2
Eladó téglalakás
Eladó téglalakás

Paks

54.9 M Ft
2 szoba
86 m2
Eladó téglalakás
Eladó téglalakás

Paks

86 M Ft
4 szoba
78 m2
Eladó téglalakás
Eladó téglalakás

Paks, Kápolna utca

92 M Ft
1 + 2 szoba
78 m2
Eladó téglalakás
Eladó téglalakás

Paks

74.9 M Ft
4 szoba
82 m2
Eladó téglalakás
Eladó téglalakás

Dombóvár

57.991 M Ft
3 szoba
91 m2
Eladó téglalakás
Eladó téglalakás

Szekszárd, Alsóváros, Búzavirág utca 8/4

3.14 M Ft
1 + 1 szoba
37 m2
Eladó téglalakás
Eladó téglalakás

Paks

106 M Ft
4 szoba
96 m2
Eladó téglalakás
Eladó téglalakás

Paks

71 M Ft
3 szoba
50 m2
Eladó téglalakás
Eladó téglalakás

Paks

49.9 M Ft
2 szoba
57 m2
Eladó téglalakás
Eladó téglalakás

Paks

74.9 M Ft
3 szoba
82 m2

Falusi CSOK ingatlanok

Eladó családi ház
Eladó családi ház

Sellye

43 M Ft
5 szoba
150 m2
Eladó családi ház
Eladó családi ház

Dág, Petőfi Sándor utca

36.9 M Ft
4 szoba
105 m2
Eladó családi ház
Eladó családi ház

Alattyán

8.5 M Ft
1 + 1 szoba
70 m2
Eladó családi ház
Eladó családi ház

Kisnána

27.9 M Ft
4 szoba
180 m2
Eladó családi ház
Eladó családi ház

Akasztó

13.9 M Ft
3 szoba
103 m2
Eladó családi ház
Eladó családi ház

Szil

25 M Ft
2 szoba
90 m2
Eladó családi ház
Eladó családi ház

Körösladány

14.9 M Ft
2 szoba
65 m2
Eladó családi ház
Eladó családi ház

Pétfürdő

65 M Ft
3 szoba
97 m2