Astora Márvány8

Eladó téglalakás
Nyíregyháza, 3. emelet

+ 3 kép 1/6
37 800 000 Ft37.8 M Ft 687 273 Ft/m2
2 szoba
55 m2
3. emelet
építés éve:1975

Részletes adatok

Fűtés: Gázkonvektor
Emelet: 3. emelet
Energetikai besorolás: Nem adta meg a hirdető

Az OTP Bank lakáshitel ajánlataFizetett hirdetés

+36 20 926
Hegedüs Attila
Szabolcs Ingatlanközvetítő Iroda

Érdekel az OTP Bank kedvezményes lakáshitel ajánlata? *

* A kérdésre „Igen” válasz bejelölése esetén, az „Üzenet küldése” gombra kattintva kijelentem, hogy az OTP Bank Nyrt. Adatkezelési tájékoztatójának tartalmát megismertem és tudomásul vettem.

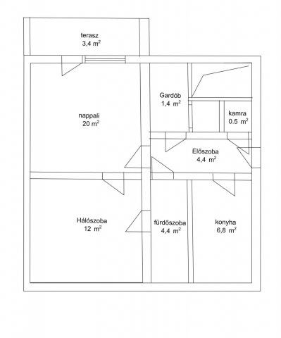
Eladó téglalakás leírása

A Víztorony közelében, rendezett környezetben eladó egy 55 m²-es, 2 szobás, erkélyes lakás.Az ingatlan egy négyemeletes, külsőleg szigetelt, téglaépítésű társasház 3. emeletén található.
A lakás burkolatai járólap és parketta, nyílászárói műanyagok, fűtése gázkonvektoros. Praktikus elrendezésű, az erkély mellett saját tároló is tartozik hozzá.
Az ingatlan átlagos állapotú, tehermentes, és azonnal költözhető, így kiváló választás lehet saját célra vagy befektetésnek egyaránt.
Főbb jellemzők:

55 m²

2 szoba

erkély

saját tároló

műanyag nyílászárók

gázkonvektoros fűtés

emelet

szigetelt tégla társasház

azonnal birtokba vehető, tehermentes

Irányár: 37,8 M Ft
Amennyiben szeretné megtekinteni az ingatlant, forduljon hozzám bizalommal! Tel.: 20/9 268-433Az ingatlan azonosítója: 99604Érdeklődni: +36209268433

Hirdetés feltöltve: 2026. 02. 05. Utoljára módosítva: 2026. 02. 05.

2 szobás téglalakások ára Nyíregyházán

Ebből az összehasonlításból megtudhatod, hogyan viszonyul a lakás ára a környékbeli téglalakások átlagos árához. Ez nem azt jelenti, hogy ennyivel olcsóbb vagy drágább, mint amennyit a lakás ér, hanem hogy ennyivel tér el a környékbeli átlagtól.

Ennek a m² ára
Nyíregyháza m² ár
687 e Ft
884 e Ft 22%
Ennek az ára
Nyíregyháza átlagár
37.8 M Ft m Ft
49.4 m Ft 23%

Az ingatlan elhelyezkedése

Cím: Nyíregyháza, 3. emelet

Eladó téglalakások a környékről

Eladó téglalakás
Eladó téglalakás

Nyíregyháza

79.99 M Ft
4 szoba
152 m2
Eladó téglalakás
Eladó téglalakás

Nyíregyháza, Örökösföld, Törzs utca 2

65.9 M Ft
3 szoba
71 m2
Eladó téglalakás
Eladó téglalakás

Nyíregyháza

49.7 M Ft
3 szoba
83 m2
Eladó téglalakás
Eladó téglalakás

Nyíregyháza

49.7 M Ft
3 szoba
83 m2
Eladó téglalakás
Eladó téglalakás

Nyíregyháza

43.5 M Ft
3 + 1 szoba
79 m2
Eladó téglalakás
Eladó téglalakás

Nyíregyháza

53.7 M Ft
2 szoba
83 m2
Eladó téglalakás
Eladó téglalakás

Nyíregyháza

43.5 M Ft
2 + 2 szoba
79 m2
Eladó téglalakás
Eladó téglalakás

Nyíregyháza

36 M Ft
2 szoba
58 m2
Eladó téglalakás
Eladó téglalakás

Nyíregyháza

104.9 M Ft
5 szoba
209 m2
Eladó téglalakás
Eladó téglalakás

Nyíregyháza

53.7 M Ft
2 szoba
103 m2
Eladó téglalakás
Eladó téglalakás

Nyíregyháza

36 M Ft
2 szoba
58 m2
Eladó téglalakás
Eladó téglalakás

Nyíregyháza

37.5 M Ft
1 szoba
44 m2
Eladó téglalakás
Eladó téglalakás

Nyíregyháza, Örökösföld, Törzs utca 2

74.9 M Ft
3 szoba
75 m2
Eladó téglalakás
Eladó téglalakás

Nyíregyháza

36 M Ft
2 szoba
58 m2
Eladó téglalakás
Eladó téglalakás

Nyíregyháza

36 M Ft
2 szoba
58 m2
Eladó téglalakás
Eladó téglalakás

Nyíregyháza

43.5 M Ft
2 + 1 szoba
79 m2
Eladó téglalakás
Eladó téglalakás

Nyíregyháza

43.5 M Ft
2 + 2 szoba
79 m2
Eladó téglalakás
Eladó téglalakás

Nyíregyháza

77.5 M Ft
4 szoba
120 m2
Eladó téglalakás
Eladó téglalakás

Nyíregyháza

53.7 M Ft
2 szoba
103 m2
Eladó téglalakás
Eladó téglalakás

Nyíregyháza

72.5 M Ft
3 + 1 szoba
170 m2
Eladó téglalakás
Eladó téglalakás

Nyíregyháza

53.7 M Ft
2 szoba
103 m2
Eladó téglalakás
Eladó téglalakás

Nyíregyháza

53.7 M Ft
2 szoba
103 m2
Eladó téglalakás
Eladó téglalakás

Nyíregyháza

43.5 M Ft
3 + 1 szoba
79 m2
Eladó téglalakás
Eladó téglalakás

Nyíregyháza

43.5 M Ft
2 + 2 szoba
79 m2

Falusi CSOK ingatlanok

Eladó családi ház
Eladó családi ház

Bélapátfalva

29 M Ft
2 szoba
55 m2
Eladó családi ház
Eladó családi ház

Kenyeri

21.8 M Ft
2 szoba
75 m2
Eladó családi ház
Eladó családi ház

Magyarpolány

90 M Ft
2 szoba
70 m2
Eladó családi ház
Eladó családi ház

Nagybörzsöny

79.9 M Ft
4 szoba
149 m2
Eladó családi ház
Eladó családi ház

Gyöngyöshalász

59 M Ft
4 + 3 szoba
214 m2
Eladó családi ház
Eladó családi ház

Tápszentmiklós

59.8 M Ft
5 szoba
110 m2
Eladó családi ház
Eladó családi ház

Szabadbattyán

163.99 M Ft
5 szoba
255 m2
Eladó családi ház
Eladó családi ház

Sárisáp, Orgona utca

60 M Ft
4 szoba
145 m2