River Life

Eladó téglalakás
Miskolc, 1. emelet

+ 17 kép 1/20
62 000 000 Ft62 M Ft 659 574 Ft/m2
3 szoba
94 m²
1. emelet
építés éve:1920

Részletes adatok

Fűtés: Távfűtés
Emelet: 1. emelet
Komfort: Összkomfortos
Energetikai besorolás: Nem adta meg a hirdető

Az OTP Bank lakáshitel ajánlataFizetett hirdetés

+36 70 439
dr. Rohács Andrea
OTP IP Miskolc Corvin 1-3

Érdekel az OTP Bank kedvezményes lakáshitel ajánlata? *

* A kérdésre „Igen” válasz bejelölése esetén, az „Üzenet küldése” gombra kattintva kijelentem, hogy az OTP Bank Nyrt. Adatkezelési tájékoztatójának tartalmát megismertem és tudomásul vettem.

Eladó téglalakás leírása

Exkluzív, felújított nagypolgári lakás Miskolc belvárosának szívében. Családoknak és befektetőknek egyaránt tökéletes választás!

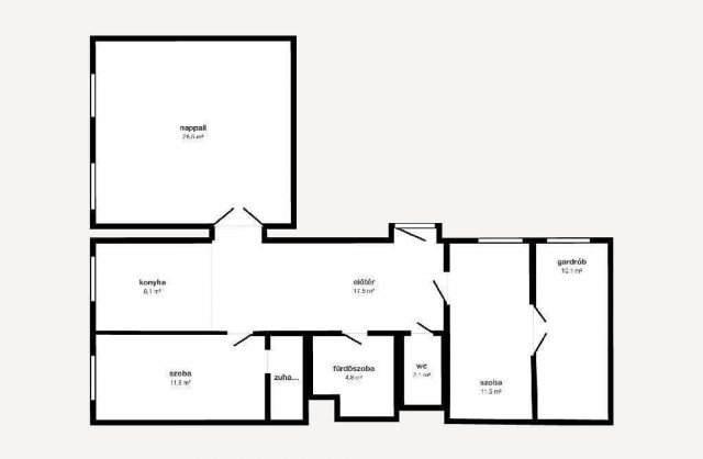
Eladó Miskolc belvárosának egyik legkedveltebb részén egy stílusos, 94 nm-es nagypolgári lakás, amely tágas tereivel és elegáns hangulatával azonnal magával ragadja az embert.
Az ingatlan egy rendezett társasház 1. emeletén található, és egy éve teljes körű felújításon esett át, így új tulajdonosát hibátlan műszaki és esztétikai állapotban várja.

A lakásban 3 hálószoba, világos nappali, egyedi konyha étkezővel, két fürdőszoba, gardróbszoba és erkély kapott helyet.
A fűtést modern, zárt égésterű gázkazán, a kényelmet pedig 3 klímaberendezés biztosítja. A beépített bútorok a vételár részét képezik.

Elhelyezkedése kivételes: a belváros nyugodt, mégis központi részén található, pár perc sétára minden fontos szolgáltatástól, üzlettől, iskolától és kávézótól. A történelmi környezet és a modern városi életstílus itt valódi harmóniában élnek együtt.

Ez a lakás kiváló választás családok számára, akik szeretnének belvárosi, mégis csendes otthonban élni, de befektetőknek is ideális, hiszen prémium elhelyezkedésének és állapotának köszönhetően azonnal kiadható, értéktartó ingatlan.

Amennyiben egy különleges, minőségi belvárosi otthont keres, ne hagyja ki ezt a lehetőséget!
Elhelyezkedéséből adódóan iskola, óvoda, posta, bolt, templom, és egyéb szolgáltatók 5-10 percen belül elérhetők. Banki hátterünknek köszönhetően 3%-os Otthon Start hitel, CSOK, Falusi CSOK, Babaváró hitel ügyintézésben is tudunk segíteni ügyfeleinknek. Érdeklődés esetén kérem hivatkozzon az M315785-ös referenciaszámra.

Referencia szám: M315785

Hirdetés feltöltve: 2026. 04. 01. Utoljára módosítva: 2026. 05. 12.

3 szobás téglalakások ára Miskolcon

Ebből az összehasonlításból megtudhatod, hogyan viszonyul a lakás ára a környékbeli téglalakások átlagos árához. Ez nem azt jelenti, hogy ennyivel olcsóbb vagy drágább, mint amennyit a lakás ér, hanem hogy ennyivel tér el a környékbeli átlagtól.

Ennek a m² ára
Miskolc m² ár
660 e Ft
812 e Ft 19%
Ennek az ára
Miskolc átlagár
62 M Ft m Ft
65.1 m Ft 5%

Az ingatlan elhelyezkedése

Cím: Miskolc, 1. emelet

Eladó téglalakások a környékről

Miskolc
Eladó téglalakás

Miskolc

54.45 M Ft
2 szoba
51 m²
Miskolc
Eladó téglalakás

Miskolc

59.94 M Ft
2 szoba
51 m²
Ózd
Eladó téglalakás

Ózd

16.9 M Ft
250 m²
Miskolc
Eladó téglalakás

Miskolc

51.9 M Ft
3 szoba
82 m²
Miskolc
Eladó téglalakás

Miskolc

54.9 M Ft
3 szoba
122 m²
Miskolc
Eladó téglalakás

Miskolc

68.99 M Ft
3 szoba
76 m²
Miskolc, Belváros, Kazinczy Ferenc utca
Eladó téglalakás

Miskolc

74.9 M Ft
3 szoba
98 m²
Tiszaújváros, Verebély utca
Eladó téglalakás

Tiszaújváros

23.9 M Ft
1 + 1 szoba
39 m²
Miskolc
Eladó téglalakás

Miskolc

65.34 M Ft
3 szoba
60 m²
Miskolc
Eladó téglalakás

Miskolc

65.34 M Ft
1 + 1 szoba
40 m²
Sátoraljaújhely
Eladó téglalakás

Sátoraljaújhely

32.9 M Ft
4 szoba
105 m²
Miskolc
Eladó téglalakás

Miskolc

65.34 M Ft
3 szoba
60 m²
Miskolc, Keleti városrész, József Attila
Eladó téglalakás

Miskolc

27.9 M Ft
2 szoba
55 m²
Miskolc
Eladó téglalakás

Miskolc

163.35 M Ft
4 szoba
110 m²
Miskolc, Új Diósgyőr, Torontáli utca
Eladó téglalakás

Miskolc

19.99 M Ft
2 szoba
49 m²
Miskolc, Bábonyibérc
Eladó téglalakás

Miskolc

35.9 M Ft
1 + 1 szoba
34 m²
Miskolc
Eladó téglalakás

Miskolc

9.5 M Ft
2 szoba
59 m²
Miskolc
Eladó téglalakás

Miskolc

79.9 M Ft
4 szoba
90 m²
Miskolc
Eladó téglalakás

Miskolc

51.9 M Ft
3 szoba
82 m²
Miskolc
Eladó téglalakás

Miskolc

9.5 M Ft
2 szoba
59 m²
Sárospatak, Tompa Mihály utca
Eladó téglalakás

Sárospatak

23.9 M Ft
2 szoba
62 m²
Miskolc
Eladó téglalakás

Miskolc

69.7 M Ft
3 szoba
60 m²
Miskolc, Új Diósgyőr, Torontáli utca
Eladó téglalakás

Miskolc

19.99 M Ft
2 szoba
49 m²
Miskolc
Eladó téglalakás

Miskolc

54.9 M Ft
3 szoba
122 m²

Falusi CSOK ingatlanok

Rétság
Eladó téglalakás

Rétság

39.9 M Ft
2 szoba
55 m²
Bakonycsernye
Eladó családi ház

Bakonycsernye

39 M Ft
3 szoba
350 m²
Sződ
Eladó családi ház

Sződ

116.9 M Ft
4 + 1 szoba
102 m²
Tápióság
Eladó családi ház

Tápióság

57 M Ft
4 szoba
94 m²
Balatonszepezd
Eladó családi ház

Balatonszepezd

299 M Ft
5 szoba
220 m²
Parád
Eladó családi ház

Parád

55.9 M Ft
3 szoba
100 m²
Bak
Eladó családi ház

Bak

49.9 M Ft
5 szoba
140 m²
Vép
Eladó családi ház

Vép

75.9 M Ft
5 szoba
150 m²